Добавить в корзинуПозвонить
Найти в Дзене

Евротрёшка 55 м² для семьи с ребёнком: 6 главных решений, которые работают в реальной квартире✅

За годы работы дизайнером видела сотни евротрёшек и двушек около 55 квадратов, где жильцы вынуждены чем-то жертвовать: родительской спальней ради детской, отказываться от нормальной гостиной, либо кухня оказывается слишком тесной. Недавно закончила проект для молодой семьи в ЖК «Мичуринский парк», где удалось разместить абсолютно всё и даже больше на 55 квадратных метрах. Разбираю каждое решение подробно. Посмотрите, какая планировка в этой квартире.👇 Подписывайтесь на канал Domeo, чтобы видеть больше проектов с разбором планировочных решений. Показываю только то, что реально функционирует в жизни, без глянцевых фантазий. Точную стоимость всего ремонта, вы можете получить в этом калькуляторе Domeo -> https://domeo.ru/remont В этой квартире кухня-гостиная всего 20 метров, но там поместилось всё: угловой гарнитур с барной стойкой-полуостровом, полноценный обеденный стол на четверых, диван с пуфом и даже рабочее место для удалёнки. Звучит фантастически, но работает именно планировка. Ба
Оглавление

За годы работы дизайнером видела сотни евротрёшек и двушек около 55 квадратов, где жильцы вынуждены чем-то жертвовать: родительской спальней ради детской, отказываться от нормальной гостиной, либо кухня оказывается слишком тесной.

Текст помогла составить дизайнер компании Domeo
Текст помогла составить дизайнер компании Domeo

Недавно закончила проект для молодой семьи в ЖК «Мичуринский парк», где удалось разместить абсолютно всё и даже больше на 55 квадратных метрах. Разбираю каждое решение подробно. Посмотрите, какая планировка в этой квартире.👇

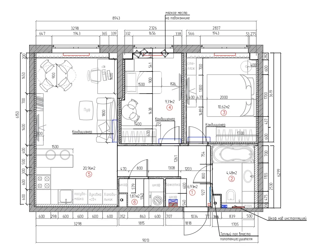
Планировка квартиры с расстановкой мебели. Проект Domeo
Планировка квартиры с расстановкой мебели. Проект Domeo
Подписывайтесь на канал Domeo, чтобы видеть больше проектов с разбором планировочных решений. Показываю только то, что реально функционирует в жизни, без глянцевых фантазий.

Запланировали ремонт квартиры?👇

-3

Точную стоимость всего ремонта, вы можете получить в этом калькуляторе Domeo -> https://domeo.ru/remont

КАЛЬКУЛЯТОР

Решение 1: объединенная кухня-гостиная

В этой квартире кухня-гостиная всего 20 метров, но там поместилось всё: угловой гарнитур с барной стойкой-полуостровом, полноценный обеденный стол на четверых, диван с пуфом и даже рабочее место для удалёнки. Звучит фантастически, но работает именно планировка.

Фото проекта с ремонтом от DOMEO
Фото проекта с ремонтом от DOMEO

Барная стойка выполняет сразу три функции: здесь можно перекусить утром, когда торопишься, разложить закуски для гостей вечером и визуально разделить кухню и гостиную без перегородок. Столешница из мрамора с золотистыми прожилками добавляет элемент роскоши, но при этом не выглядит вычурно.

Фото проекта с ремонтом от DOMEO
Фото проекта с ремонтом от DOMEO

Рабочее место разместила у окна, потому что естественный свет критически важен для тех, кто целыми днями за компьютером. Компактный стол не занимает много места, но функционален. Многие клиенты сначала сомневаются, нужно ли отдавать под кабинет кусок гостиной, но потом благодарят, когда понимают, что работать на кухонном столе или в спальне некомфортно. Когда рабочее место спланировано на этапе чернового ремонта, то удаленщик получает все необходимые выводы для использования компьютера и другой техники, функциональный свет и продуманную систему хранения.

Фото проекта с ремонтом от DOMEO
Фото проекта с ремонтом от DOMEO

Диван выбрали раскладной, чтобы при необходимости организовать спальное место для гостей. Рядом поставили пуф, который служит и дополнительным сидением, и журнальным столиком. Такие многофункциональные решения особенно ценны в небольших квартирах.

Фото проекта с ремонтом от DOMEO
Фото проекта с ремонтом от DOMEO

Решение 2: системы хранения до потолка

Главное правило для квартир чуть больше 50 м2: все системы хранения делаем до потолка. Да, придётся купить стремянку, но зато не будем хранить воздух и пыль на верхних 40 сантиметрах. В этом проекте даже в детской шкафы подняты под самый потолок.

Фото проекта с ремонтом от DOMEO
Фото проекта с ремонтом от DOMEO

В прихожей встроенный шкаф организует хранение верхней одежды. Деревянные элементы гардероба создают контраст со светло-серыми стенами, добавляя тепла минималистичному интерьеру. Площадь всей прихожей менее 7 м2, а зона у входной двери всего метр на полтора, поэтому система хранения спроектирована до потолка, используя всю высоту помещения максимально эффективно. Места для отдельного пуфа нет, поэтому здесь встроенная скамья которая не только создает комфортную зону для переобувания, но и служит дополнительным местом для хранения обуви или сезонных аксессуаров.

Фото проекта с ремонтом от DOMEO
Фото проекта с ремонтом от DOMEO

В квартире есть окрытые полки, потому что совсем без них интерьер выглядит безжизненно. В гостиной книжные полки тоже идут до потолка, но количество выставляемых вещей строго минимизировано. Иначе получается не стильный акцент, а пылесборник, который визуально захламляет пространство.

Фото проекта с ремонтом от DOMEO
Фото проекта с ремонтом от DOMEO
А если хочется, чтобы всё сделали за вас – закажите ремонт у DOMEO, где как раз умеют совмещать эстетику и практичность.👇

Точную стоимость всего ремонта, вы можете получить в этом калькуляторе Domeo -> https://domeo.ru/remont

КАЛЬКУЛЯТОР

Решение 3: продуманные акценты в каждой комнате

Весь интерьер выдержан в серо-бежевой гамме, но в каждом помещении свой характерный элемент. В гостиной это мраморная плитка на кухонном фартуке и барной стойке, в спальне акцентная стена глубокого коричневого цвета за изголовьем кровати, в детской текстурные панели с декоративными звёздочками и птичками.

Фото проекта с ремонтом от DOMEO
Фото проекта с ремонтом от DOMEO

Такой подход помогает избежать скуки в интерьере, когда все комнаты выглядят одинаково, но при этом сохранить общую стилистику. Переходя из помещения в помещение, чувствуешь разницу, но не диссонанс. Акцентная стена в спальне глубокого коричневого цвета, а чёрно-белые фотографии на ней создают индивидуальность.

Фото проекта с ремонтом от DOMEO
Фото проекта с ремонтом от DOMEO

В детской кровать с изголовьем в виде ушек стала главным элементом комнаты. Розовые и бежевые тона создают атмосферу тепла, но не приторную, а сдержанную. Столик с двумя стульчиками в виде зайчиков, ковёр со звёздами, стеллаж для игрушек до потолка. Всё продумано так, чтобы ребёнку было комфортно играть, читать и спать, а родителям легко поддерживать порядок.

Фото проекта с ремонтом от DOMEO
Фото проекта с ремонтом от DOMEO

Решение 4: мини-прачечная в хозяйственном помещении

Для семьи с ребёнком прачечная даже важнее второго туалета. Это решение всегда вызывает споры на этапе планировки, но потом все довольны. В этом проекте прачечную сделали на месте второго санузла. Там разместилась стиральная машина, сушильная над ней, полки для порошков и моющих средств, корзины для белья, вешалка для одежды после стирки. Влажность в отдельной комнате меньше, чем в ванной, поэтому бельё не отсыревает, техника служит дольше.

Стирка и сушка идут постоянно: детские вещи, постельное бельё, полотенца. Раньше люди развешивали всё на верёвках в ванной или на балконе, теперь есть сушильные машины.

Фото проекта с ремонтом от DOMEO
Фото проекта с ремонтом от DOMEO

Решение 5: отделка ванной в тёмных тонах

Санузел сделала в тёмной гамме с мраморной текстурой на стенах и полу. Такое решение придаёт элегантность и визуально расширяет пространство, хотя звучит парадоксально. Деревянные элементы под раковиной и в отделке ванной компенсируют холодность камня, создают баланс.

Фото проекта с ремонтом от DOMEO
Фото проекта с ремонтом от DOMEO

Компактная ванна с душем и шторкой позволяет эффективно использовать каждый сантиметр. Широкое зеркало с подсветкой добавляет света, визуально увеличивает комнату. Подвесной унитаз и чёрный смеситель вносят элементы минимализма. Встроенные ниши для хранения полотенец и косметики помогают поддерживать порядок без открытых полок.

Фото проекта с ремонтом от DOMEO
Фото проекта с ремонтом от DOMEO

Решение 6: минимализм без жертв

Весь проект построен на принципе: минимализм не означает отказ от нужных вещей. Здесь нет ничего лишнего, но есть всё необходимое. Угловой гарнитур со встроенной техникой от варочной панели до духовки и холодильника, барная стойка, обеденный стол, диван, рабочее место, полноценная спальня с вместительным шкафом, детская с зоной для игр и учёбы, прачечная, санузел.

Светло-серые стены расширяют пространство, коричневая мебель добавляет уюта, текстурные панели создают глубину. Длинные тканевые шторы пропускают мягкий свет, современные люстры дополняют стиль, не перегружая интерьер. Каждый элемент выполняет свою функцию, ничто не стоит просто для красоты.

Чувствуете растерянность перед масштабом работ? DOMEO рекомендует два первых шага:👇
-18
1. Заранее узнайте стоимость вашего ремонта в 3-х вариантах. Бесплатно рассчитайте тут: ✅ domeo.ru/remont
2. Выбрать подходящего дизайнера для визуализации своих идей! Бесплатно выберите своего дизайнера здесь: ✅ domeo.ru/design
-19

Все 6 предложенных решений работают на практике и позволяют создать комфортное пространство для жизни, а не для картинки в журнале. Дизайнерские идеи работают, когда учитывают реальные потребности семьи: где готовить, где работать, где хранить вещи, где стирать, где отдыхать. Всё остальное вторично.

Читайте больше статей на канале DOMEO: 👇

Дизайнер раскрыла секреты планировки квартиры и предостерегла от 10 самых страшных ошибок
DOMEO | РЕМОНТ КВАРТИР | НЕДВИЖИМОСТЬ
26 сентября 2025