Найти в Дзене

Банный комплекс в Наро-Фоминском районе построен!

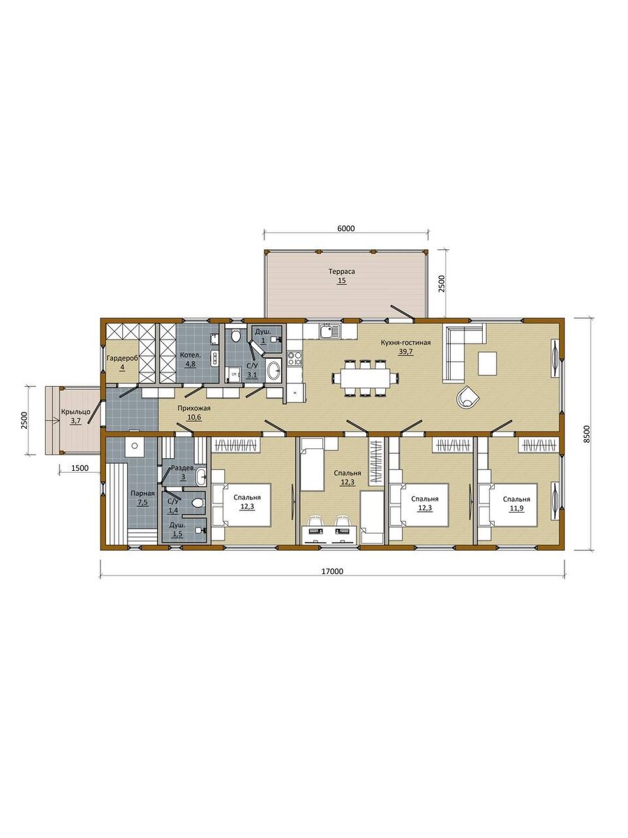
На площади 163 кв.м разместилось: ✔️ четыре спальни; ✔️ просторная кухня-гостиная; ✔️ гардеробная; ✔️ котельная; ✔️ два санузла; ✔️ парная; ✔️ терраса. 👉🏻 Говорят, что по машине можно многое сказать о владельце авто. Ну а я спустя много лет, набравшись опыта, научился немного понимать в заказчиках по проектам их домов. ➡️ В случае с хозяевами этого дома, я уверен, они знают толк в качественном отдыхе и намерены проводить здесь время с максимальным комфортом. Судя по окнам в пол, это смелые и дерзкие люди, которые не боятся баек о том, что это холодно и непрактично 😎 ⭐️ Этот банный комплекс создан не просто, чтобы помыться или переночевать. Это довольно серьёзные инвестиции в качество жизни 👍 ✅ Что получает наш заказчик в результате? Энергоэффективное и невероятно комфортное пространство, где можно с одинаковым удовольствием провести шумные выходные с компанией или уединенные зимние вечера в кругу семьи. И главное, это множество воспоминаний, которые останутся в памяти детей, р

На площади 163 кв.м разместилось:

✔️ четыре спальни;

✔️ просторная кухня-гостиная;

✔️ гардеробная;

✔️ котельная;

✔️ два санузла;

✔️ парная;

✔️ терраса.

-2

👉🏻 Говорят, что по машине можно многое сказать о владельце авто. Ну а я спустя много лет, набравшись опыта, научился немного понимать в заказчиках по проектам их домов.

-3

➡️ В случае с хозяевами этого дома, я уверен, они знают толк в качественном отдыхе и намерены проводить здесь время с максимальным комфортом. Судя по окнам в пол, это смелые и дерзкие люди, которые не боятся баек о том, что это холодно и непрактично 😎

-4

⭐️ Этот банный комплекс создан не просто, чтобы помыться или переночевать. Это довольно серьёзные инвестиции в качество жизни 👍

-5

-6

-7

-8

✅ Что получает наш заказчик в результате? Энергоэффективное и невероятно комфортное пространство, где можно с одинаковым удовольствием провести шумные выходные с компанией или уединенные зимние вечера в кругу семьи. И главное, это множество воспоминаний, которые останутся в памяти детей, родных, друзей 😌

-9