Найти в Дзене
БАНЯ МСК

Ещё один объект, который мы реализовали в комплектации «Тёплый контур

» На фото — баня площадью 94 м² в Истринском районе. Внутри всё спроектировано так, чтобы баня была удобной в повседневной жизни. Просторная комната отдыха — здесь можно устроить семейный ужин или собраться с друзьями после парной. Отдельная спальня позволяет оставаться ночевать гостям, не возвращаясь в дом поздно вечером. Парная и душевая расположены так, чтобы сразу после процедур можно было освежиться. А хозблок с техкомнатой избавляют от лишних построек на участке — всё необходимое собрано под одной крышей. ❓Хотите увидеть визуализацию этой бани, которую мы подготовили для заказчика ещё на этапе проектирования? 🍃 Подобрать баню под мой участок

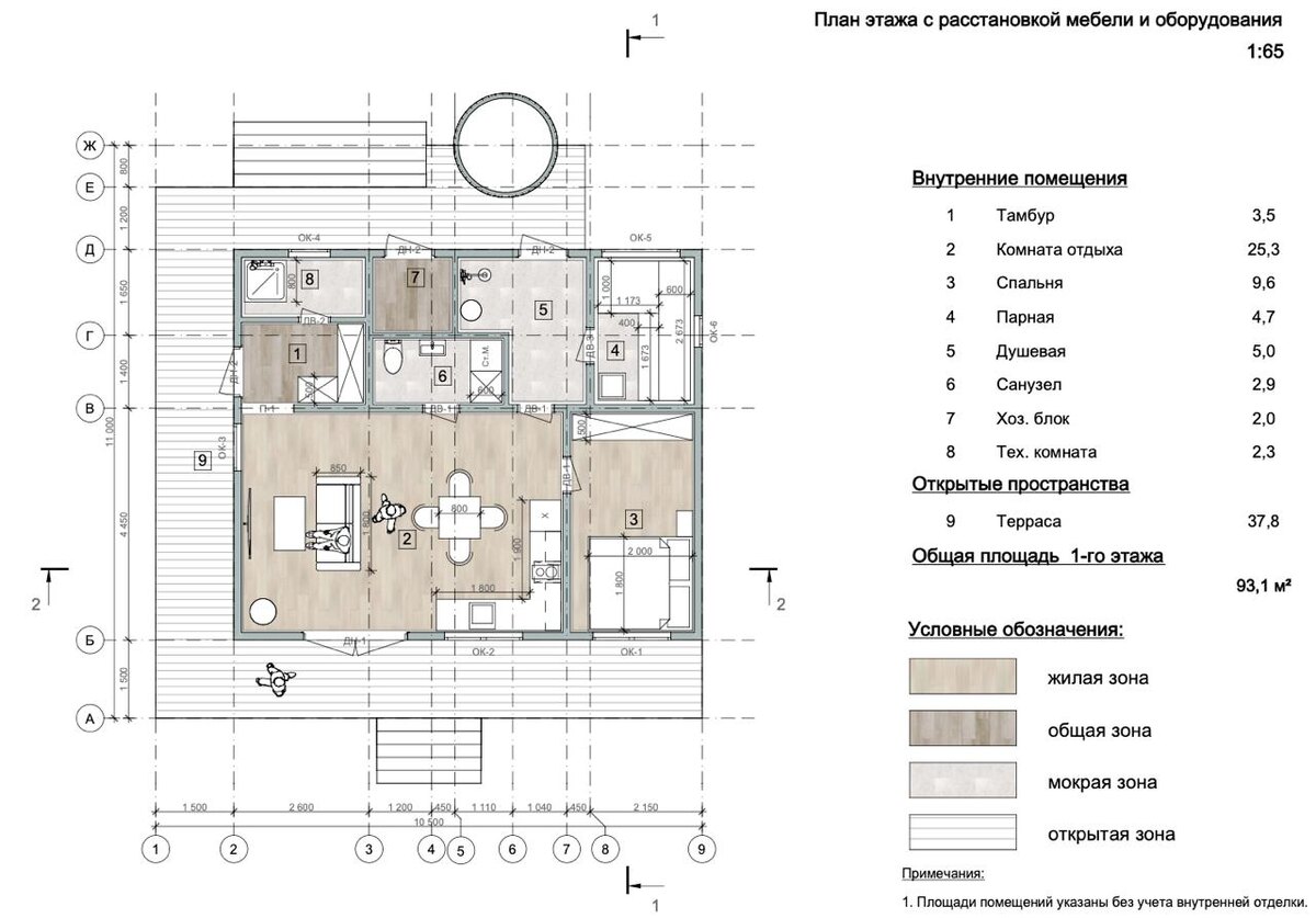
Ещё один объект, который мы реализовали в комплектации «Тёплый контур»

На фото — баня площадью 94 м² в Истринском районе.

Внутри всё спроектировано так, чтобы баня была удобной в повседневной жизни.

Просторная комната отдыха — здесь можно устроить семейный ужин или собраться с друзьями после парной.

Отдельная спальня позволяет оставаться ночевать гостям, не возвращаясь в дом поздно вечером.

Парная и душевая расположены так, чтобы сразу после процедур можно было освежиться.

А хозблок с техкомнатой избавляют от лишних построек на участке — всё необходимое собрано под одной крышей.

❓Хотите увидеть визуализацию этой бани, которую мы подготовили для заказчика ещё на этапе проектирования?

🍃 Подобрать баню под мой участок

-2
-3
-4
-5