Добавить в корзинуПозвонить
Найти в Дзене
DIVAN.RU

Большая квартира 190 кв.м для семьи с четырьмя детьми

В основе этого проекта лежит мечта. Мечта большой семьи с четырьмя детьми о своем идеальном доме. Она стала реальностью в московских апартаментах на 190 квадратных метрах. Архитектор Варвара Шалито и дизайнер Валерия Нестеренко создали здесь полноценную жилую экосистему, где эстетика и функциональность находятся в гармоничном балансе. Так появилось настоящее семейное гнездо, где у каждого есть свой уголок и общее место для всех. Заказчики хотели получить удобную планировку для шести человек. Важно было выделить каждому личное пространство. И конечно, создать место для общих встреч — столовую и гостиную. Другим условием было ощущение «воздуха». Его достигли через спокойные природные оттенки, натуральное дерево в отделке, живые растения и мягкий, обволакивающий текстиль. Идея перепланировки родилась из решения застройщика. Он предусмотрел проем между двумя квартирами — им и воспользовались авторы проекта. Проем условно разделили всю площадь на взрослую и детскую части и стал порталом меж
Оглавление

В основе этого проекта лежит мечта. Мечта большой семьи с четырьмя детьми о своем идеальном доме. Она стала реальностью в московских апартаментах на 190 квадратных метрах. Архитектор Варвара Шалито и дизайнер Валерия Нестеренко создали здесь полноценную жилую экосистему, где эстетика и функциональность находятся в гармоничном балансе. Так появилось настоящее семейное гнездо, где у каждого есть свой уголок и общее место для всех.

  • Объект: две квартиры общей площадью 190 кв.м в г. Москва
  • Авторы проекта: Архитектор Варвара Шалито и дизайнер Валерия Нестеренко; стилист Светлана Носова; фотограф: Михаил Чекалов

Заказчики хотели получить удобную планировку для шести человек. Важно было выделить каждому личное пространство. И конечно, создать место для общих встреч — столовую и гостиную. Другим условием было ощущение «воздуха». Его достигли через спокойные природные оттенки, натуральное дерево в отделке, живые растения и мягкий, обволакивающий текстиль.

Планировочное решение

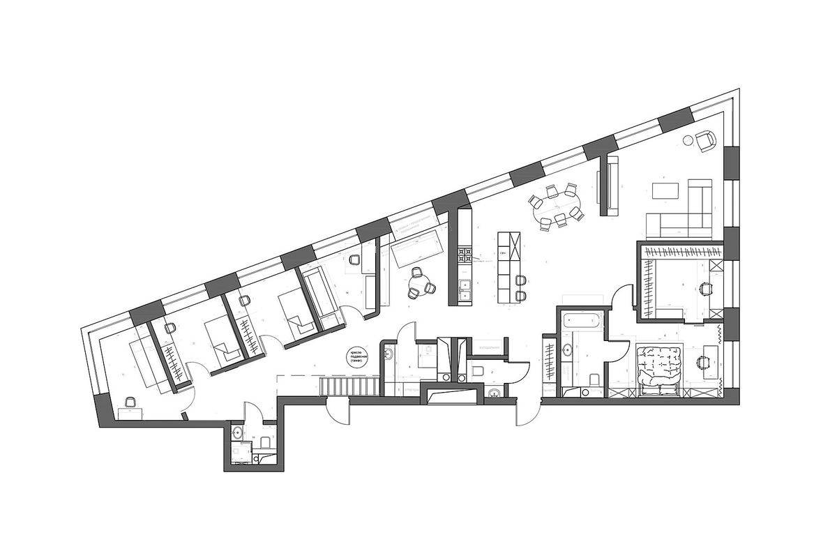
Идея перепланировки родилась из решения застройщика. Он предусмотрел проем между двумя квартирами — им и воспользовались авторы проекта. Проем условно разделили всю площадь на взрослую и детскую части и стал порталом между ними. Стены возводили заново, что открыло простор для творчества. В просторной квартире нашлось место для всего: кухни-столовой, гостиной и мастер-спальни. К ней примыкает свой санузел и кабинет. Детям отдали четыре комнаты, игровую, постирочную и отдельную ванную. Зонирование позволило избежать ощущения бесконечного коридора и сохранило приватность для каждого члена семьи.

Планировочное решение и расстановка мебели
Планировочное решение и расстановка мебели

Кухня-гостиная

Центром дома стала общая зона кухни и гостиной. Здесь семья проводит большую часть времени. Кухонный гарнитур аккуратно встроен в нишу, а вытяжка скрыта в коробе. От верхних шкафов отказались. Всю технику и хранение убрали в высокие колонны и на большой остров. Это сохранило ощущение простора.

Остров стал главным функциональным элементом. Он работает как барная стойка, рабочая поверхность и система хранения. В него даже встроили микроволновую печь. Все оттенки в интерьере тонко связаны. Фасады мебели подобрали под цвет пола. Плитка на фартуке перекликается с зеленой декоративной штукатуркой. Керамогранитная столешница острова практична, а ее текстура добавляет пространству благородства. Подоконники сделали из дерева.

Уют создают детали: авторская керамика, панно на стенах и мягкий ковер. Несколько вариантов освещения позволяют создавать разные сценарии — для вечеринок или тихих семейных вечеров.

-5
Центром гостиной стал модульный диван Этен от divan.ru. На нем большая семья любит собираться за интересным кино. Достоинство модели в том, что модули можно переставлять: менять местами и даже разносить по всей квартире.

➡️Товары бренда divan.ru

Мастер-спальня

Хозяйская спальня получилась компактной. Но высокие потолки и светлая отделка спасают от чувства тесноты. Кровать Вайлор-Floor от divan.ru в зеленой обивке поддерживает общую природную тему оформления. Вместо обычных тумбочек дизайнеры встроили полки прямо в боковые шкафы — это позволило сэкономить место и визуально облегчить конструкцию.

➡️Товары бренда divan.ru

Из спальни есть проход в кабинет-гардеробную. Две стены занимают вместительные шкафы, а у окна стоит рабочий стол.

-8

Мастер-санузел

В санузле при спальне использовали серый керамогранит и краску того же зеленого тона, что и в основной комнате, создавая ощущение спа-зоны.

-9

Детские

Детская часть квартиры — это отдельное владение. Здесь находятся четыре комнаты равной площади и общая игровая с проектором. Длинный коридор освещается через ленточное остекление под потолком. Оно пропускает дневной свет из смежных помещений.

-10

В каждой детской есть рабочая зона у окна, кровать и шкафы для вещей. Белые стены стали холстом для ярких деталей. Хотя комнаты и равны по площади, индивидуальные цветовые акценты и декор отражают характер каждого из детей, делая их личное пространство по-настоящему особенным. Разноцветный текстиль и ковры придают комнатам индивидуальность.

Яркие ковры от бренда divan.ru из лимитированной коллекции «Тут рядом». Ее создали в партнерстве с благотворительным фондом системной поддержки людей с аутизмом «Антон тут рядом». В тон ковру подобрали декоративные подушки и текстиль.

➡️Товары бренда divan.ru

Санузел для детей

В детском санузле использовали плитку с синими вкраплениями. Этот цвет повторяется на потолке и стене, создавая цельный образ.

⚡️Цены ниже с промокодами! Применяйте скидку на товары из подборки: c тегом -5000 ₽ по промокоду SUPER5 и с тегом -10 000 ₽ по промокоду SUPER10

-14

============================

Оцените интерьер в комментариях, а если материал понравился — не забудьте поставить лайк👍

🖤divan.ru — не только блог про интерьеры, но и производитель доступной дизайнерской мебели. Ищите новые идеи и переходите на сайт, чтобы воплотить их в жизнь.