Добавить в корзинуПозвонить
Найти в Дзене

🏠ПРОЕКТЫ В РАБОТЕ

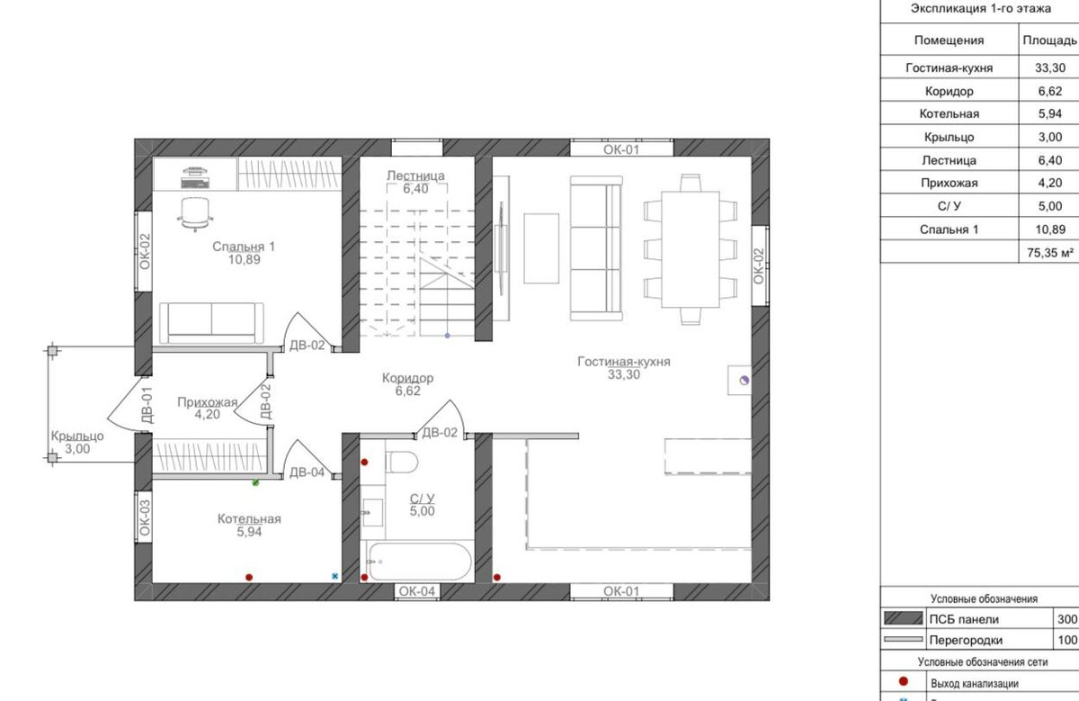
🏠ПРОЕКТЫ В РАБОТЕ За предыдущим проектом следует двухэтажный дом ➖ 12,5*8 ➖ наружные несущие стены 300мм ➖ внутренние несущие стены 300мм ➖ перекрытие ж/б плиты 4 спальни, 2 санузла и кухня-гостиная 33кв/м

🏠ПРОЕКТЫ В РАБОТЕ

За предыдущим проектом следует двухэтажный дом

➖ 12,5*8

➖ наружные несущие стены 300мм

➖ внутренние несущие стены 300мм

➖ перекрытие ж/б плиты

4 спальни, 2 санузла и кухня-гостиная 33кв/м

-2
-3