Найти в Дзене
DIVAN.RU

Эффектная студия 27 кв.м с черным потолком

Чтобы жить на такой скромной площади было комфортно, дизайнеры построили интерьер на философии конструктивизма: использовали геометрические простые формы и ахроматические цвета. Посмотрим, что получилось. «Этот ЖК находится в центре, в районе станции метро “Белорусская”, — рассказывают дизайнеры. — Сейчас здесь застраивается территория бывшего часового завода “СЛАВА”. Это комплекс апартаментов премиум-класса с отделкой white box, которая включает дорогую систему приточной вентиляции и центрального кондиционирования. Такой вариант отделки стал для нас одновременно и достоинством, и недостатком. С одной стороны, мы сократили бюджет и сроки на реализацию проекта. Однако вписать имеющееся климатическое оборудование в интерьер оказалось задачей со звездочкой. Мы знатно намучились с огромными блоками и трубами приточной вентиляции, которые требовали значительного опуска потолка. Так пришла идея контрастных черных коробов, которые стали основным композиционным элементом. Совсем как во фразе:
Оглавление

Чтобы жить на такой скромной площади было комфортно, дизайнеры построили интерьер на философии конструктивизма: использовали геометрические простые формы и ахроматические цвета. Посмотрим, что получилось.

  • Место: г. Москва, ЖК «Слава»
  • Объект: студия 27 кв.м в ЖК «Слава» (потолки 2,8 м), г. Москва
  • Дизайнеры: Венера Терегулова и Анна Козлова, студия VIA INTERIOR BURO, стилист Александра Пыленкова, фотограф: Женя Муравьева
  • Бюджет: 3 млн рублей

«Этот ЖК находится в центре, в районе станции метро “Белорусская”, — рассказывают дизайнеры. — Сейчас здесь застраивается территория бывшего часового завода “СЛАВА”. Это комплекс апартаментов премиум-класса с отделкой white box, которая включает дорогую систему приточной вентиляции и центрального кондиционирования. Такой вариант отделки стал для нас одновременно и достоинством, и недостатком. С одной стороны, мы сократили бюджет и сроки на реализацию проекта. Однако вписать имеющееся климатическое оборудование в интерьер оказалось задачей со звездочкой. Мы знатно намучились с огромными блоками и трубами приточной вентиляции, которые требовали значительного опуска потолка. Так пришла идея контрастных черных коробов, которые стали основным композиционным элементом. Совсем как во фразе: “Хочешь что-то спрятать — положи на видное место”».

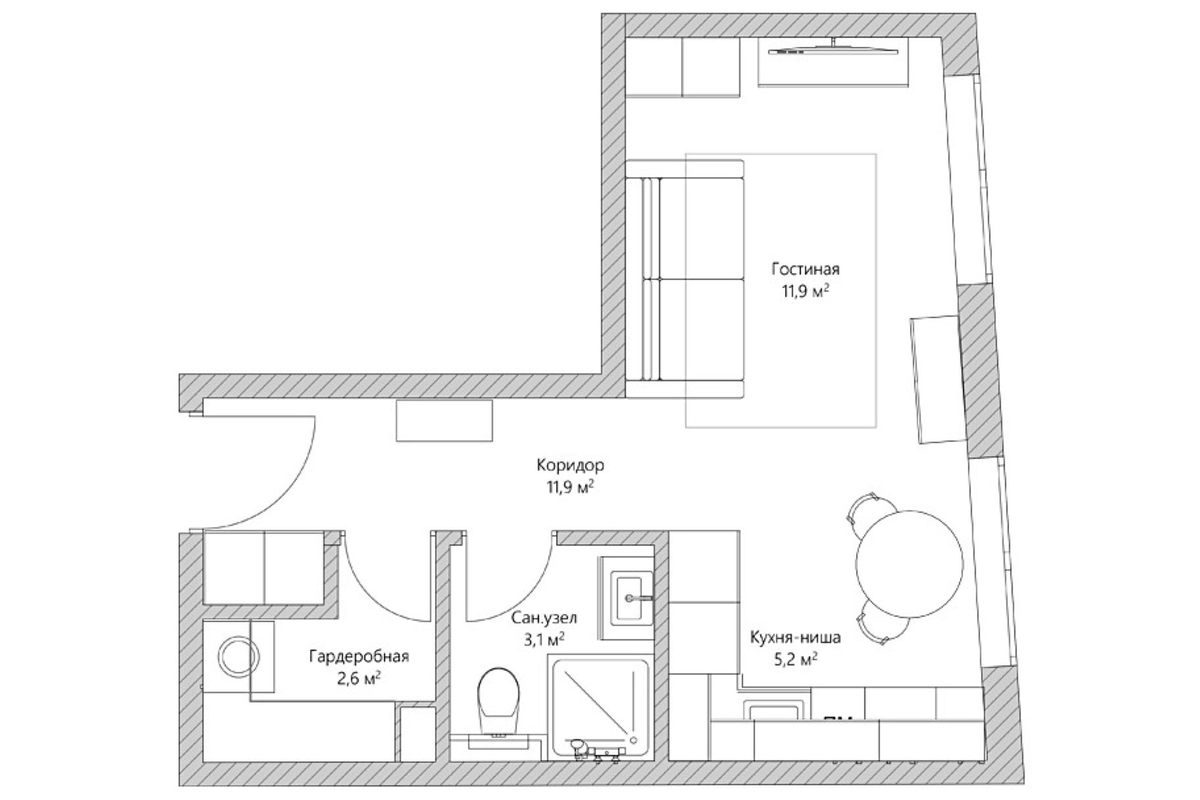
Планировочное решение

Фишка планировки: в черные блоки спрятаны массивные коммуникации, отвечающие за климатический контроль в помещениях, а также шкафы для одежды и кухонные пеналы. На интерьере все это никак не сказалось — квартира выглядит стильно, ничего не бросается в глаза и не портит композицию.

Итоговая планировка и расстановка мебели
Итоговая планировка и расстановка мебели

Заказчик попросил уложиться в три месяца, поэтому, чтобы не терять время, строительные работы стартовали без готового проекта — решения придумывали и чертили в режиме реального времени и сразу же воплощали.

Зона кухни

Студии с маленьким метражом редко предполагают кардинальное зонирование. Это, скорее, вариант «open space» — пространство поделено на зоны лишь условно.

Зона готовки располагается в нише. Все коммуникации, необходимые для готовки, зашили в один из контрастных черных кубов. Туда же встроили кухонную технику и частично систему хранения.

За придание дополнительного объема отвечает массивное зеркало — его установили в кухонной зоне. Верхний ярус гарнитура специально сделали низким. Зеркало стирает визуальную границу пространства и делает помещение более просторным и «воздушным».

Гостиная

Добавить уюта и домашнего тепла столь минималистичному и строгому пространству решено было при помощи меблировки. Из-за ограничения площади и особенностей геометрии студии установить в этой зоне полноценную кровать не было возможности. Поэтому выбрали компактный диван с раскладным механизмом. Дополнили его тумбой на металлическом основании и подвесной тумбой под телевизор и другую технику.

-5
К выбору мебели были жесткие ограничения: сроки и бюджет. Главной задачей было найти интересные предметы, чтобы поддержать отсылку к конструктивизму, но в доступном сегменте. С задачей помог справиться бренд divan.ru. Здесь мы заказали диван Ольен, тумбу Шелби на металлическом основании и подвесную ТВ-тумбу Бронте.

➡️Товары бренда divan.ru

Прихожая

Длинный и узкий коридор также не позволил «разгуляться» при выборе мебели. Для прихожей заказали встроенный шкаф. Он не только выполняет в данном случае свои прямые функции хранения, но и скрывает коммуникации. Потолок выкрасили в черный цвет, чтобы соблюсти единство.

В качестве яркого цветового акцента в коридоре был выбран пуфик терракотового оттенка. Пуф повторяет настроение таких же акцентных стульев в кухонной зоне.

-7

Санузел

В санузле повторили все ту же цветовую гамму, что и в остальных зонах квартиры — сочетание песочных оттенков и черного цвета. Габариты санузла невелики, поэтому стиральную машинку с функцией сушки пришлось перенести в гардеробную, располагающуюся при входе в квартиру. В самом санузле осталась только сантехника и компактная система хранения.

⚡️Цены ниже с промокодами! Применяйте скидку на товары из подборки: c тегом -5000 ₽ по промокоду SUPER5 и с тегом -10 000 ₽ по промокоду SUPER10

-9

============================

Оцените интерьер в комментариях, а если материал понравился — не забудьте поставить лайк👍

🖤divan.ru — не только блог про интерьеры, но и производитель доступной дизайнерской мебели. Ищите новые идеи и переходите на сайт, чтобы воплотить их в жизнь.