Добавить в корзинуПозвонить
Найти в Дзене
Саша PRO

Отец отсудил у дочери комнату

Судебный процесс, начатый бывшим супругом еще в июне, наконец заверщился. К сожалению, не в мою пользу. В июне он подал иск в суд с требованием определения порядка пользования жилым помещением, где просил суд присудить ему две комнаты (1 большую и 1 маленькую). А за мной с дочкой оставить 1 большую. У нас трехкомнатная квартира, 61,1 кв.м. Покупалась в браке с использованием материнского капитала. Изначально доли были выделены следующим образом: 1/22 вторая дочери, а 21/22 нам в совместную собственность. Размер доли дочери определял банк, исходя из размера ее вклада в стоимость квартиры (материнский капитал был 483 тысячи на тот момент). После развода я подала в суд на разделение наших с супругом долей, а он в ответ взыскал с меня ипотечные платежи за тот год, что я там не жила и доказал неравенство долей, так как деньги на первый взнос были его с продажи квартиры, общей с первой женой. После суда доли стали следующими (округляю) 8000/15000 у бывшего супруга, 6000/15000 у меня, и у
Исковое заявление от бывшего супруга
Исковое заявление от бывшего супруга

Судебный процесс, начатый бывшим супругом еще в июне, наконец заверщился. К сожалению, не в мою пользу.

В июне он подал иск в суд с требованием определения порядка пользования жилым помещением, где просил суд присудить ему две комнаты (1 большую и 1 маленькую). А за мной с дочкой оставить 1 большую.

У нас трехкомнатная квартира, 61,1 кв.м. Покупалась в браке с использованием материнского капитала. Изначально доли были выделены следующим образом: 1/22 вторая дочери, а 21/22 нам в совместную собственность. Размер доли дочери определял банк, исходя из размера ее вклада в стоимость квартиры (материнский капитал был 483 тысячи на тот момент).

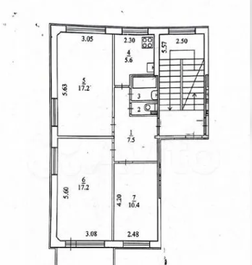
Планировка квартиры. Бывший отсудил себе комнату под номером 5 и 7. В комнате 7 проживает дочь
Планировка квартиры. Бывший отсудил себе комнату под номером 5 и 7. В комнате 7 проживает дочь

После развода я подала в суд на разделение наших с супругом долей, а он в ответ взыскал с меня ипотечные платежи за тот год, что я там не жила и доказал неравенство долей, так как деньги на первый взнос были его с продажи квартиры, общей с первой женой.

После суда доли стали следующими (округляю) 8000/15000 у бывшего супруга, 6000/15000 у меня, и у дочери осталась 1/22. До мая 2023 в квартире проживал бывший супруг со своей новой женщиной. Я всячески пыталась решить ситуацию, чтобы избавиться от квартиры - хотела подарить ему долю, но он отказался платить налог, хотела продать ему свою долю за фактический вклад, выкупить у него за его фактический вклад. Также было предложение сдавать квартиру по комнатам, погашать этими деньгами досрочно ипотеку, а самим жить на съеме. Он сначала согласился на это, а потом резко передумал и остался жить в квартире.

В мае 2023 он написал, что съехал и квартиру хочет продавать. Но покупать новую квартиру и выделять долю ребенку я должна сама. А еще и ипотеку полностью платить, пока квартира продается. Но при этом жить там мне нельзя. Естественно, жить мне там было нельзя. Конечно, расклад такой меня не устроил, и со съемного жилья мы вернулись в квартиру. Ипотеку бывший супруг не платил, а опека не разрешила продажу с деньгами на счет, только параллельную сделку. Ипотеку банк мне не одобрял.

Прошло 2 года, как мы живем здесь. Было множество очередных попыток решить ситуацию с квартирой и бывшим мужем - перенести ипотеку на меня, вывести его из заемщиков и т.п., но всё впустую. При этом я жила и платила ипотеку, с бывшего супруга ничего не требовала.

И вот внезапно в июне мне прилетает иск от него. Типа он боится, что я с него взыщу ипотечные платежи. А также его новой семье (жена уже успела родить совместного мальчика + у нее есть дочь от первого брака) нужно жилье, поэтому он хочет 2 комнаты, так как его доля больше моей.

Естественно, что я с такой ситуацией была несогласна. Самостоятельна составила ответный иск с взысканиями по ипотеке и ЖКХ за прошедшие 2 года (я не собиралась, но если на меня подали иск, мне молчать что ли?) и с требованием определить следующий порядок пользования:

  • одну большую комнату признать за мной
  • вторую большую комнату (такую же, как первая) признать за бывшим супругом;
  • маленькую комнату отдать дочери.

Исковое заявление свое я отдала в суд еще до первого заседания, чтобы не затягивать процесс. Но он всё равно затянулся. В первом заседании оказалось, что дочь нужно добавить как ответчика, потому что в изначальном иске ее не было (странно, что адвокат не учел этот момент, ведь она тоже собственник).

Между первым и вторым заседанием бывший муж внес 250 000 рублей на досрочку по ипотеке (чтобы нивелировать мои исковые требования по взысканию) и, соответственно, увеличил свои исковые требования. Опять перенос заседания аж на месяц (видимо, судья уходила в отпуск).

К третьему заседанию адвокат вдруг решила пересчитать мои требования по ЖКХ, что-то ей там не понравилось по суммам. В итоге суд взял паузу на 10 дней для уточнения.

Наконец, последнее заседание состоялось 7 октября 2025 года. Адвокат настаивала на позиции, что бывшему супругу необходимо 2 комнаты, так как у него новая семья из 4 человек, а мне с ребенком будет достаточно проживания в комнате. Я же говорила, что нужно учитывать сложившийся порядок пользования, дочь пользуется маленькой комнатой, проживает в ней, и это нужно учитывать, ведь она тоже собственник.

Суд удалился на принятие решения, сказали позвонить на следующий день и узнать решение. Но к следующему дню оно было не готово. На второй день я все-таки услышала решение: "комнаты распредели согласно требованиям истца". Это значит, что две комнаты присудили бывшему супругу. Мотивированного решения в письменном виде пока нет, а мне очень хочется увидеть, на каком основании суд принял такое решение.

Пока что мы вроде договорились продать квартиру и купить дочери, но он сказал, что если будет въезжать в эту, то дочь из комнаты выселит. Вот такой расклад.