Добавить в корзинуПозвонить
Найти в Дзене
Realt.by

С мебелью и техникой. Посмотрите, какую уютную квартиру продают в минской панельке

В панельном доме около Лошицкого парка продается стильная однокомнатная квартира. Жилье подготовили для проживания без дополнительных вложений: сделали хороший ремонт, поставили мебель и технику. Взгляните, как тут разделили зоны и подобрали цвета. Цену тоже пишем. Кстати, эту однушку можно купить в лизинг — бесплатная консультация вот тут. Девятиэтажный панельный дом на Бородинской, 17/2 построили в 1986 году. На седьмом этаже тут продается однокомнатная квартира площадью 37,2 м². На кухню приходится 7 квадратов. Жилье полностью готово к проживанию. Здесь сделан хороший светлый ремонт: стены отделаны декоративной штукатуркой, на полу лежат ламинат и плитка. В комнате и кухне продумано несколько сценариев освещения. Квартира укомплектована мебелью и бытовой техникой. Например, в кухне есть холодильник, посудомоечная машина, газовая панель и духовой шкаф. Комната разделена на две зоны реечной перегородкой. Около окна разместилась спальня, на второй половине — гостиная с диван и телевиз

В панельном доме около Лошицкого парка продается стильная однокомнатная квартира. Жилье подготовили для проживания без дополнительных вложений: сделали хороший ремонт, поставили мебель и технику. Взгляните, как тут разделили зоны и подобрали цвета. Цену тоже пишем. Кстати, эту однушку можно купить в лизинг — бесплатная консультация вот тут.

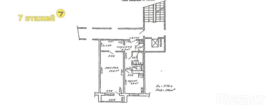
Девятиэтажный панельный дом на Бородинской, 17/2 построили в 1986 году. На седьмом этаже тут продается однокомнатная квартира площадью 37,2 м². На кухню приходится 7 квадратов.

-2

Жилье полностью готово к проживанию. Здесь сделан хороший светлый ремонт: стены отделаны декоративной штукатуркой, на полу лежат ламинат и плитка. В комнате и кухне продумано несколько сценариев освещения.

Квартира укомплектована мебелью и бытовой техникой. Например, в кухне есть холодильник, посудомоечная машина, газовая панель и духовой шкаф.

Комната разделена на две зоны реечной перегородкой. Около окна разместилась спальня, на второй половине — гостиная с диван и телевизором.

Ванная комната и санузел имеют яркий желтый цвет. Установлен душ, в туалете — гигиенический душ.

Из комнаты есть выход на застекленный балкон. В коридоре сделаны просторные шкафы.

Около дома расположились магазины, в шаговой доступности — остановки и Лошицкий парк. За 25 минут можно дойти до станции метро «Аэродромная».

Оценивают однушку в 99 тысяч долларов. Метр стоит 2 661 доллар.