Добавить в корзинуПозвонить
Найти в Дзене

Квартира с заделом на будущее: 72 м² с окном в ванной комнате и гардеробной

Заказчик этого интерьера — занятой молодой человек — попросил нас сделать свою квартиру теплой и умиротворяющей, чтобы он мог восстанавливать в ней силы. Мы сделали светлый интерьер с мебелью кофейного оттенка, а после перепланировки кухня-гостиная и мастер-спальня стали больше и комфортнее. Привет! Меня зовут Карен Карапетян, я — архитектор и интерьерный дизайнер. Мы в компании Alexander Tischler проектируем и реализуем интерьеры, а также проектируем и производим корпусную мебель. Мы сделали дизайн-проект и ремонт этого интерьера. Мы подготовили смету и зафиксировали стоимость реализации еще на этапе проектирования, и в процессе ремонта сумма не изменилась. У изначальной планировки были свои плюсы, например, в ней нет несущих стен и есть окно в ванной комнате. Но были и минусы: небольшая кухня-гостиная, крошечная гардеробная, стандартный выход на лоджию с подоконным блоком, узкая гостевая ванная комната. А еще место для внешнего блока кондиционера запланировано только на лоджии Мы пор
Оглавление

Заказчик этого интерьера — занятой молодой человек — попросил нас сделать свою квартиру теплой и умиротворяющей, чтобы он мог восстанавливать в ней силы. Мы сделали светлый интерьер с мебелью кофейного оттенка, а после перепланировки кухня-гостиная и мастер-спальня стали больше и комфортнее.

Привет! Меня зовут Карен Карапетян, я — архитектор и интерьерный дизайнер. Мы в компании Alexander Tischler проектируем и реализуем интерьеры, а также проектируем и производим корпусную мебель.

Мы сделали дизайн-проект и ремонт этого интерьера. Мы подготовили смету и зафиксировали стоимость реализации еще на этапе проектирования, и в процессе ремонта сумма не изменилась.

Дизайн интерьера квартиры в стиле минимализм, фотографии
Дизайн интерьера квартиры в стиле минимализм, фотографии

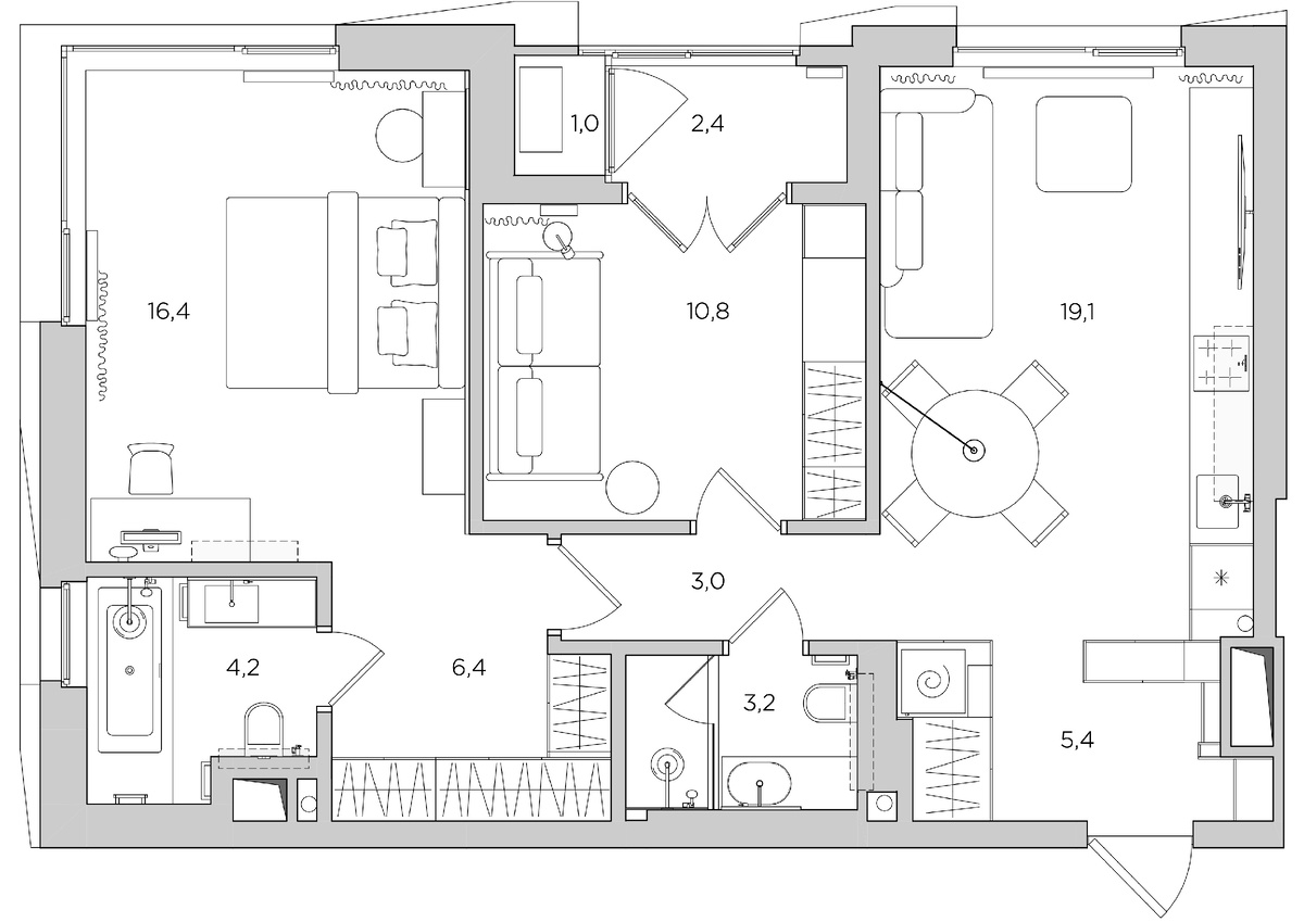
Планировка квартиры 72 м² с двумя спальнями

У изначальной планировки были свои плюсы, например, в ней нет несущих стен и есть окно в ванной комнате. Но были и минусы: небольшая кухня-гостиная, крошечная гардеробная, стандартный выход на лоджию с подоконным блоком, узкая гостевая ванная комната. А еще место для внешнего блока кондиционера запланировано только на лоджии

Мы поработали над планировкой и увеличили гардеробную за счет гостевой ванной, расширили гостевую ванную комнату, сдвинув коридор, убрали подоконный блок и поставили распашное окно в пол, выделили технический блок для вентоборудования на лоджии, убрали перегородку между кухней-гостиной и прихожей.

Если вы тоже хотите доверить перепланировку и дизайн интерьера своей квартиры или дома профессионалам, оставляйте заявку на нашем сайте. Мы делаем реализацию интерьера по фиксированной смете.

Дизайн интерьера кухни-гостиной в стиле минимализм

Кухня-гостиная в стиле минимализм, фотография
Кухня-гостиная в стиле минимализм, фотография

Мы убрали перегородку между прихожей и кухней-гостиной, разделили их только неглубоким шкафом. Так кухня-гостиная стала больше, а в прихожую теперь попадает свет от окна.

Кухонные пеналы и верхние модули мы сделали в шпоне дуба, тонировку которого подобрали специально для этого интерьера. Нижние модули кухни мы довели до окна, благодаря чему столешницу сделали длиной более четырех метров.

Для отдыха мы выбрали диван с приставной оттоманкой, в ней же можно хранить важные мелочи и книги. Контрастный обеденный стол одновременно поддерживает черные элементы в интерьере и добавляет уюта благодаря мягкому подстолью. Между столом и диваном мы повесили подвижный светильник.

Я также снял видеообзор этого интерьера, приглашаю посмотреть

Дизайн прихожей в современном стиле

Большой шкаф в прихожей мы сделали в цвет стен, а один из фасадов — зеркальным. За ним расположены стиральная и сушильная машины. Левее — неглубокая ниша для гладильной доски. Пространство прихожей мы визуально увеличили с помощью второго зеркала, его мы заглубили между панелей, так создается ощущение портала. У бежевого шкафа мы не довели фасады до пола — там будет база для робота-пылесоса, который сможет без преград выезжать на работу.

Дизайн гостевой спальни, которая легко станет детской

Гостевую спальню, которая в будущем легко станет детской, мы немного уменьшили из-за расширения гостевой ванной комнаты. Здесь на лоджии расположено единственное место для внешнего блока кондиционера, которое запланировал застройщик.

Если бы мы расположили внешний блок кондиционера, как запланировал застройщик, то в летнее время лоджией было бы невозможно пользоваться: было бы шумно и жарко. Поэтому мы нашли решение: не меняя фасад здания, мы выделили на лоджии небольшое пространство для внешнего блока кондиционера и приточной вентиляции, оградив их дверью с шумоизоляцией. Также мы убрали подоконный блок и поставили распашное окно в пол: так в комнате стало больше света.

Дизайн минималистичной гостевой ванной комнаты

Мы уменьшили детскую комнату, чтобы гостевую ванную сделать шире: на планировке от застройщика она была слишком узкой, приблизив ее форму к квадрату, мы комфортно расположили сантехнику. Слева над унитазом шкаф, который выступает из плоскости стены, таким образом полки в нем получились более глубокими. Прямо перед входом — подвесная тумба с интегрированной раковиной, а правее — душевая.

Дизайн интерьера главной спальни с гардеробной и ванной

Благодаря большому угловому окну главная спальня наполнена светом и воздухом, мы поддержали это ощущение «парящей» кроватью — ее ножки прозрачные и заглублены, а также стеновой панелью за изголовьем — она формирует низкую горизонталь, подчеркивая большое свободное пространство сверху.

Дизайн спальни в современном стиле в Москве
Дизайн спальни в современном стиле в Москве

Слева от кровати мы сделали консольный косметический столик в той же отделке, что и панели за кроватью. Над ним — круглое зеркало с подсветкой.

Дизайн рабочего места в спальне в стиле минимализм
Дизайн рабочего места в спальне в стиле минимализм

По просьбе заказчика мы поставили в спальне рабочий стол в минималистичной темной отделке с едва-заметной текстурой. Над столом повесили большую книжную полку и круглое бра.

Мы убрали перегородку между гардеробной и спальней, и немного увеличили гардеробную за счет гостевой ванной. Здесь мы разместили шкафы с полками, ящиками и штангами для развески одежды. Зеркала мы расположили на двух распашных фасадах от пола до потолка.

Если вы тоже хотите сделать интерьер по всем своим пожеланиям, при этом не погружаясь в рутину ремонта, оставляйте заявку на нашем сайте. Мы сами делаем всю реализацию по фиксированной смете.

Дизайн и ремонт ванной комнаты с окном

Главное украшение ванной комнаты — окно, открывающее вид на современный квартал. Для него мы выбрали светлые жалюзи из бамбука, он отлично переносит влажность. Чтобы сделать стык подоконника и ванны аккуратным, мы оформили ванну рамкой из такого же керамогранита с текстурой травертина, что и на стенах. На всей этой рамке сделали разуклонку, чтобы вода легко стекала в ванну.

Cмету этого интерьера мы опубликовали на странице интерьера на сайте, переходите по ссылке

Если вы тоже хотите не беспокоиться о ремонте и реализовать интерьер, который будет полностью отвечать вашим пожеланиям, оставляйте заявку на нашем сайте

Другие наши интерьеры: