Добавить в корзинуПозвонить
Найти в Дзене

🔥Важно не количество квадратных метров, а умение с ними работать

🔥Важно не количество квадратных метров, а умение с ними работать! 🔥Даже маленькое пространство будет комфортным и красивым, если им грамотно распорядиться. 🔥Листайте Карусель. И 35м2 можно сделать удобными для семьи с двумя детьми. Что даст планировочное решение? 🔥При планировании помещения, мы продумаем все пути перемещения, учтём все ваши привычки и требования. 🔥Это станет хорошей отправной точкой для самостоятельной разработки дизайна. И опять же вопрос цены. 🔥Планировочное решение гораздо дешевле, чем полноценный дизайн-проект. ☝Состав проекта. 1 Обмерный план. 2 План перепланировки. Напрямую зависит от потенциала помещения. 5 План привязки сантех оборудования. Цена до 50м2 550руб/м2, До 80 м2 520руб/м2, До 120 м2 490 руб/м2. #планировка #перепланировка

🔥Важно не количество квадратных метров, а умение с ними работать!

🔥Даже маленькое пространство будет комфортным и красивым, если им грамотно распорядиться.

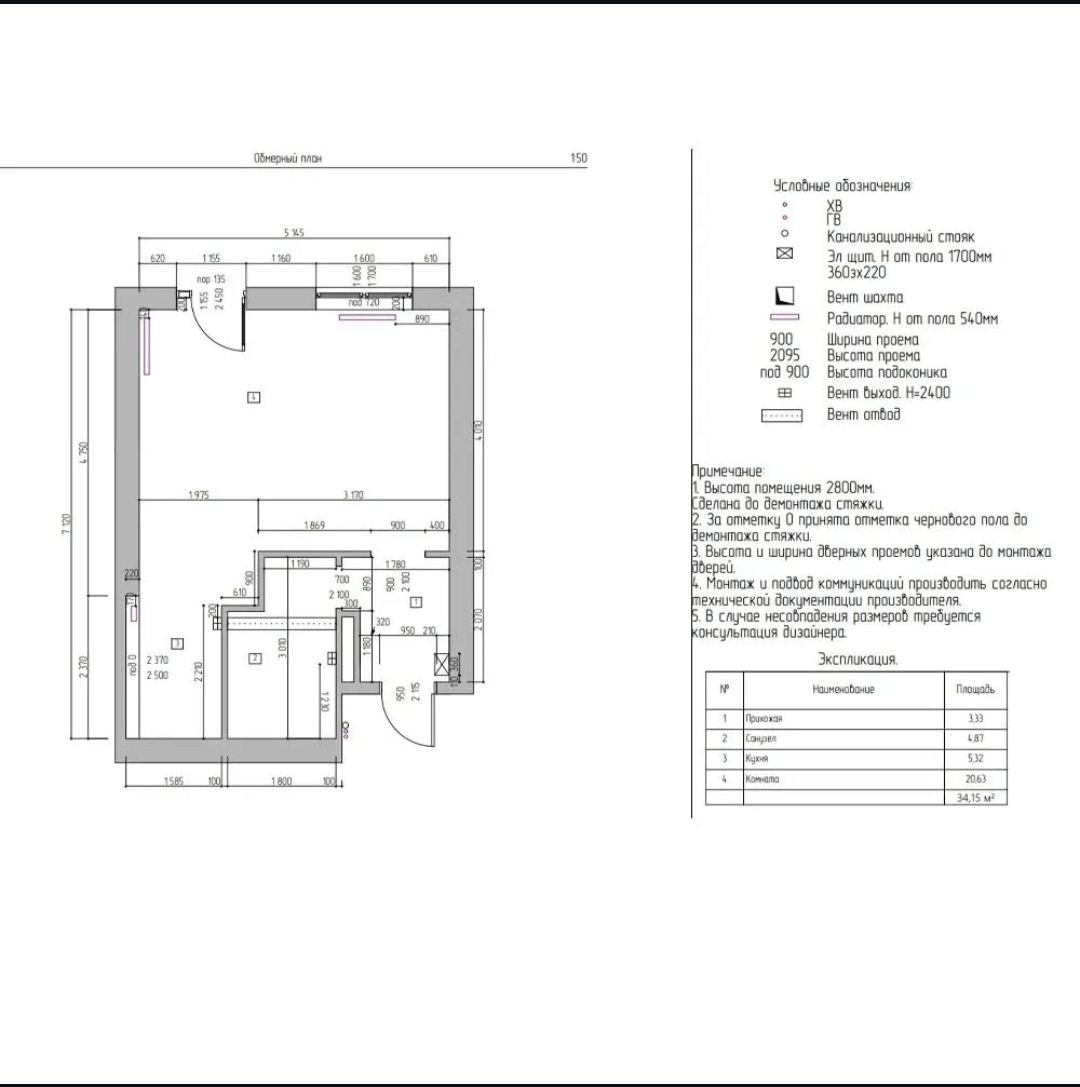
🔥Листайте Карусель. И 35м2 можно сделать удобными для семьи с двумя детьми.

Что даст планировочное решение?

🔥При планировании помещения, мы продумаем все пути перемещения, учтём все ваши привычки и требования.

🔥Это станет хорошей отправной точкой для самостоятельной разработки дизайна.

И опять же вопрос цены.

🔥Планировочное решение гораздо дешевле, чем полноценный дизайн-проект.

☝Состав проекта.

1 Обмерный план.

2 План перепланировки. Напрямую зависит от потенциала помещения.

5 План привязки сантех оборудования.

Цена до 50м2 550руб/м2,

До 80 м2 520руб/м2,

До 120 м2 490 руб/м2.

#планировка #перепланировка

-2
-3
-4
-5