Добавить в корзинуПозвонить
Найти в Дзене
Сканди | Интерьер

Эта квартира всего 13 квадратов! Как тут можно жить? И куда впихнули спальню?

Нашла любопытную информацию. В Петербурге сегодня насчитывается около 58 тысяч коммунальных квартир, в которых живет почти 170 тысяч человек. Большая часть этого жилья — огромные коммуналки в историческом центре. Решить проблему коммуналок петербургские власти пытаются с 1990-х годов: в 1996 году коммуналки составляли около 35% всех квартир в Санкт-Петербурге. Сейчас, конечно, цифры гораздо меньше... Часть коммуналок расселяют по городской программе, но некоторые коммунальные квартиры удается расселить за счет инвесторов — они договариваются с собственниками и выкупают комнаты. Кто-то скупает коммуналки для себя, а кто-то превращает их в бизнес-проект. Так произошло и с этой коммунальной квартирой в старом центре Санкт-Петербурга. Все 12 комнат сейчас принадлежат одному владельцу. Он планирует переделать комнаты в отдельные апартаменты, чтобы сдавать их в посуточную аренду туристам. За помощью собственник обратился к дизайнерам. Они разработали проект перепланировки для самой маленькой

Нашла любопытную информацию. В Петербурге сегодня насчитывается около 58 тысяч коммунальных квартир, в которых живет почти 170 тысяч человек. Большая часть этого жилья — огромные коммуналки в историческом центре.

Решить проблему коммуналок петербургские власти пытаются с 1990-х годов: в 1996 году коммуналки составляли около 35% всех квартир в Санкт-Петербурге. Сейчас, конечно, цифры гораздо меньше...

Часть коммуналок расселяют по городской программе, но некоторые коммунальные квартиры удается расселить за счет инвесторов — они договариваются с собственниками и выкупают комнаты. Кто-то скупает коммуналки для себя, а кто-то превращает их в бизнес-проект.

Так произошло и с этой коммунальной квартирой в старом центре Санкт-Петербурга.

Все 12 комнат сейчас принадлежат одному владельцу. Он планирует переделать комнаты в отдельные апартаменты, чтобы сдавать их в посуточную аренду туристам.

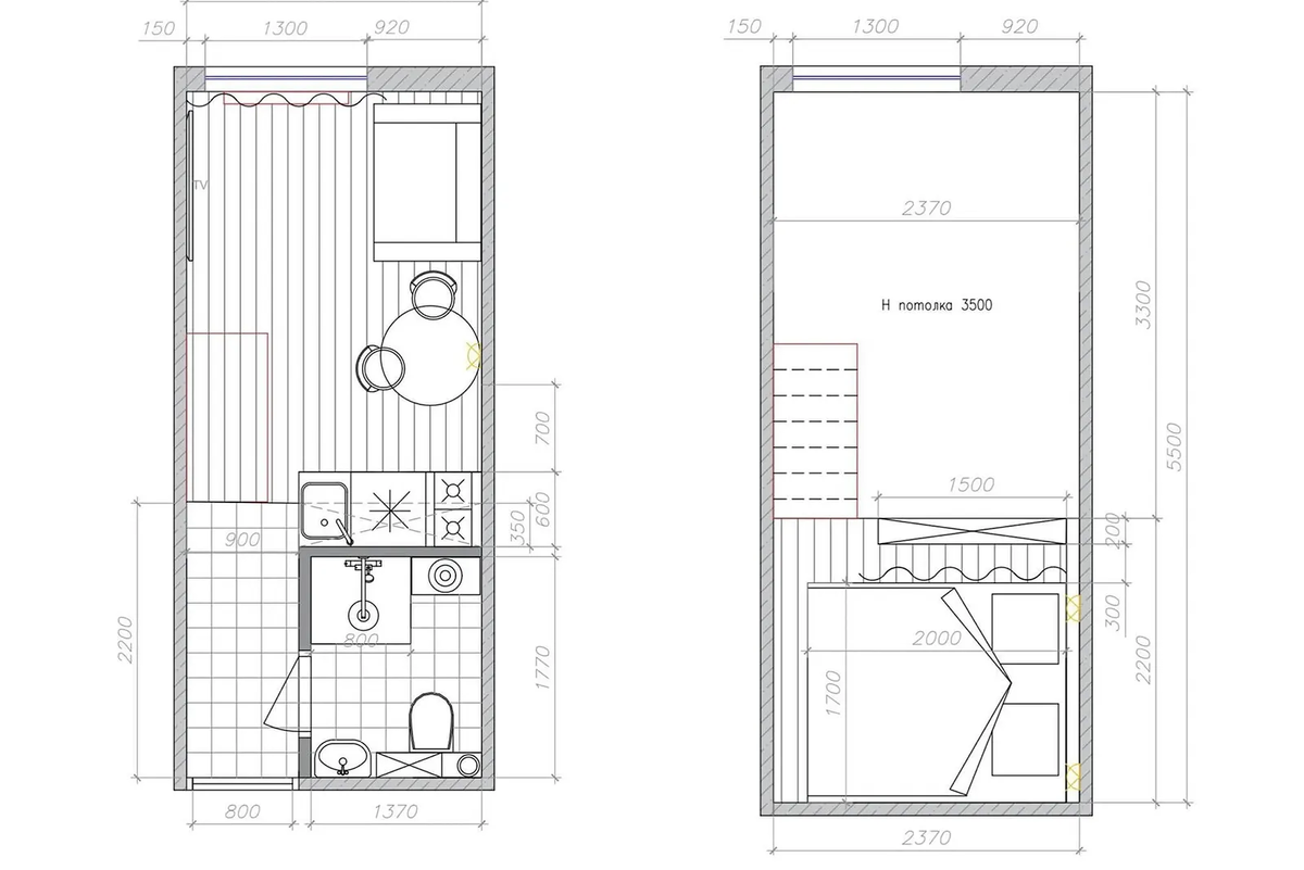
За помощью собственник обратился к дизайнерам. Они разработали проект перепланировки для самой маленькой комнаты площадью 13 квадратных метров. На крохотном пространстве удалось разместить кухню, гостиную, спальню и отдельный санузел с душем.

Вот как выглядит обновленный план бывшей комнаты, а ныне квартиры:

-2

Сам интерьер такой:

-3

— Мы постарались максимально продумать планировку помещения, — рассказывает хозяин бывшей коммуналки. — По наполнению получилось так: кухня с мини-холодильником, двухконфорочная плита и вытяжка, раковина, микроволновка, стол и два венских стула, раскладывающийся мини-диван.

Складная лестница ведет на второй этаж, где расположено спальное место и полки для хранения одежды. В санузле помимо основных необходимых вещей поместились крохотная стиральная машинка и бойлер.

❗️Объявление! У меня есть блог в Телеграм о домах — там новые истории, мои покупки для дома, живое общение со мной. Вот, например, обзор крошечной квартиры 25 квадратов на окраине Москвы, где живет врач-сомнолог (я еще не публиковала эти фото в Дзене). А вот атмосферный старый дом, где 300 лет назад жила семья аптекарей. Посмотрите, как этот дом выглядит сейчас!

-4

В зоне прихожей не нашлось места для отдельного шкафа, поэтому здесь сделали потолочную штангу для верхней одежды. Получилось компактно и стильно.

-5

Лестница на антресольный этаж частично загораживает проход, поэтому ее сделали откидной. При необходимости конструкцию можно убрать к стене.

На условном втором этаже для комфорта есть настенное бра, чтобы почитать книгу перед сном, и плотная-штора, чтобы была возможность её закрыть и выспаться в любое время суток.

-6
-7
-8
-9

Второй этаж-антресоль со спальным местом под потолком удалось оборудовать благодаря высоким потолкам 3,5 метров.

-10
-11

-12
-13
-14

💬 Вот такая крошечная квартирка получилась. Как вам такой ремонт? Вы за или против расселение/переделку коммуналок?

У меня есть еще 3 интересных статьи про крохотное жилье. Посмотрите, как живут люди в разных городах и странах:

🔥 Москвичка показала свою квартиру на окраине столицы. Здесь всего 21 квадрат. Кухню спрятали в необычное место...

😱 Петербуржец переделал коммуналку, в которой вырос. Из 11 квадратов получилась настоящая квартира!

😳 У нас такого не встретишь: женщина из Швеции показала свою однушку 27 квадратов.