Добавить в корзинуПозвонить
Найти в Дзене
ПРОЕКТ-КОМ

Отключить газ в квартире в Красногвардейском районе СПб

Как отключить газ в квартире многоквартирного дома и перейти на электричество. Вопрос отключения газа в квартире многоквартирного дома, тесно связан с выделенной электрической мощностью квартиры. И часто у собственников возникают проблемы с оформлением электрического оборудования взамен газового. Рекомендуем дочитать статью до конца, чтобы знать заранее о возможных трудностях в оформлении документации. Для разработки проекта, необходимо собрать и заказать необходимую исходно-разрешительную документацию: Вам не понадобится ничего заказывать и получать, за Вас это сделает проектная организация, а именно: Выбирая проектную организацию ПРОЕКТ-КОМ: от Вас понадобится только доверенность. Чтобы внести изменения в планировку и оснащение квартиры, в том числе — отказаться от газа, необходимо предоставить в ПетербургГаз: Важно: стоит отметить важность выделенной электрической мощности квартиры т.к. районная Администрация (МВК) НЕ даст положительного решения в случае недостаточной электрическо
Оглавление
Согласование перепланировки и переустройства квартиры СПб и Ленинградской области
Согласование перепланировки и переустройства квартиры СПб и Ленинградской области

Как отключить газ в квартире многоквартирного дома и перейти на электричество.

Вопрос отключения газа в квартире многоквартирного дома, тесно связан с выделенной электрической мощностью квартиры.

И часто у собственников возникают проблемы с оформлением электрического оборудования взамен газового.

Рекомендуем дочитать статью до конца, чтобы знать заранее о возможных трудностях в оформлении документации.

Разработка проекта перепланировки

Для разработки проекта, необходимо собрать и заказать необходимую исходно-разрешительную документацию:

  1. ПЭУ ПетербургГаз — исполнительная документация об установленном газовом оборудовании в квартире;
  2. ГУП ГУИОН — техническая документация (технический паспорт на квартиру, поэтажные планы выше и нижерасположенных помещений);
  3. ЕГРН — актуальные сведения (выписка);
  4. Управляющая компания дома — подтверждение существующей электрической мощности и(или) технические условия для присоединения дополнительной.

Вам не понадобится ничего заказывать и получать, за Вас это сделает проектная организация, а именно:

  1. Соберёт, закажет и разработает необходимую исходно-разрешительную документацию;
  2. Проведет обследование технического состояния конструкций здания;
  3. Разработает план совмещенных инженерных сетей;
  4. Соберет технические условия в управляющей компании дома (УК);
  5. Даст заключение обследования несущих строительных конструкций здания;
  6. Проведёт обследование технического состояния дымохода и вентиляционных каналов;
  7. Разработает проект в необходимых разделах;
  8. Получит ряд предварительных консультаций если имеются сложные и спорные вопросы.

Выбирая проектную организацию ПРОЕКТ-КОМ: от Вас понадобится только доверенность.

Чтобы внести изменения в планировку и оснащение квартиры, в том числе — отказаться от газа, необходимо предоставить в ПетербургГаз:

  1. проект перепланировки и переустройства квартиры;
  2. проект организации демонтажа внутридомового газопровода;
  3. решение Администрации Петроградского района (МВК) о согласовании проекта;
  4. согласие управляющей компании дома об отключении квартиры от системы газоснабжения;
  5. документы, подтверждающие выделенную электрическую мощность на квартиру.
Важно: стоит отметить важность выделенной электрической мощности квартиры т.к. районная Администрация (МВК) НЕ даст положительного решения в случае недостаточной электрической мощности.

Разрешение на проведение работ

Проект перепланировки и переустройства квартиры требует утверждения с:

  1. УК дома (управляющая компания);
  2. ОГПН (отдел государственного пожарного надзора) — по требованию;
  3. МВК (районная межведомственная комиссия).

Срок принятия Администрацией решения о согласовании или об отказе в согласовании переустройства и (или) перепланировки жилого помещения в многоквартирном доме – 45 календарных дней.

отметка «проект согласован» Администрацией Красногвардейского района (МВК)
отметка «проект согласован» Администрацией Красногвардейского района (МВК)

Только после того, как проект будет одобрен, можно приступать к практической части – избавляться от газового оборудования и лишних труб — силами ПетербургГаз!

Демонтаж газопровода

Чтобы газ отключили, необходимо обратиться в газовую службу с заявлением и согласованным проектом МВК, а также справкой управляющей компании дома, подтверждающее своё согласие на отключение квартиры от системы газоснабжения. В отсутствие такого согласия — газовая служба не примет заявку.

кадр выполненных работ по демонтажу (обрезка с установкой заглушки на сварке) внутриквартирного газопровода по проекту согласованным с Администрацией Красногвардейского района (МВК)
кадр выполненных работ по демонтажу (обрезка с установкой заглушки на сварке) внутриквартирного газопровода по проекту согласованным с Администрацией Красногвардейского района (МВК)

По завершении работ (демонтаж внутриквартирного газопровода) — выдают акт отключения газоиспользующего оборудования.

акт отключения бытового газоиспользующего оборудования ПетербургГаз
акт отключения бытового газоиспользующего оборудования ПетербургГаз

Покупка дополнительной мощности

Возможность отключения квартиры от системы газоснабжения, напрямую зависит от выделенной электрической мощности квартиры.

В старом фонде (строении) в газифицированных квартирах*, выделено как правило 3 кВт по одной фазе. И это ПРОБЛЕМА. О замене газовой плиты на электрическую, и речи не может идти, т.к. для электроплиты обязательное условие: 3 фазы, да и мощности необходимо больше.

*за редким исключением, встречаются газифицированные квартиры с выделенной мощностью 10 кВт по трём фазам

Постановление Правительства Российской Федерации (далее РФ) №354 от 06.052.2011 Потребитель не в праве использовать бытовые машины бытовые машины (приборы, оборудование), мощность подключения которых превышает максимально допустимые нагрузки, рассчитанные исполнителем исходя из технических характеристик внутридомовых инженерных систем.

Часто задаваемый вопрос: «А можно установить варочную поверхность, которая потребляет мало мощности!? И не увеличивать электрическую мощность квартиры!?»

Отвечаем: Теоретически да — это возможно. И расчётами можно доказать возможность использования индукционной варочной поверхности, при существующих 3 кВт по одной фазе. Но ключевое слово тут «теоретически»

Как это происходит на практике: Вернёмся к вопросу, кто выдаёт разрешение на проведение работ по перепланировке и переустройству квартиры? Районная МВК при Администрации района!

Т.е. МВК заключает, что данные изменения гарантируют безаварийную эксплуатацию квартиры в многоквартирном доме.

Но где гарант того, что после приёмки выполненных работ, собственник не заменит индукционную плиту на мощную полноценную?

После чего, с великой вероятностью сгорит проводка дома — именно такой логикой руководствуется МВК.

Дополнительно Вам могут отказать в управляющей компании дома, т.к. без их письменного согласия на отключение квартиры от системы газоснабжения, даже с согласованным проектом МВК - газ Вам НЕ отключат.

А кроме варочной поверхности на кухне есть и жарочный шкаф — духовка по-простому. Наличие которой также требуется законодательно!

Свод правил СП 54.13330.2022 гласит следующее:

Пункт 5.7 Необходимо предусматривать следующее оборудование вспомогательных помещений:

  • в кухне – мойку, кухонную плиту (или варочную панель и жарочный шкаф) для приготовления пищи.

Что включает в себя поиск дополнительной мощности:

  • Анализ электроустановки квартиры (обследование);
  • Проверка технического состояния электросетей дома (обследование);
  • Подтверждение существующей мощности в случае отсутствия документов;
  • Поиск дополнительной выделенной мощности (расчет резерва нагрузок сетей дома);
  • Подготовка технических условий (разработка необходимых мероприятий);
  • Демонтаж существующего ввода и монтаж нового (необходимое количество кабельных линий).

Какие дополнительные мероприятия могут от Вас потребовать:

  • Провести собрание всех собственников многоквартирного дома, по вопросу выделения дополнительной мощности для Вашей квартиры – СЛОЖНАЯ задача.
Важно: в случае незаконной перепланировки квартиры, и отсутствием разработанного проекта, в выдаче технических условий для присоединения дополнительной электрической мощности, управляющая компания дома откажет!

Для замены газовый плиты на электрическую, в большинстве случаев — необходимо увеличить электрическую мощность.

Определив техническую возможность увеличения мощности квартиры, только после этого, можно приступать к организации демонтажа внутриквартирного газопровода.

технические условия для подключения дополнительной мощности
технические условия для подключения дополнительной мощности

Увеличить электрическую мощность квартиры — это не проблема! Это задача, требующая организации ряда необходимых мероприятий.

Как это сделать Вы можете узнать из нашего издания — Электрическая мощность в квартире многоквартирного дома, как увеличить?

По завершении всех работ, в т.ч. отключения квартиры от системы газоснабжения, и установке электрического оборудования — необходимо повторно обратиться в Администрацию района (МВК).

Приёмка в эксплуатацию выполненных работ

По завершении строительно-монтажных и демонтажных работ в квартире, необходимо завершить оформление документов: уведомить о переустройстве ряд инстанций:

  1. ГУП ГУИОН для замера квартиры;
  2. ОГПН (отдел государственного пожарного надзора) — по требованию;
  3. МВК.

Какие документы необходимо предоставить в МВК:

  1. Переобмер помещений квартиры;
  2. Договор подрядных работ;
  3. Технический надзор с актами скрытых работ;
  4. Справка о вывозе строительного мусора;
  5. Акт отключения газоиспользующего оборудования ПетербургГаз;
  6. Акт приёмки ОГПН (отдел государственного пожарного надзора) — по требованию.

В случае положительного прохождения проверки всех трёх инстанций, последняя, районная МВК выдаёт акт приёмочной комиссии — о приёмке в эксплуатацию выполненных работ.

Имея на руках акт приёмки в эксплуатацию выполненных работ, можно закрывать лицевой счёт Газпром межрегионгаз Санкт-Петербург.

Закрытие лицевого счёта

Необходимо обратиться в офис «Газпром межрегионгаз Санкт-Петербург»: погасить задолженность и закрыть лицевой счёт.

справка Газпром Межрегионгаз Санкт-Петербург об отсутствии задолженности и закрытии лицевого счёта
справка Газпром Межрегионгаз Санкт-Петербург об отсутствии задолженности и закрытии лицевого счёта

Последним действием по вопросу газоснабжения будет — изменение тарифа за электроэнергию.

О том как это сделать, читайте в нашем издании — Изменить тариф за электроэнергию. Смена тарифа с «газовая плита» на «электрическую»

Новая планировка квартиры

Статья 25 ЖК РФ. Виды переустройства и перепланировки помещения в многоквартирном доме:

  • Пункт 2. Перепланировка помещения в многоквартирном доме представляет собой изменение границ и (или) площади такого помещения, и (или) образование новых помещений, в том числе в случаях, предусмотренных статьей 40 настоящего Кодекса, и (или) изменение его внутренней планировки (в том числе без изменения границ и (или) площади помещения). В результате перепланировки помещения также могут быть изменены границы и (или) площадь смежных помещений. Перепланировка влечет за собой необходимость внесения изменений в сведения Единого государственного реестра недвижимости о границах и (или) площади помещения (помещений) или осуществления государственного кадастрового учета образованных помещений и государственной регистрации права на образованные помещения.

Основанием для внесения изменений в Росреестр, является технический план, изготовленный на основании акта приёмочной комиссии (МВК).

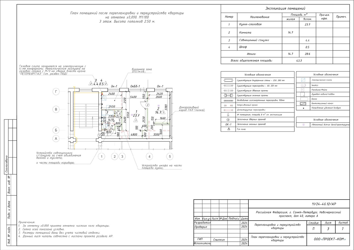
новая планировка квартиры после перепланировки и переустройства (графическая часть технического плана)
новая планировка квартиры после перепланировки и переустройства (графическая часть технического плана)

Справка формы 7 и 9 как внести изменения

Для внесения изменений в справки форм 7 и 9, в паспортный стол необходимо предоставить следующие документы:

  1. Акт приёмочной комиссии о приёмке в эксплуатацию выполненных работ по перепланировке квартиры (МВК);
  2. Акт отключения газоиспользующего оборудования ПетербургГаз (по требованию);
  3. Новая выписка ЕГРН с актуальными сведениями;
  4. Технический паспорт на квартиру с актуальными сведениями.

В отсутствии хотя бы одного из списка документа, Вам будет отказано в принятии заявления о внесении изменений.

Памятка ПетербургГаз

памятка населению по устранению выявленных нарушений
памятка населению по устранению выявленных нарушений

Чем грозит незаконная перепланировка

  • Отказ управляющей компании дома в выдаче технических условий увеличения электрической мощности квартиры из-за незаконной перепланировки;
  • Предписание районной межведомственной комиссии при Администрации города (МВК);
  • Отключение квартиры от системы газоснабжения;
  • Отключение радиаторов отопления (в случае экстренных мер: когда собственник перенёс радиаторы на балкон/лоджию);
  • Административная ответственность (штраф);
  • Неоплата штрафа в установленный срок – 2й штраф;
  • Судебный иск. Запрет на выезд за границу;
  • Неисполнение судебного решения – продажа квартиры с торгов.

Как ПетербургГаз выявляют нарушения

  1. Плановый осмотр газоиспользующего оборудования квартир (не реже 1 раз в год);
  2. В случае выявления нарушений при плановом осмотре: ПетербургГаз составляет и выдаёт собственнику на руки уведомление о выявленных нарушениях;
  3. Спустя отпущенное время на устранение выявленных нарушений — на квартиру выходит Жилищный надзор с проверкой;
  4. В случае не устранения выявленных нарушений — собственник на руки получает предписание на устранение выявленных нарушений, и в тот же день квартиру отключают от подачи газоснабжения;
  5. В случае не устранения выявленных нарушений по предписанию Жилищного надзора — собственник по месту регистрации получит судебный иск.

Как и когда проходит проверка газового оборудования в многоквартирных домах рассказывает начальник управления по эксплуатации газовых сетей и сооружений ГРО ПетербургГаз Кирилл Соловьёв.

Читайте также

Почему выбирают нас

Выбирая проектную организацию «ПРОЕКТ-КОМ»: от Вас понадобится только доверенность.

Работаем без авансов. Оплата по факту выполненных работ.

Рекомендация

К нам часто обращаются собственники квартир, которые уже заказали проект перепланировки и переустройства в сторонних проектных организациях.

Но без проекта организации демонтажа внутридомового газопровода.

Не все проектные организации компетентны в вопросе организации демонтажа внутридомового и внутриквартирного газопроводов.

Наша рекомендация для Вас: уточняйте в проектной организации возможность реализации всех планировочных решений, в т.ч. отключения газа, чтобы не нести дополнительных расходов.