Найти в Дзене
ПСК "Градиент"

Компактный, но вместительный: проект дома из газобетона 77 м²

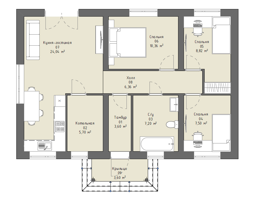
Строительство загородного дома это не только мечта, но и важный шаг к созданию комфортного пространства для вашей семьи. Если вы цените практичность и готовы рассмотреть нестандартные решения, давайте разберем, проект небольшого одноэтажного дома из газобетона. Одноэтажная планировка имеет множество преимуществ. Во-первых, это упрощает доступ ко всем помещениям, что особенно важно для семей с детьми или пожилыми людьми. Во-вторых, одноэтажный дом легче адаптировать под изменяющиеся потребности семьи: вы всегда можете переоборудовать пространство, не задумываясь о лестницах и дополнительных этажах. Высота потолков в 2,75 метра создает ощущение простора и свободы. Это не только эстетично, но и практично: хорошая вентиляция и возможность установки разнообразных осветительных приборов. Вы сможете легко организовать пространство так, чтобы оно выглядело светлым и уютным. Давайте посмотрим, как организовано пространство: Общая площадь дома 77,18 м². Не слишком большой, но достаточно простор
Оглавление

Строительство загородного дома это не только мечта, но и важный шаг к созданию комфортного пространства для вашей семьи. Если вы цените практичность и готовы рассмотреть нестандартные решения, давайте разберем, проект небольшого одноэтажного дома из газобетона.

Архитектурные решения

Одноэтажная планировка имеет множество преимуществ. Во-первых, это упрощает доступ ко всем помещениям, что особенно важно для семей с детьми или пожилыми людьми. Во-вторых, одноэтажный дом легче адаптировать под изменяющиеся потребности семьи: вы всегда можете переоборудовать пространство, не задумываясь о лестницах и дополнительных этажах.

Высота потолков в 2,75 метра создает ощущение простора и свободы. Это не только эстетично, но и практично: хорошая вентиляция и возможность установки разнообразных осветительных приборов. Вы сможете легко организовать пространство так, чтобы оно выглядело светлым и уютным.

-2

Планировка, созданная с умом

Давайте посмотрим, как организовано пространство:

  • Тамбур и крыльцо защита от холода и место для верхней одежды
  • Котельная 5,7 м², достаточно для размещения всего необходимого оборудования
  • Санузел 7,2 м², комфортный размер для ежедневного использования
  • Три спальни от 7,5 до 10,36 м², каждому члену семьи свое пространство
  • Кухня-гостиная 24,04 м², сердце дома для семейных посиделок
  • Холл 6,36 м², уютный коридор для встречи гостей

Общая площадь дома 77,18 м². Не слишком большой, но достаточно просторный для комфортной жизни.

Почему такая планировка работает

Практичность - главный критерий при разработке проекта. Все помещения расположены так, чтобы:

  • Минимизировать лишние перемещения
  • Обеспечить удобный доступ ко всем зонам
  • Создать комфортные условия для жизни
-3

Конструктивные решения

Фундамент - монолитная плита

Монолитная плита - надежное решение для вашего дома. Она обеспечивает равномерное распределение нагрузки и защищает от деформаций. Такой фундамент подходит для различных типов грунтов и позволяет избежать проблем с усадкой.

Стены из газобетона

Использование газобетона для наружных и внутренних стен - это выбор в пользу долговечности и теплоизоляции. Толщина наружных стен в 400 мм обеспечит отличную защиту от холода, а внутренние стены толщиной 300 мм создадут комфортный микроклимат. Перегородки в 100 мм позволят вам легко зонировать пространство, не теряя при этом в звукоизоляции.

-4

Если вам интересны другие аспекты строительства загородного дома или вы хотите узнать о современных технологиях, не забудьте ознакомиться с другими материалами на нашем канале ПСК Градиент. Мы всегда рады помочь вам сделать правильный выбор.

Выбор дома для вас важен не только снаружи? но и в деталях - загляните на сайт ПСК Градиент. Там вы найдете подробные планы и сможете получить бесплатную консультацию по любым вопросам.