Найти в Дзене
DIVAN.RU

Уютная трехкомнатная квартира 76 кв.м для большой семьи

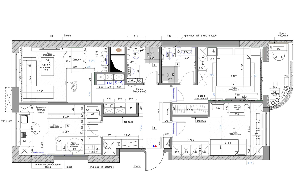
В этой квартире живет молодая семейная пара с маленькой дочкой и сыном-школьником. Супруги легкие, веселые, общительные, обожают читать и ценят каждую свободную минуту, которую можно посвятить этому хобби. Первым запросом при обсуждении переделки была изолированная спальня для родителей, где можно было бы спокойно отдохнуть за интересной книгой. А вторым — отдельные комнаты для каждого из детей. Посмотрим, что получилось. Квартира сдавалась со свободной планировкой и выделенными мокрыми зонами. Кухню сделали проходной и совместили с гостиной. Супруги не готовят сложных блюд и не имеют обширного запаса посуды, поэтому гарнитур просили сделать небольшим, а максимум площади отдать зоне отдыха. Также в квартире имеется мастер-спальня, две детские комнаты, два отдельных санузла и прихожая. Отдельно стоит отметить, что квартира подключена к системе «умный дом». Основные коммуникации, вроде освещения, бризеров, кондиционеров и теплого пола управляются через приложение на смартфоне или голосов
Оглавление

В этой квартире живет молодая семейная пара с маленькой дочкой и сыном-школьником. Супруги легкие, веселые, общительные, обожают читать и ценят каждую свободную минуту, которую можно посвятить этому хобби. Первым запросом при обсуждении переделки была изолированная спальня для родителей, где можно было бы спокойно отдохнуть за интересной книгой. А вторым — отдельные комнаты для каждого из детей. Посмотрим, что получилось.

  • Объект: трехкомнатная квартира 76 кв.м в г. Москва (потолки 2,96 м)
  • Дизайнеры: Надежда Шишкова и Лидия Судиловская, фотограф Егор Кодяков

Планировочное решение

Квартира сдавалась со свободной планировкой и выделенными мокрыми зонами. Кухню сделали проходной и совместили с гостиной. Супруги не готовят сложных блюд и не имеют обширного запаса посуды, поэтому гарнитур просили сделать небольшим, а максимум площади отдать зоне отдыха.

Также в квартире имеется мастер-спальня, две детские комнаты, два отдельных санузла и прихожая. Отдельно стоит отметить, что квартира подключена к системе «умный дом». Основные коммуникации, вроде освещения, бризеров, кондиционеров и теплого пола управляются через приложение на смартфоне или голосовым помощником.

Планировочное решение
Планировочное решение

Кухня-гостиная

Гарнитур спроектировали проходной, с параллельной планировкой. С одной стороны располагается встроенный холодильник, варочная панель и духовка. С другой — мойка и посудомойка. По обеим сторонам есть рабочие поверхности и шкафы для хранения утвари.

От традиционной обеденной группы решено было отказаться. Вместо классического обеденного стола заказчики выбрали остров. В конструкции предусмотрено несколько мест для хранения, а также бутылочница. Рядом с диваном установили стол-трансформер, который можно будет использовать во время масштабных посиделок.

Визуальное зонирование осуществили при помощи белых рельефных панелей в обеденной зоне и гипсокартонных панелей, оклеенных обоями с принтом, в ТВ-зоне. Во всех комнатах прослеживается выраженная геометрия: круги, квадраты, полосы — они задают динамику.

На входе в комнату смонтировали встроенный шкаф. Центральную часть оставили открытой и покрасили в зеленый оттенок (сочетается с бутылочницей в кухонном острове). За верхними фасадами шкафа установили кондиционер.

-5

Обратите внимание: все функциональные зоны по смыслу связывает «красная нить»: полка с цветной кромкой начинается под телевизором, поднимается над островом и плавно переходит на книжный шкаф. Далее — на фасады в кухне и на фартук.

В зоне отдыха стоит угловой диван Онте от divan.ru. Модель с глубоким сиденьем, мягкими подушками и широкими подлокотниками — место ежедневного сбора всей семьи. Обивку подобрали в «Конструкторе»: на divan.ru более 100 вариантов тканей на любой вкус.

Товары бренда divan.ru

Мастер-спальня

Центром просторной спальни стала объемная мягкая кровать Весмар от divan.ru в коралловом оттенке. По обеим сторонам от нее установили серые прикроватные тумбы Квелен, а над изголовьем повесили стильную люстру с коралловыми плафонами.

Товары бренда divan.ru

Идеальным дополнением для интерьера спальни стали подвесы-книги. Они как будто созданы для заказчиков, которые очень любят читать. Телевизор напротив кровати решено было вписать в розовый круг и добавить несколько полочек для книг. Так добились оригинальной композиции и ушли от эффекта «черного прямоугольника».

-9

В спальне обустроили сразу два гардероба, которые, впрочем, неочевидны на первый взгляд. Первый — шкаф «под потолок» с голубыми фасадами, второй – с зеркальными дверцами, находится напротив.

Мастер-санузел

Санузел оформили мелкой плиткой на стенах и крупным керамогранитом на полу. Потолок выкрасили влагостойкой краской, а вместо полотенцесушителя спроектировали целую теплую стену. Плитку не стали укладывать до потолка, а оставили полосу под покраску. Бордюр между плиткой и краской сделали контрастным специально, чтобы расставить акценты.

Детская для девочки

Заказчики сразу обозначили свои пожелания: комнаты для детей должны быть раздельными. Спальню для девочки оформили в стиле принцессы. Пока принцесса маленькая, обошлись простой кроватью в целях безопасности, но место под балдахин предусмотрели — на будущее.

Отделка и декор же полностью соответствуют желаемой концепции: обои со звездочками, светильник с облачком, зеркало в виде радуги, бра в виде звезд и звездные ручки у мебели.

Центральным элементом комнаты стал спортивный снаряд, так как юная принцесса крайне подвижная.

Детская для мальчика

Комнату для мальчика оформили в космической тематике. В качестве основной палитры выбрали сочетание различных оттенков синего. Светлая и темная стороны играют на контрасте: темная пришлась на сторону с кроватью. Часть стены покрасили краской, а оставшуюся часть оформили при помощи мягких панелей.

«Сын у заказчиков любит активные игры. Для него мы разработали специальный маршрут: он поднимается по брусьям до рукохода на потолке, на руках преодолевает расстояние от одной стены до противоположной, где стоит шкаф и кровать, залезает в одно отверстие кровати, из другого вылезает и спускается по лесенке вниз. Так можно туда-сюда скакать, пока не устанешь».

Прихожая

Дизайн прихожей минималистичный и сдержанный. Центральным элементом здесь стало зеркальное панно, которое визуально делает пространство шире, а входную зону — светлее. Напротив этой конструкции установили вместительную систему хранения во всю стену.

Санузел

В основном санузле потолок выкрасили в цвет стен. Зону с душем оформили при помощи керамогранита, имитирующего дерево.

🎉 Нам 10 лет! Дарим еще больше выгоды. Успейте купить до 30.09 мебель, декор, текстиль и интерьерные аксессуары с праздничными скидками до 70% на divan.ru

-18

==========

Оцените интерьер в комментариях, а если материал понравился — не забудьте поставить лайк👍

🖤divan.ru — не только блог про интерьеры, но и производитель доступной дизайнерской мебели. Ищите новые идеи и переходите на сайт, чтобы воплотить их в жизнь.