Найти в Дзене
KPD Дизайн Интерьера

🎁 Бонус: полный обмерный план – бесплатно

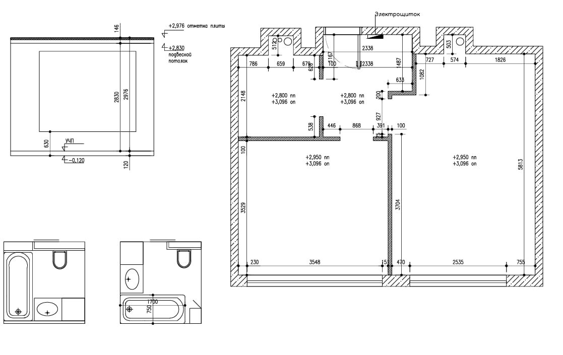
🎁 Бонус: полный обмерный план – бесплатно! Отличная новость для всех, кто собирается делать ремонт: до конца месяца при заказе смарт планировки + смарт электрики вы получаете бесплатно комплект обмерных чертежей. Обычно такая документация – платная опция, а сейчас мы включим её в услугу подарком. Что это за чертежи? Это подробный план вашего жилья с точными размерами, высотами, площадями – фактически “паспорт” квартиры, который пригодится и для дизайн-проекта, и для строителей. Вы заказываете сканирование – мы приезжаем, сканируем и выдаём вам и 3D-модель, и классические чертежи (планы, разрезы) без доплаты 📑. Предложение действует до последнего дня этого месяца включительно. Поверьте, точный обмер – лучшая инвестиция в гладкий ремонт, а сейчас ещё и по приятной акции. Кто успеет – тот молодец! 👉 Чтобы воспользоваться бонусом, оставьте заявку с пометкой “3D+чертёж” любым удобным способом (комментарий, личка, сайт). Я свяжусь и договоримся о выезде. Торопитесь: времени мало, а точ

🎁 Бонус: полный обмерный план – бесплатно!

Отличная новость для всех, кто собирается делать ремонт: до конца месяца при заказе смарт планировки + смарт электрики вы получаете бесплатно комплект обмерных чертежей. Обычно такая документация – платная опция, а сейчас мы включим её в услугу подарком. Что это за чертежи? Это подробный план вашего жилья с точными размерами, высотами, площадями – фактически “паспорт” квартиры, который пригодится и для дизайн-проекта, и для строителей. Вы заказываете сканирование – мы приезжаем, сканируем и выдаём вам и 3D-модель, и классические чертежи (планы, разрезы) без доплаты

📑. Предложение действует до последнего дня этого месяца включительно. Поверьте, точный обмер – лучшая инвестиция в гладкий ремонт, а сейчас ещё и по приятной акции. Кто успеет – тот молодец!

👉 Чтобы воспользоваться бонусом, оставьте заявку с пометкой “3D+чертёж” любым удобным способом (комментарий, личка, сайт). Я свяжусь и договоримся о выезде. Торопитесь: времени мало, а точность дорогого стоит 😉.

*Акция для квартир действует по г. Москве. В квартире не должно быть мебели.

#акция #3Dобмер

Трости и гвозди