Найти в Дзене

Построил баню за 2 недели: секреты быстрого строительства без потери качества

Думаете, баня строится полгода? Рассказываю, как за 14 дней возвести полноценную баню 4х6 метров и начать париться Когда я объявил друзьям, что построю баню за две недели, они крутили пальцем у виска. "Минимум два месяца", "нужно время на усадку", "торопиться нельзя" — говорили они. Но я доказал обратное! За 14 дней построил полноценную баню с парилкой, моечной и комнатой отдыха. Уже три года парюсь в ней каждые выходные. Делюсь секретами скоростного строительства. Подготовка заняла месяц, строительство — 2 недели Главный секрет скорости — это подготовка. Пока материалы везли и документы оформлял, составил детальный план работ по дням и закупил весь инструмент. Что подготовил заранее: План работ по дням: Экономия времени: 5 дней
Доплата за готовый сруб: 50 000 рублей Самый большой секрет скорости — заказал готовый сруб из оцилиндрованного бревна с завода. Да, дороже на 50 тысяч, но экономия времени колоссальная. Что получил с завода: Характеристики сруба: Время сборки: за 3 дня собрал
Оглавление

Думаете, баня строится полгода? Рассказываю, как за 14 дней возвести полноценную баню 4х6 метров и начать париться

Когда я объявил друзьям, что построю баню за две недели, они крутили пальцем у виска. "Минимум два месяца", "нужно время на усадку", "торопиться нельзя" — говорили они. Но я доказал обратное! За 14 дней построил полноценную баню с парилкой, моечной и комнатой отдыха. Уже три года парюсь в ней каждые выходные. Делюсь секретами скоростного строительства.

Секрет №1: Правильная подготовка — 80% успеха

Подготовка заняла месяц, строительство — 2 недели

Главный секрет скорости — это подготовка. Пока материалы везли и документы оформлял, составил детальный план работ по дням и закупил весь инструмент.

Что подготовил заранее:

  • Детальный проект с размерами каждого элемента
  • Полную спецификацию материалов
  • Договоренность с 3 помощниками
  • Аренду мини-экскаватора на 2 дня
  • Заказ готового сруба с завода

План работ по дням:

  • День 1-2: Фундамент
  • День 3-5: Сборка сруба
  • День 6-8: Крыша и кровля
  • День 9-11: Внутренняя отделка
  • День 12-14: Печь, полки, финишные работы

Секрет №2: Готовый сруб вместо самостоятельной рубки

Экономия времени: 5 дней

Доплата за готовый сруб: 50 000 рублей

Самый большой секрет скорости — заказал готовый сруб из оцилиндрованного бревна с завода. Да, дороже на 50 тысяч, но экономия времени колоссальная.

Что получил с завода:

  • Готовые венцы с пронумерованными бревнами
  • Все врубки и пазы уже сделаны
  • Окосячка для окон и дверей
  • Стропильная система в комплекте
  • Подробная инструкция по сборке

Характеристики сруба:

  • Размер: 4х6 метров
  • Высота: 2,2 метра
  • Диаметр бревна: 200 мм
  • Материал: сосна, естественная влажность
  • Технология: оцилиндрованное бревно

Время сборки: за 3 дня собрали то, на что самостоятельно ушло бы 2 недели.

-2

Секрет №3: Свайно-винтовой фундамент за 1 день

Стоимость: 45 000 рублей

Время: 6 часов

Винтовые сваи — это революция в скоростном строительстве. Никакого бетона, никакого ожидания схватывания.

Почему выбрал именно сваи:

  • Установка за один день
  • Можно строить сразу после монтажа
  • Подходят для любых грунтов
  • Не боятся пучения
  • Служат 50+ лет

Что использовал:

  • Сваи диаметром 108 мм, длина 2,5 м — 16 шт. — 32 000 рублей
  • Оголовки для бруса — 16 шт. — 8 000 рублей
  • Работа бригады с мотобуром — 5 000 рублей

Технология монтажа:

  1. Разметка по проекту — 1 час
  2. Закручивание свай мотобуром — 3 часа
  3. Подрезка в уровень — 1 час
  4. Установка оголовков — 1 час

Результат: к вечеру фундамент готов, утром можно ставить сруб.

-3

Секрет №4: Сборка сруба по инструкции

Время: 3 дня

Количество рабочих: 4 человека

Готовый сруб собирается как конструктор. Каждое бревно пронумеровано, все врубки готовы.

День 1 — Нижние венцы:

  • Укладка окладного венца на фундамент
  • Гидроизоляция из рубероида
  • Сборка первых 4 венцов
  • Укладка межвенцового утеплителя

День 2 — Подъем стен:

  • Сборка венцов до оконных проемов
  • Установка временных стяжек
  • Врезка окосячки под окна и двери
  • Подготовка места под печь

День 3 — Верхние венцы:

  • Завершение стен
  • Укладка мауэрлата
  • Проверка геометрии
  • Подготовка к установке стропил

Хитрости сборки:

  • Джутовый утеплитель степлером — быстро и качественно
  • Временные стяжки из шпильки — держат геометрию
  • Каждый венец проверяем уровнем
  • Нагели забиваем через венец

-4

Секрет №5: Простая односкатная крыша

Время: 2 дня

Стоимость: 65 000 рублей

Сложная крыша — враг скорости. Односкатная крыша с углом 25° — это скорость плюс надежность.

Конструкция крыши:

  • Стропила из доски 50х200 мм с шагом 60 см
  • Обрешетка из доски 25х150 мм
  • Гидроизоляция Изоспан АМ
  • Профнастил С21 оцинкованный

День 1 — Стропильная система:

  • Установка стропил — 4 часа
  • Крепление коньковой доски — 1 час
  • Установка обрешетки — 3 часа

День 2 — Кровля:

  • Укладка гидроизоляции — 2 часа
  • Монтаж профнастила — 4 часа
  • Установка водостоков — 2 часа

Почему односкатная:

  • Простой расчет и монтаж
  • Минимум отходов материала
  • Быстрый сход снега
  • Дешевле двускатной на 30%

-5

Секрет №6: Внутренняя отделка за 3 дня

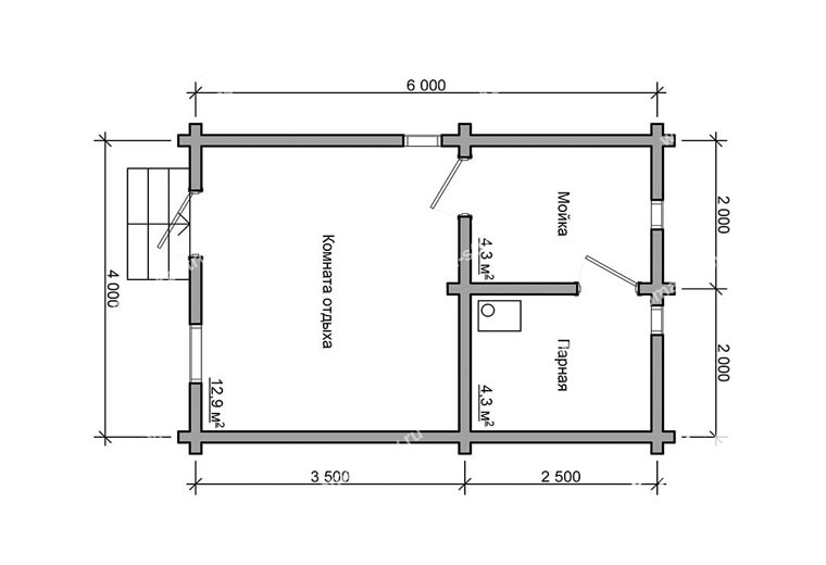
Планировка: парилка 2х2м, моечная 2х2м, комната отдыха 2х4м

Внутреннюю отделку делал сам с одним помощником. Никаких сложных технологий — только проверенные решения.

День 1 — Утепление парилки:

  • Пароизоляция фольгой — вся парилка
  • Обрешетка под вагонку 20х40 мм
  • Утеплитель базальтовый 50 мм
  • Воздушный зазор 20 мм обязательно

День 2 — Обшивка вагонкой:

  • Парилка — липовая вагонка класс А
  • Моечная — лиственница (не боится влаги)
  • Комната отдыха — сосновая вагонка
  • Потолок везде — сосна

День 3 — Полы:

  • Лаги из бруса 50х100 мм
  • Утеплитель между лагами 100 мм
  • Доска пола 40 мм с уклоном в моечной
  • Плитка в моечной на влагостойкую фанеру

Секреты скорости:

  • Вагонку крепил пневмостеплером — в 3 раза быстрее гвоздей
  • Угольник-шаблон для одинаковых отрезов
  • Предварительная раскладка всех досок

-6

Секрет №7: Печь и полки — последний рывок

Время: 2 дня

Печь: металлическая "Термофор Гейзер"

Печь и полки — это финал стройки. Выбрал готовую металлическую печь вместо кирпичной кладки.

День 1 — Установка печи:

  • Фундамент под печь из огнеупорного кирпича
  • Проход дымохода через потолок и крышу
  • Установка печи и подключение дымохода
  • Защитные экраны из нержавейки

День 2 — Полки и финиш:

  • Каркас полков из липового бруса
  • Настил из липовой доски 25 мм
  • Установка светильников
  • Навешивание двери в парилку

Характеристики печи:

  • Мощность: 8-18 кВт
  • Объем парилки: до 18 м³
  • Топка: нержавеющая сталь 8 мм
  • Каменка: 40 кг камней
  • Время прогрева: 40-60 минут

-7

Что получилось в итоге

Характеристики готовой бани:

  • Общая площадь: 24 м²
  • Парилка: 4 м² на 4 человека
  • Моечная: 4 м² с теплыми полами
  • Комната отдыха: 16 м² со столом и лавками
  • Время прогрева: 1 час
  • Время строительства: 14 дней

Что работает отлично:

  • Держит температуру 80-90°C стабильно
  • Легкий пар от печи-каменки
  • Никаких сквозняков
  • Быстро прогревается и долго держит тепло
  • Комфортная влажность без конденсата

10 главных ошибок, которых избежал

Антисоветы из опыта:

  1. Не спешите с фундаментом — сваи можно ставить в любую погоду
  2. Не экономьте на проекте — готовый сруб окупает переплату
  3. Не стройте в одиночку — помощники ускоряют в разы
  4. Не используйте сырое дерево — камерная сушка или зимний лес
  5. Не забывайте про пароизоляцию — без нее парилка не работает
  6. Не ставьте кирпичную печь — металлическая греет быстрее
  7. Не делайте сложную крыши — простая надежнее и быстрее
  8. Не экономьте на утеплителе — базальт лучше минваты для бани
  9. Не торопитесь с отделкой — дайте срубу неделю на осадку
  10. Не забудьте про вентиляцию — приток снизу, вытяжка сверху

Первая топка: момент истины

День 15 — первое испытание

Самый волнительный момент — первая топка. Заложил дрова, растопил, стал ждать. Через час температура в парилке поднялась до 85°C.

Что проверял:

  • Герметичность парилки — отлично
  • Равномерность прогрева — идеально
  • Тягу дымохода — работает как часы
  • Качество пара — легкий, не обжигающий
  • Время остывания — 4 часа до комнатной температуры

Первые впечатления: пар мягкий, дышится легко, веник раскрывается за минуту. Все получилось!

-8

Сезонная эксплуатация: 3 года опыта

Зима: Прогрев до 80°C за 1,5 часа при -20°C на улице

Лето: За 40 минут готова к использованию

Расход дров: 15-20 кг березы на одну топку

Что доделал позже:

  • Террасу 2х6 метров — для летнего отдыха
  • Купель из лиственницы — для контрастных процедур
  • Освещение по периметру — для вечерних посиделок
  • Мангальную зону — для полного комплекта

Проблемы за 3 года:

  • Одна доска треснула от пересыхания — заменил
  • Потекла труба на крыше — перенастил резину
  • Заменил каменку — камни раскололись

Общая оценка: баня работает отлично, жалею только, что не построил раньше!

Планы на развитие

Что хочу добавить:

  • Предбанник с раздевалкой
  • Душевую кабину в моечной
  • Теплые полы во всех помещениях
  • Систему автоматического поддержания температуры

Совет друзьям: если есть участок и 600 тысяч рублей — стройте баню немедленно. Окупается здоровьем и удовольствием уже в первый год.

Планируете строить баню? Поделитесь в комментариях размерами участка и бюджетом — помогу выбрать оптимальный проект и технологию!