Добавить в корзинуПозвонить
Найти в Дзене

Современный проект дома «Лад» с террасой и гаражом | Строительство в Тюмени и Москве

Современный загородный дом — это не только квадратные метры, но и атмосфера, которая делает жизнь комфортной. Проект «Лад» — именно такой вариант: уютный, просторный и практичный. Жилая площадь дома составляет 205 м², к ней добавляются терраса 28,5 м² и крыльцо 4,3 м². Это пространство, где удобно жить, отдыхать и принимать гостей. Основные преимущества проекта: Особое место в проекте занимает терраса. Утренний кофе на свежем воздухе, семейные ужины на закате, барбекю с друзьями — здесь легко создать особые традиции, которые делают жизнь ярче. Мы понимаем, что каждый дом — отражение характера и стиля его хозяев. Поэтому проект «Лад» может быть адаптирован под ваши пожелания: изменена планировка, добавлены функциональные решения, выбраны фасадные материалы. В итоге вы получите не просто дом, а идеальное пространство именно для вашей семьи. Каталог проектов в Тюмени Каталог проектов в Москве Также подписывайтесь на соцсети, чтобы быть в курсе наших акций и новостей! Наш канал в Telegram
Оглавление

Современный загородный дом — это не только квадратные метры, но и атмосфера, которая делает жизнь комфортной. Проект «Лад» — именно такой вариант: уютный, просторный и практичный.

Простор и уют в каждой комнате

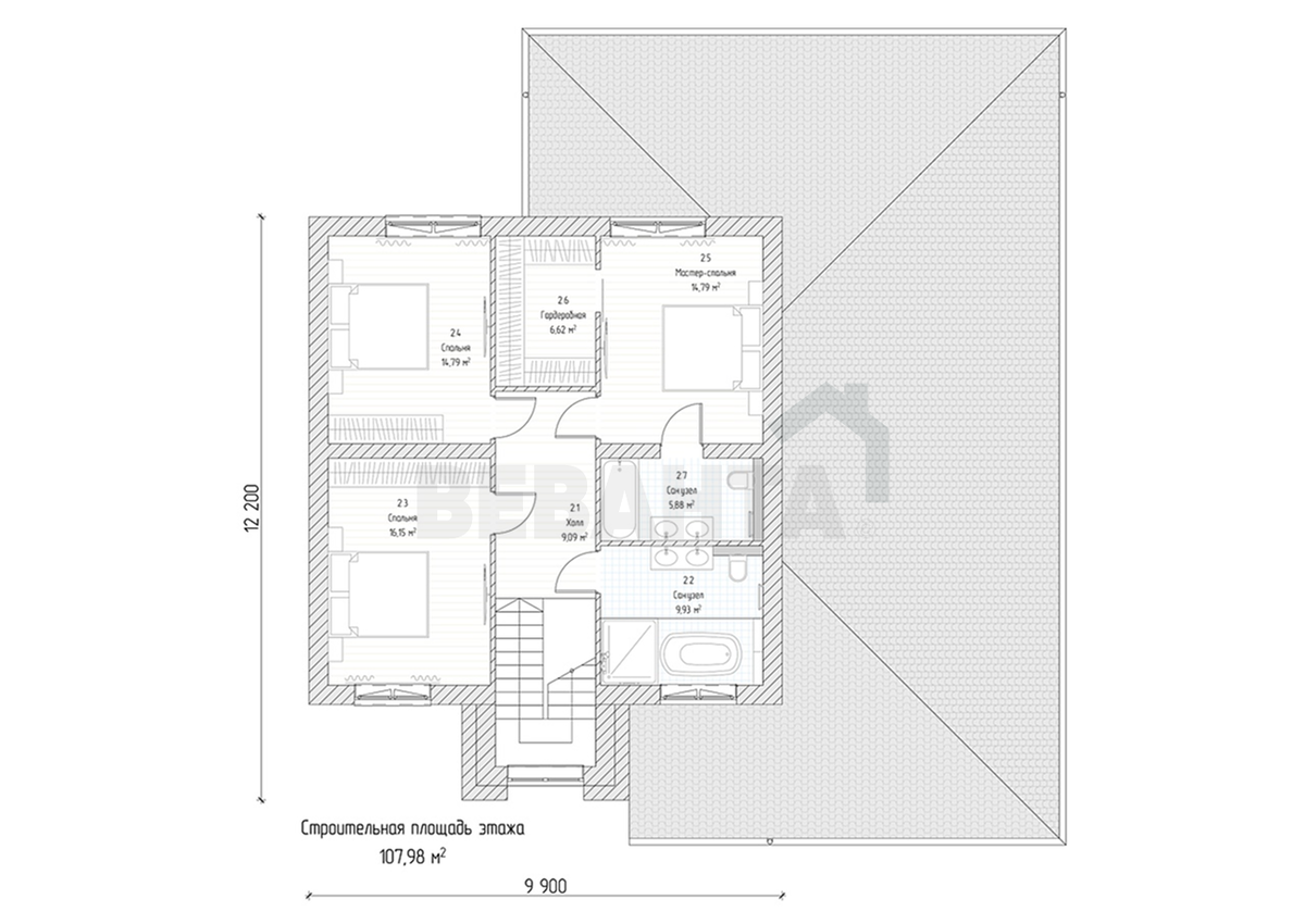
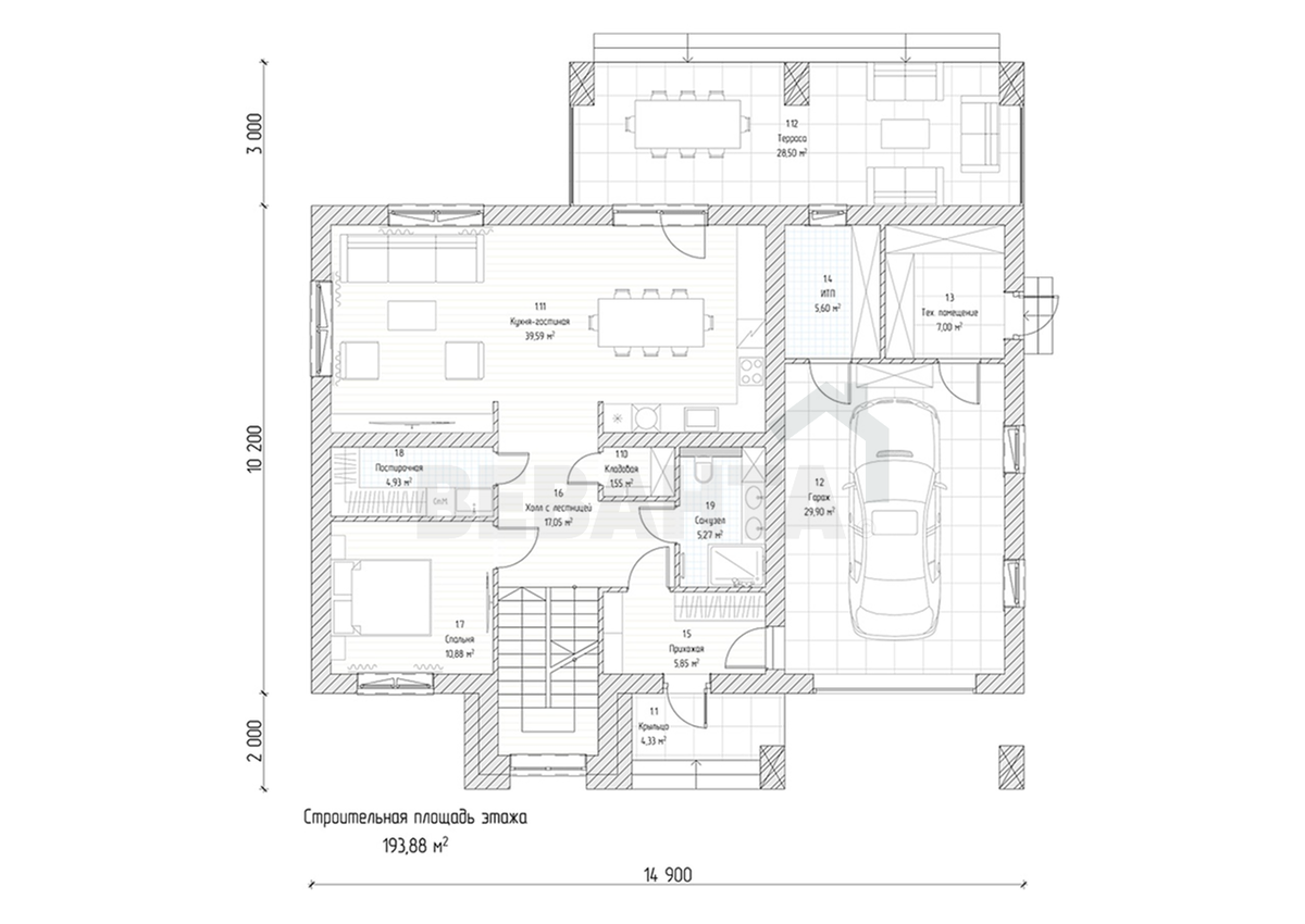
Жилая площадь дома составляет 205 м², к ней добавляются терраса 28,5 м² и крыльцо 4,3 м². Это пространство, где удобно жить, отдыхать и принимать гостей.

Основные преимущества проекта:

  • 3 спальни — одна на первом этаже и две на втором;
  • родительская мастер-спальня с гардеробной и собственной ванной комнатой;
  • два санузла — комфортное утро без очередей;
  • просторная кухня-гостиная с выходом на террасу, где собирается вся семья;
  • встроенный гараж — защита автомобиля и удобство в любую погоду.

Терраса — сердце летнего отдыха

Особое место в проекте занимает терраса. Утренний кофе на свежем воздухе, семейные ужины на закате, барбекю с друзьями — здесь легко создать особые традиции, которые делают жизнь ярче.

Индивидуальный подход

Мы понимаем, что каждый дом — отражение характера и стиля его хозяев. Поэтому проект «Лад» может быть адаптирован под ваши пожелания: изменена планировка, добавлены функциональные решения, выбраны фасадные материалы. В итоге вы получите не просто дом, а идеальное пространство именно для вашей семьи.

Каталог проектов в Тюмени
Каталог проектов в Москве

Также подписывайтесь на соцсети, чтобы быть в курсе наших акций и новостей!

Наш канал в Telegram
Мы в «ВКонтакте»

#проектдома #загородныйдом #домдлясемьи #архитектура #строительство #домвмоскве #домвтюмени