Найти в Дзене
Vova-rafstroi

Создание кабеля в Revit

Как за 10 минут создать кабель в Revit и впечатлить коллег — пошаговое руководство для инженеров и проектировщиков, которое меняет правила игры! В мире инженерного проектирования каждое новое решение способно существенно повысить эффективность работы и впечатлить коллег своей инновационностью. В этой статье мы подробно разберём, как создавать кабели в Revit— инструменте, который уже зарекомендовал себя как незаменимый помощник для инженеров и проектировщиков. Вы узнаете не просто базовые приёмы, а получаете настоящее руководство, меняющее правила игры, позволяющее значительно повышать качество проектов. Читайте до конца— это знание выведет вашу работу на совершенно новый уровень! Программа Revit отлично подходит для работы с разделом ЭОМ. Она выполняет необходимые вычисления, автоматически создает принципиальную схему распределительного щита (ЩР), а также прокладывает кабельные трассы. Однако кабели в модели остаются невидимыми— они присутствуют, но не отображаются визуально. Тем не ме

Как за 10 минут создать кабель в Revit и впечатлить коллег — пошаговое руководство для инженеров и проектировщиков, которое меняет правила игры!

В мире инженерного проектирования каждое новое решение способно существенно повысить эффективность работы и впечатлить коллег своей инновационностью. В этой статье мы подробно разберём, как создавать кабели в Revit— инструменте, который уже зарекомендовал себя как незаменимый помощник для инженеров и проектировщиков. Вы узнаете не просто базовые приёмы, а получаете настоящее руководство, меняющее правила игры, позволяющее значительно повышать качество проектов. Читайте до конца— это знание выведет вашу работу на совершенно новый уровень!

Программа Revit отлично подходит для работы с разделом ЭОМ. Она выполняет необходимые вычисления, автоматически создает принципиальную схему распределительного щита (ЩР), а также прокладывает кабельные трассы. Однако кабели в модели остаются невидимыми— они присутствуют, но не отображаются визуально. Тем не менее, есть возможность построить кабель непосредственно по цепи, хотя при этом длина кабеля будет отличаться. Давайте разберём все эти моменты по порядку.

Позвольте немного посмеяться— и над собой тоже. Если вы читаете эту статью, значит, либо хотите научиться рисовать раздел ЭОМ, либо уже занимаетесь этим. Суть юмора в том, что в программе кабель или гофра называется совсем иначе, чем мы привыкли или хотели бы. И я сам, и возможно вы тоже, рисовали кабель как трубу. Да-да, именно трубой. Лично я не только так рисовал, но и продавал проекты с таким подходом. Главное для заказчика — чтобы кабель был отражён в проекте; каким инструментом он изображён — это уже не так важно. Кроме того трассировку заказывают еще и для точного определения длины трассы. Но тут есть нюанс: в семействе труб (и вообще при работе с трубами) линии рисуются прямыми отрезками с автоматическими поворотами — это отдельное семейство с собственной категорией элементов. С кабелем ситуация аналогична: однако программа позволяет считать длину кабеля включая все повороты более точно по сравнению с трубами. Подробнее об этом расскажу чуть позже…

пример прокладки кабеля в проекте
пример прокладки кабеля в проекте

КАК AutodeskRevit СЧИТАЕТ ДЛИНУ КАБЕЛЯ

Длина кабеля, которую вычисляет программа, непосредственно используется в принципиальной схеме щита распределения (ЩР). На этом этапе у вас уже должны быть размещены все электрические потребители— розетки, выключатели, светильники и прочие элементы. Кроме того, необходимо обязательно задать имя панели ЩР. Для этого выберите соответствующий щит → перейдите в свойства экземпляра→ укажите имя панели. Без этого шага программа не сможет распознать ваш щит.

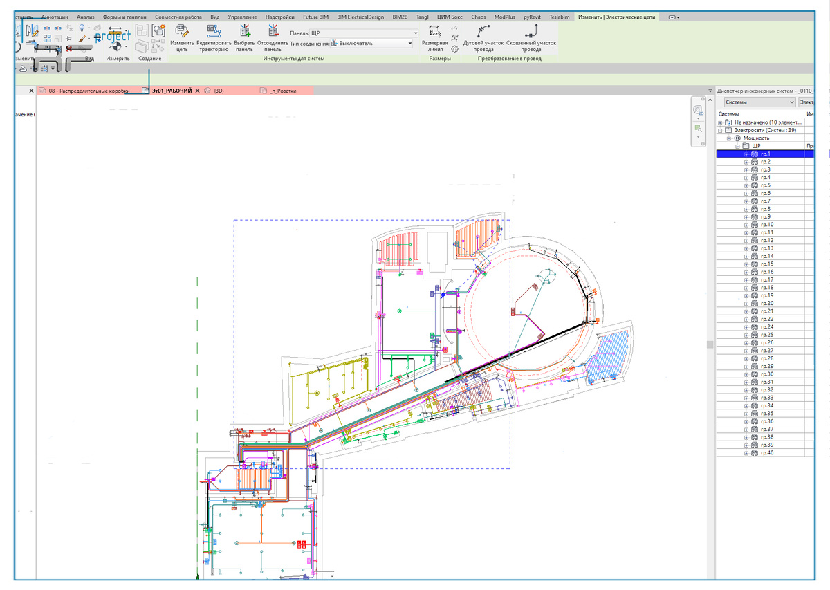
Отлично, если этот этап выполнен — переходим к определению цепей. К примеру, возьмём 6 розеток: рекомендовано не подключать более шести розеток к одному кабелю для обеспечения безопасности и надежности электросети. Таким образом формируется первая цепь. Далее откройте «ДИС» (Диспетчер инженерных систем). Если забыли как это сделать или делаете впервые: на вкладке «Вид» выберите «Интерфейс пользователя», затем поставьте галочку напротив «Диспетчер инженерных систем». После этого появится дополнительное окно — оно необходимо для визуализации и контроля ваших инженерных систем.

В среде ДИС выделите любую цепь — сразу появятся инструменты для работы с ней. Среди доступных функций: изменение цепи, редактирование траектории, выбор панели (что полезно, если у вас несколько панелей и нужно переподключить цепь к другой), отсоединение панели, выбор панели из списка и прочее.

Нас интересует именно функция «Редактировать траекторию» — по этой траектории программа рассчитывает длину кабеля в щитовой (ЩР). Нажимаем на эту опцию, после чего появляется возможность редактировать траекторию в любом виде отображения, включая 3D-просмотр.

-3

Рабочее пространство трансформируется, и мы оказываемся в редакторе цепей. Проект отображается в полутонах, а программа предлагает скорректировать маршрут кабеля. Синяя линия обозначает трассу кабеля— она символизирует путь, который визуально отсутствует. Длина этой трассы фиксируется в принципиальной схеме щита распределения (ЩР).

Существует три варианта прокладки кабеля:

  • Наиболее удаленное устройство
  • Все устройства
  • Пользоват.(Лень кому то было писать)

Слева от режима выбора траектории отображается общая длина кабельной линии. Как видно на плане, она даже выходит за пределы помещений, что служит сигналом о ненадёжности данной трассировки. Дополнительно можно настроить высоту прокладки кабеля над полом. При выделении любой линии появляются цифры — это значение высоты. Например, на моём объекте потолок находится на высоте 3200 мм, поэтому я указываю именно такие параметры и выбираю режим «Пользовательский». Этот режим активируется автоматически при первом изменении маршрута.

Если кратко: редактор позволяет гибко корректировать траекторию прокладки с учётом реальных условий объекта и контролировать параметры длины и высоты кабеля для последующего внесения в проектную документацию.

На финальном снимке я скорректировал траекторию: все линии, кроме самой нижней, выделены и установлена высота 3200 мм. Обратите внимание на длину кабеля — разница превышает 10 000 мм. Если в проекте оставить такие параметры, монтажники и заказчики вряд ли оценят нашу работу положительно.

Разумеется, данный кабель в проекте не отображается и никак не может быть визуализирован. Его предназначение исключительно связано с визуальным представлением и взаимодействием вне основной проектной модели. Безусловно, неприятно, что его невозможно увидеть в рамках проекта, что вызывает вопрос о целесообразности его присутствия.

Тем не менее, вы можете просмотреть и корректировать эту траекторию в 3D режиме. Для этого выполните следующие шаги:

  1. Кликните правой кнопкой мыши по группе в ДИС.
  2. Выберите опцию «Показать».

В появившемся окне нажимайте кнопку «Показать» для смены планов и видов — таким образом программа демонстрирует вашу цепь на различных уровнях отображения.

Дойдя до 3D вида, выберите «Закрыть», а затем активируйте режим «Редактировать траекторию». В этом режиме работать с траекторией гораздо удобнее и эффективнее.

ПРОДОЛЖЕНИЕ ЧИТАЙТЕ НА МОЕМ САЙТЕ.

МНОГО ИНТЕРЕСНЫХ ИНЖЕНЕРНЫХ СЕМЕЙСТ ДЛЯ REVIT