Найти в Дзене
Красота в деталях

С чего начать ремонт?

Когда мы думаем о ремонте, в голове сразу возникают красивые картинки: уютный свет, стильная мебель, гармоничные цвета. Но реальный ремонт начинается не с выбора дивана или плитки, а с куда более приземлённой вещи — с плана. Именно он определяет, где окажется каждая розетка, как будет падать свет и насколько удобно вам будет жить после всех работ. Без продуманного плана легко получить розетки за шкафом, светильники не там, где нужны, и кухню, которая упрямо не встаёт на место. Поэтому первый и главный этап любого ремонта — проектирование. . Не обязательно заказывать дизайнерский альбом с прекрасными визуализациями будущего интерьера и десятками чертежей (хотя это тоже отличный вариант). Достаточно хотя бы базовых схем, где будут отмечены: Чем чётче вы представляете себе картину, тем меньше хаоса будет в процессе. Чем чётче вы представляете себе картину, тем меньше хаоса будет в процессе. Ошибка многих — начинать с покупки материалов или техники. В итоге плитка лежит на балконе месяцам

Когда мы думаем о ремонте, в голове сразу возникают красивые картинки: уютный свет, стильная мебель, гармоничные цвета. Но реальный ремонт начинается не с выбора дивана или плитки, а с куда более приземлённой вещи — с плана. Именно он определяет, где окажется каждая розетка, как будет падать свет и насколько удобно вам будет жить после всех работ. Без продуманного плана легко получить розетки за шкафом, светильники не там, где нужны, и кухню, которая упрямо не встаёт на место.

Поэтому первый и главный этап любого ремонта — проектирование. . Не обязательно заказывать дизайнерский альбом с прекрасными визуализациями будущего интерьера и десятками чертежей (хотя это тоже отличный вариант). Достаточно хотя бы базовых схем, где будут отмечены:

  • расположение мебели и техники (обязательно продумать зоны хранения);
  • светильники (их количество и вид);
  • группы включения светильников (какой выключатель что включает)
  • розетки и эл.выводы (для бра, для подсветки штор, для подсветки рабочей поверхности кухни и т.д.);
  • теплый пол.

Чем чётче вы представляете себе картину, тем меньше хаоса будет в процессе.

Чем чётче вы представляете себе картину, тем меньше хаоса будет в процессе.

Ошибка многих — начинать с покупки материалов или техники. В итоге плитка лежит на балконе месяцами, потому что её ещё некуда класть, а новый холодильник оказывается слишком большим для выбранной ниши.

План помогает не только избежать сюрпризов, но и экономит бюджет. Вы сразу понимаете, сколько светильников нужно, какой метраж плитки закладывать и стоит ли вообще тратиться на дорогую краску, если эта стена будет полностью закрыта шкафом.

Я сама сейчас делаю ремонт, что же я буду делать? Я определилась с работами: делаю косметический ремонт, не основной с заменами инжирных сетей, нет, нет; у меня хорошие окна - их не меняю (только покрашу в графитовый и выделю цветом стену, получиться ниша в классическом стиле с окном- очень красиво); новое напольное покрытие (и здесь вопрос что выбрать - это зависит от основания, а для этого нужно вскрыть старый пол - пока подожду этого этапа, материал не закупаю); заменю двери ( уже обзвонила поставщиков, нашла нужные за хорошую цену); потолок натяжной с новыми группами освещения (хочется дополнить общий свет декоративным, которого сейчас не хватает – это подсветки, торшеры, бра).

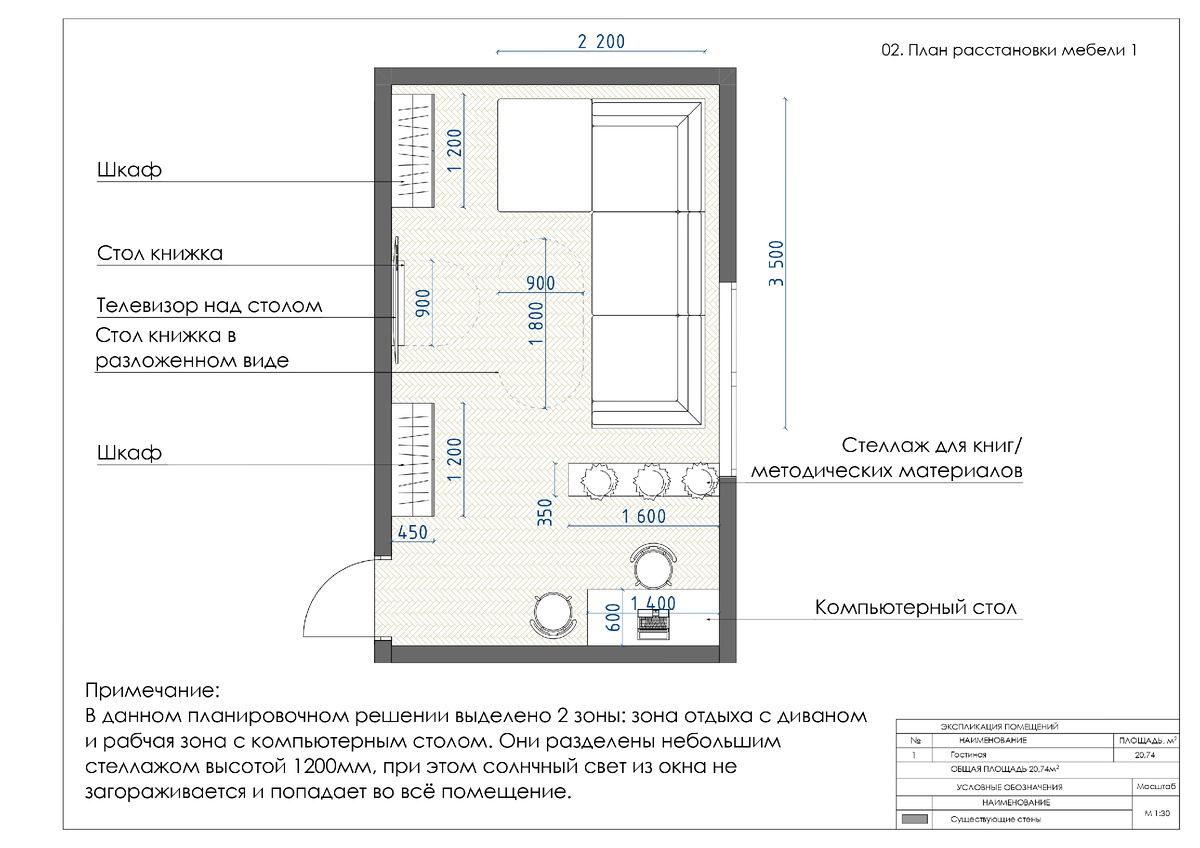
Итак с работами я определилась, теперь необходимо составить план мебели и продумать что где будет стоять. Зачем? Итак же понятно: диван у стены напротив ТВ, раковина в ванне рядом с ванной и т.д. Приблизительно все знают, что где будет стоять в квартире, но когда придет электрик он начнет спрашивать: где делать вывод и вы начнете вспоминать что где стоит, обязательно что-нибудь забудется или сделаете и затем окажется что это не удобно и надо переносить розетку на метр. Что необходимо чтобы этого избежать? Составить схемы электрики на бумаге, у вас будет время обдумать их, может что-то вспомниться, например розетка для робота пылесоса, или розетка для эл.бритвы мужа в ванной комнате.

Можно нарисовать на бумаге или в бесплатном приложении, которых сейчас много. Еще лучше перед приходом электрика разместить на стенах где будут расположены все выводы (карандашом или картонку приклеить в виде выключателя) и походить, как будто вы уже живете с такими выключателями и розетками, так будет понятно комфортно вам или нет. Либо за вас об этом всем может подумать дизайнер, который помнит, что в санузлах нужны выключатели для вентиляторов и много других нюансов. Эти схемы – основа, с которой можно запускать стройку. Для этого не требуется много времени, но вы уже точно будите знать, что делать и сколько выключателей розетка и коробок вам необходимо купить. Красоту вам всегда можно добавить позже – мебель, текстиль, декор.

Ремонт редко бывает лёгким и быстрым, но он становится намного спокойнее, если подходить к нему с планом и парой простых лайфхаков. Относитесь к процессу как к вложению в своё будущее удобство: сегодня вы тратите время на чертежи и расчёты, а завтра наслаждаетесь домом, где всё на своём месте. И тогда ремонт перестаёт быть хаосом — он превращается в шаг к жизни, о которой вы мечтали.

Если вы хотите сэкономить время и нервы, я помогаю с планированием и ведением ремонта. Ещё больше полезной информации — в моём телеграмм-канале: «Люблю ремонт».

#ремонт #планировка #электрика #розетки #выключатели #дизайнквартиры #планремонта #лайфхакиремонта #ремонтподключ #ремонтсоветы #интерьер #ремонтбезошибок #планированиеремонта #быстрыйстарт #люблюремонт