Добавить в корзинуПозвонить
Найти в Дзене

Эскизный проект «Дом из блока»: Гармония комфорта, экологии и современных технологий от компании Wood House

Строительство собственного дома — это всегда мечта о личном пространстве, уюте и гармонии. Воплотить эту мечту в жизнь помогает тщательно проработанный проект, где каждая деталь продумана до мелочей. Предлагаем вам познакомиться с проектом одноэтажного дома из газобетонных блоков — готовым решением, которое сочетает в себе надежность, энергоэффективность и продуманную планировку. Этот одноэтажный дом с общей площадью 143,15 м² спроектирован для комфортной жизни всей семьи. Его архитектура лаконична и практична, а внутреннее пространство организовано так, чтобы каждому помещению было отведено свое логичное место. Ключевые планировочные решения: Проект основан на современных строительных технологиях, обеспечивающих долгий срок службы и безопасность. Особое внимание в проекте уделено остеклению и будущим инженерным системам. Этот проект — не просто набор чертежей, а готовая инструкция по строительству дома вашей мечты. Он сочетает в себе проверенные временем технологии и современные матер
Оглавление

Строительство собственного дома — это всегда мечта о личном пространстве, уюте и гармонии. Воплотить эту мечту в жизнь помогает тщательно проработанный проект, где каждая деталь продумана до мелочей. Предлагаем вам познакомиться с проектом одноэтажного дома из газобетонных блоков — готовым решением, которое сочетает в себе надежность, энергоэффективность и продуманную планировку.

Концепция дома: Простор и функциональность

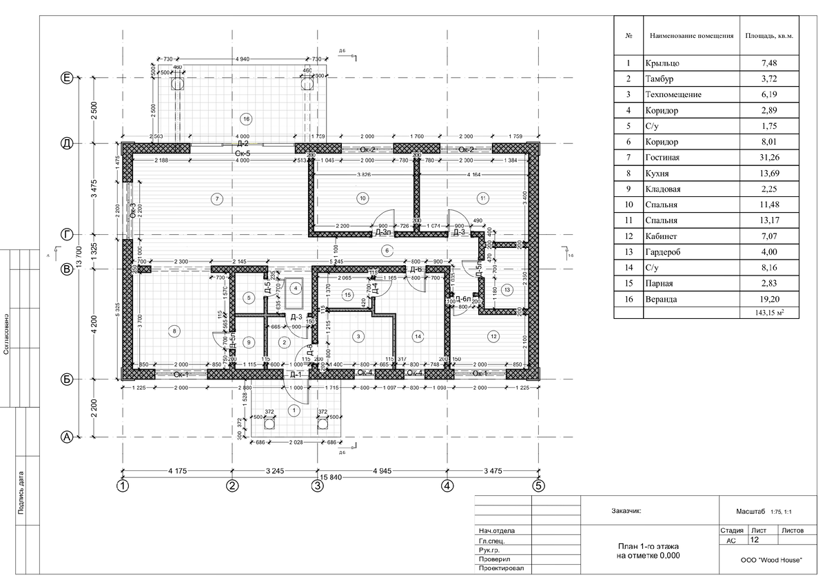
Этот одноэтажный дом с общей площадью 143,15 м² спроектирован для комфортной жизни всей семьи. Его архитектура лаконична и практична, а внутреннее пространство организовано так, чтобы каждому помещению было отведено свое логичное место.

Ключевые планировочные решения:

  • Просторная зона отдыха: Большая гостиная площадью 31,26 м², объединенная с кухней-столовой (13,69 м²), создает идеальное пространство для общения и приема гостей.
  • Уединенные спальни: Две изолированные спальни (11,48 м² и 13,17 м²) гарантируют приватный отдых.
  • Зона релаксации: В доме предусмотрена баня с парной и двумя душевыми/санузлами, что превращает обычный день в настоящий спа-ритуал.
  • Практичные элементы: В проект включены гардеробная, кабинет, кладовая и техническое помещение, что решает вопросы хранения и организации быта.
  • Единение с природой: Просторная терраса (19,20 м²) становится идеальным местом для утреннего кофе или вечерних посиделок на свежем воздухе.

Конструктивные особенности: Надежность и долговечность

Проект основан на современных строительных технологиях, обеспечивающих долгий срок службы и безопасность.

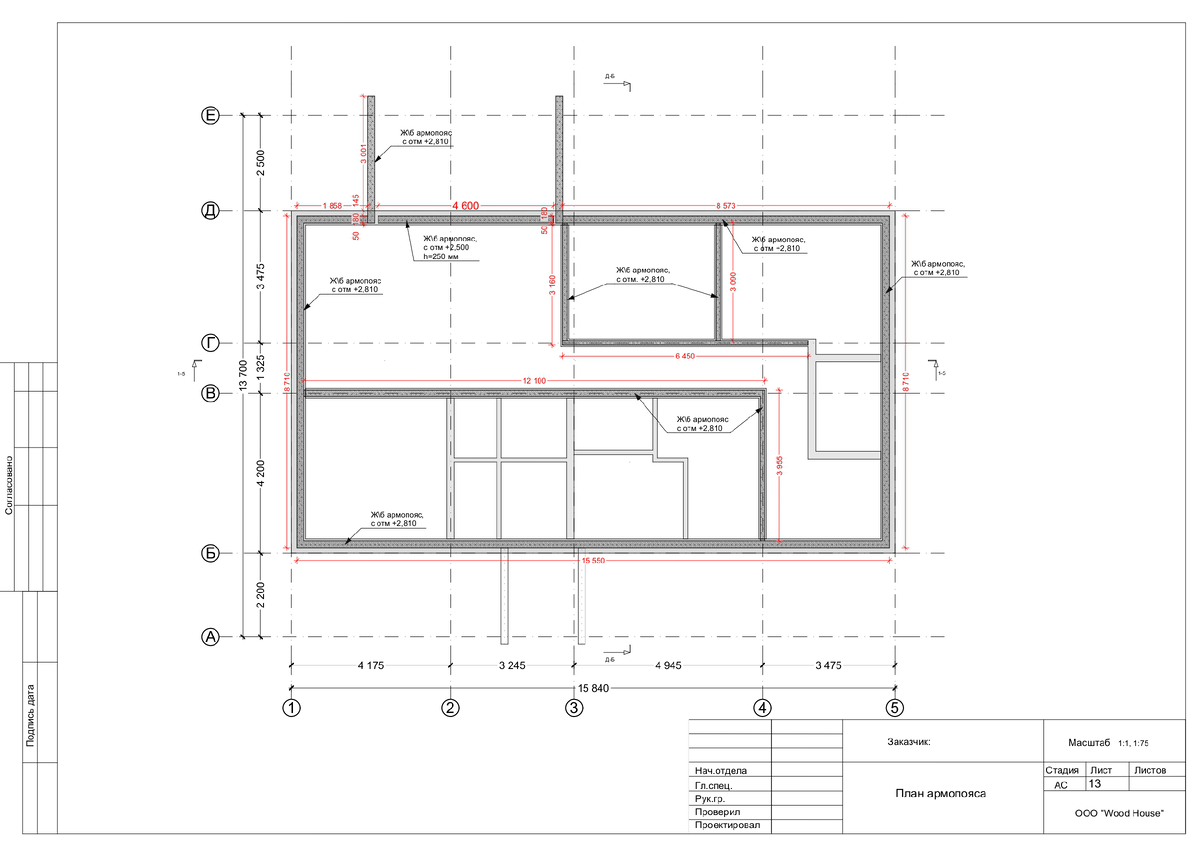
  1. Фундамент: Основанием дома служит монолитная армированная плита толщиной 300 мм. Это надежное решение, которое обеспечивает равномерное распределение нагрузки и устойчивость на разных типах грунта. Под плитой устроена песчаная подушка и слой щебня, а сама конструкция защищена гидроизоляцией.
  2. Стены и перегородки: Несущие стены и перегородки возводятся из газобетонных блоков D400 различной толщины (400, 250, 200 мм). Этот материал популярен благодаря своему легкому весу, высоким теплоизоляционным свойствам и простоте монтажа. Фасад утеплен 50-миллиметровым слоем утеплителя и будет отделан силиконовой штукатуркой, что придает дому эстетичный вид и защищает от внешних воздействий.
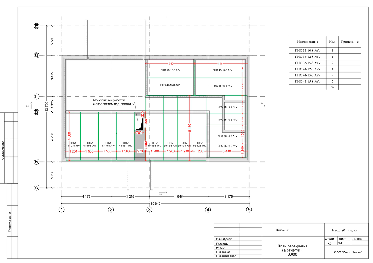
  3. Крыша и кровля: Стропильная система из бруса сечением 50x200 мм формирует прочный каркас крыши. В качестве финишного покрытия выбрана металлочерепица Grand Line Classic Satin RAL 7024 — долговечный, стильный и практичный материал. Конструкция кровли детально проработана, что видно по спецификации со списком всех стропильных элементов.

Инженерные системы и остекление: Комфорт и энергосбережение

Особое внимание в проекте уделено остеклению и будущим инженерным системам.

  • Окна и двери: В доме будут установлены современные энергосберегающие окна с двухкамерными стеклопакетами (с триплексом и закаленным стеклом) и фурнитурой Roto, что гарантирует высокий уровень тепло- и шумоизоляции. Входная дверь — металлическая, обеспечивающая безопасность.
  • Инженерные системы: Проектом предусмотрена необходимость последующей разработки разделов по водоснабжению, канализации, отоплению и электрике, что позволит идеально вписать все коммуникации в конструктив дома.

Технико-экономические показатели:

  • Общая площадь: 143,15 м²
  • Жилая площадь: 56,16 м²
  • Площадь застройки: 169,24 м²
  • Высота потолков: 2,85 м

Почему этот проект заслуживает внимания?

  • Энергоэффективность: Газобетонные стены, качественное утепление и энергосберегающие окна значительно снизят будущие расходы на отопление.
  • Продуманная планировка: Зонирование разделяет общие и приватные зоны, создавая комфортную среду для всех членов семьи.
  • Прочность и безопасность: Монолитный фундамент, армированные пояса и продуманная стропильная система делают дом надежным и долговечным.
  • Готовность к реализации: Проект, разработанный нашей компанией, содержит полный комплект чертежей и спецификаций, что позволяет сразу приступать к строительству.

Этот проект — не просто набор чертежей, а готовая инструкция по строительству дома вашей мечты. Он сочетает в себе проверенные временем технологии и современные материалы, создавая основу для уютного, безопасного и экономичного семейного очага.

Контакты для связи:

Статья подготовлена на основе данных нашего эскизного проекта.

#ДомМечты #ПроектДома #ДомИзГазобетона #СтроительствоДома #ОдноэтажныйДом #ПланировкаДома #ЭнергоэффективныйДом #Дзенстройка #ДомИзБлока #WoodHouse