Добавить в корзинуПозвонить
Найти в Дзене

Современный одноэтажный дом в стиле Хай-Тек: «Счастье» от NATURI. Просто дом или нечто большее?

Мечта о современном загородном доме всё чаще связана с хай-тек архитектурой — пространством, где находят отражение технологии, стиль и экологичность. В линейке NATURI есть проекты, которые воплощают эту философию жизни ярко и функционально. Рассмотрим два популярных варианта — «Счастье» и «Счастье-4»: насколько это действительно просто дом, а в чем — больше? В основе технологии NATURI — вертикальный брус, что обеспечивает естественную экологичность, тепло и монолитность стен без клея, утеплителя и химии. Благодаря уникальной конструкции дом не дает усадки, можно сразу приступать к отделке и жить «без ожидания» и хлопот с сервисом. Строительство идет быстро — объект площадью до 200 м² создаётся за несколько месяцев, а качество стен гарантирует комфортный климат зимой и прохладу летом. Этот одноэтажный дом создан для семьи из 2-3 человек, сочетая современные архитектурные решения с традиционным качеством. Планировка грамотно зонирует пространство: кухня, столовая и гостиная объединены в
Оглавление

Мечта о современном загородном доме всё чаще связана с хай-тек архитектурой — пространством, где находят отражение технологии, стиль и экологичность. В линейке NATURI есть проекты, которые воплощают эту философию жизни ярко и функционально. Рассмотрим два популярных варианта — «Счастье» и «Счастье-4»: насколько это действительно просто дом, а в чем — больше?

Архитектурная концепция и технология NATURI

В основе технологии NATURI — вертикальный брус, что обеспечивает естественную экологичность, тепло и монолитность стен без клея, утеплителя и химии. Благодаря уникальной конструкции дом не дает усадки, можно сразу приступать к отделке и жить «без ожидания» и хлопот с сервисом. Строительство идет быстро — объект площадью до 200 м² создаётся за несколько месяцев, а качество стен гарантирует комфортный климат зимой и прохладу летом.

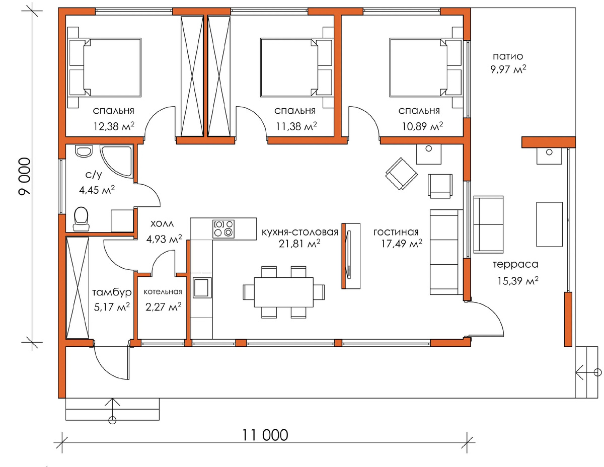
Проект «Счастье»: уют, стиль, максимальная компактность

Этот одноэтажный дом создан для семьи из 2-3 человек, сочетая современные архитектурные решения с традиционным качеством.

Планировка грамотно зонирует пространство: кухня, столовая и гостиная объединены в единое «сердце дома», возле камина и панорамных окон всегда светло и уютно. Терраса и открытый дворик с барбекю превращают дом в оазис для отдыха, а большое остекление фасада визуально расширяет объём и обеспечивает уникальное освещение.

Отдельный плюс NATURI — проектные и строительные работы включают фундамент, стены, кровлю, окна, двери, организацию строительства, страхование и полноценный сервис. Затраты прозрачны, домашний быт с таким подходом — спокойный и предсказуемый.

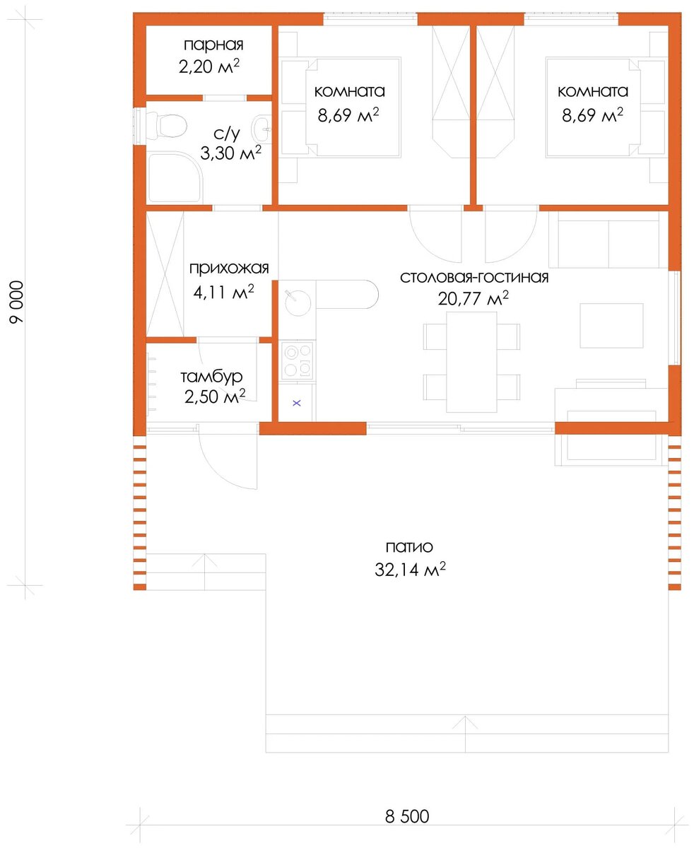
Проект «Счастье-4»: расширение удобства и пространства для большой семьи

«Счастье-4» — это эволюция базового проекта.

Дом рассчитан на 3-5 человек, идеально подходит для постоянного проживания большой семьи или дружеских встреч. Принцип минимализма сохраняется: ничего лишнего, максимум уюта и света. Отличие — более просторная терраса, оптимальные переходы между комнатами, ещё больше зон для отдыха и сбора гостей, что делает «Счастье-4» не просто стандартным жильём, а центром семейной жизни.

Архитектор уделил особое внимание коммуникациям, эргономике и пространству для хранения: дом ощущается лёгким, стильным и комфортным на всю семью. Терраса летом становится местом, где жизнь кипит с утра до вечера, зимой — теплым уголком для неспешных встреч у камина.

Хай-тек — больше, чем стиль: философия NATURI

Основная идея хай-тек в деревянном доме NATURI — это экологичность, эргономика и наслаждение природой. Открытые планировки, панорамное остекление, легкая интеграция внутреннего и внешнего пространства, широкие террасы и дворики создают ощущение свободы и гармонии. В отличие от типовых коробок хай-тек, NATURI предлагает технологичный продукт с индивидуальным лицом — как в архитектуре, так и в сервисе.

Отзывы владельцев отмечают:

  • В доме легко дышать, ощущается тишина и спокойствие.
  • Стены не требуют штукатурки, бытовая отделка занимает минимум времени.
  • Высокий уровень комфорта и экономии на отоплении — NATURI в 1.5 раза теплее клеёного бруса.
  • Семьи ценят простоту ухода, прочность, долгий срок службы и эстетику натурального дерева.

Сравнение: «Счастье» или «Счастье-4»?

Таблица сравнения проектов "Счастье" и "Счастье-4" от NATURI
Таблица сравнения проектов "Счастье" и "Счастье-4" от NATURI

Сравнение проектов «Счастье» и «Счастье-4» — это выбор между максимальным уютом в компактном формате и расширенным, светлым домом для большой семьи.

Оба варианта построены по технологии NATURI: надежный вертикальный брус, современная архитектура и экологичные решения гарантируют комфортную атмосферу, тёплый климат и лёгкость отделки.

В таблице показаны основные параметры — площадь дома и террас, количество спален и санузлов, а также особенности, которые раскрывают философию счастья NATURI: гармония, стиль и забота о качестве жизни на каждом квадратном метре.

Вывод: одноэтажный дом NATURI — «Счастье» с олимпийским комфортом

Современный дом NATURI в стиле хай-тек — это гораздо больше, чем просто квадратные метры для жизни. Это стиль жизни, гармония с природой, эргономика и абсолютный уют. Проекты «Счастье» и «Счастье-4» — отличный выбор для семей, ценящих индивидуальный подход, удобство, светлое пространство и престижную технологию строительства.

Дом NATURI — это современная философия счастья, где жить приятно каждый день, вне зависимости от сезона и возраста.

Для нас очень важен ваш комфорт, поэтому мы подходим к каждому проекту индивидуально, что позволяет редактировать проект дома под ваши запросы! Выбирайте заинтересовавший вас проект и оставляйте заявку на сайте NATURI и мы поможем реализовать ваши мечты!

Наша цель – чтобы Вы и Ваша семья жила в здоровом доме!

Компания NATURI ведет строительство по всей России и предлагает всем ощутить радость от ПМЖ при въезде в авторские дома из уникального материала!Специалисты компании NATURI помогут вам реализовать свои самые смелые мечты и построить дом своей мечты в кратчайшие сроки!

Подписывайтесь на наш канал и получайте больше полезной информации о строительстве и ремонте, смотрите наши проекты и вдохновляйтесь деревянным строительством!

Для ознакомления с проектами NATURI переходите по ссылке - https://naturi.su/katalog/

Следите за нами в других социальных сетях:

Telegram: https://t.me/naturi_su

Insta: https://www.instagram.com/naturi.su

ОК: https://ok.ru/group/52207693004881

VK: https://vk.com/naturi

RUTUBE: https://rutube.ru/channel/30778075/

#NATURI #хайтек #экодом #счастье #загородныйдом #деревянныйдом #отзывы