Найти в Дзене

Проект «Веванта-Флай 300» — дом с бильярдной

Строим дома в Тюмени и Москве Грамотно продуманная планировка делает дом не только красивым, но и максимально практичным для жизни. Проект выполнен в стиле Райта — гармония строгих линий, природных материалов и современной эстетики. Такой дом станет настоящим украшением загородного участка и подчеркнёт статус его владельцев. Каждый проект на нашем сайте, включая «Веванта-Флай 300», мы адаптируем под ваши желания и потребности — от планировки до фасадных решений. Каталог проектов в Тюмени Каталог проектов в Москве Также подписывайтесь на соцсети, чтобы быть в курсе наших акций и новостей! Наш канал в Telegram Мы в «ВКонтакте»
Оглавление

Строим дома в Тюмени и Москве

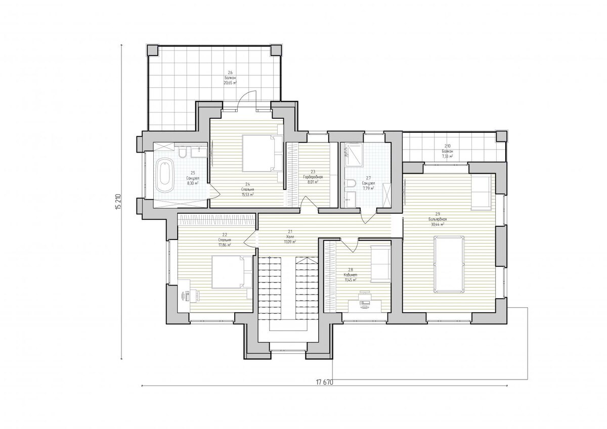
Площадь и планировка

  • Общая жилая площадь — 238,77 м².
  • Террасы, крыльцо и балконы — дополнительные 56,72 м² для отдыха на свежем воздухе.
  • Вместительный гараж — удобство и безопасность для автомобиля.

Грамотно продуманная планировка делает дом не только красивым, но и максимально практичным для жизни.

Пространства для семьи и отдыха

  • Кухня и столовая — просторные зоны для семейных ужинов и встреч с друзьями.
  • Светлая гостиная — центр дома, наполненный уютом и теплом.
  • Три спальни — комфортные комнаты для спокойного сна и личного пространства.
  • Кабинет — идеальное место для работы и концентрации.
  • Бильярдная комната — зона развлечений и отдыха для всей семьи.

Архитектура и стиль

Проект выполнен в стиле Райта — гармония строгих линий, природных материалов и современной эстетики. Такой дом станет настоящим украшением загородного участка и подчеркнёт статус его владельцев.

Почему стоит выбрать «Веванта-Флай 300»

  • современный архитектурный проект от ведущих специалистов «Веванта»;
  • просторные и функциональные планировочные решения;
  • гармоничное сочетание современных технологий строительства и стильного дизайна;
  • идеальный вариант для постоянного проживания и загородного отдыха.

Каждый проект на нашем сайте, включая «Веванта-Флай 300», мы адаптируем под ваши желания и потребности — от планировки до фасадных решений.

Каталог проектов в Тюмени
Каталог проектов в Москве

Также подписывайтесь на соцсети, чтобы быть в курсе наших акций и новостей!

Наш канал в Telegram
Мы в «ВКонтакте»