Добавить в корзинуПозвонить
Найти в Дзене

Норвежские дома: стандарт или лучший выбор для загородной жизни? Сравнение проектов NATURI

Дома в норвежском стиле уже давно стали символом скандинавского уюта, практичности и природной гармонии. В линейке проектов NATURI эти дома приобрели новую индивидуальность, став технологичным и надежным решением для современной семьи. Но какой из проектов выбрать — стандарт или бестселлер? Давайте подробно сравним три проекта из линейки "Норвежский" от NATURI: «Норвежский дом», «Норвежский 2» и «Норвежский 3», чтобы понять, почему «Норвежский 3» признан настоящим фаворитом клиентов NATURI. Все проекты серии построены по уникальной австрийской технологии вертикального бруса NATURI, что гарантирует дому надежность, долговечность, отсутствие усадки и отличные теплотехнические характеристики. Эти дома дышат, наполняются светом благодаря большим окнам, не требуют сложной отделки и полностью готовы к эксплуатации сразу после завершения строительства. Основная идея оригинального «Норвежского дома» — создание на небольшом участке полноценного, функционального и экологичного дома для семьи. З
Оглавление

Дома в норвежском стиле уже давно стали символом скандинавского уюта, практичности и природной гармонии. В линейке проектов NATURI эти дома приобрели новую индивидуальность, став технологичным и надежным решением для современной семьи. Но какой из проектов выбрать — стандарт или бестселлер? Давайте подробно сравним три проекта из линейки "Норвежский" от NATURI: «Норвежский дом», «Норвежский 2» и «Норвежский 3», чтобы понять, почему «Норвежский 3» признан настоящим фаворитом клиентов NATURI.

Дом "Норвежский 3" заказчика NATURI
Дом "Норвежский 3" заказчика NATURI

Главные черты и философия норвежских домов NATURI

Все проекты серии построены по уникальной австрийской технологии вертикального бруса NATURI, что гарантирует дому надежность, долговечность, отсутствие усадки и отличные теплотехнические характеристики. Эти дома дышат, наполняются светом благодаря большим окнам, не требуют сложной отделки и полностью готовы к эксплуатации сразу после завершения строительства.

Проект «Норвежский дом»: универсальный стандарт

Основная идея оригинального «Норвежского дома» — создание на небольшом участке полноценного, функционального и экологичного дома для семьи.

Здесь две изолированные спальни, просторная кухня-столовая между террасой и гостиной, кладовая, гардеробная и удобный санузел. Большие окна дают максимум солнечного света, открытая терраса под общей кровлей защищена от осадков — удобно для летних посиделок и мероприятий. Этот дом отлично подходит как для сезонного проживания или дачи, так и для спокойной постоянной жизни пары, семьи или пожилых родителей.

Проект «Норвежский 2»: компактный максимум

«Норвежский 2» — проект минимализма и компактности (82 м²), идеальный вариант для небольших или временных участков, гостевых домов и дачной эксплуатации.

Планировка проста и лаконична: до четырех спальных мест, светлая гостиная, рационально зонированные пространства. Несмотря на скромные габариты, в доме комфортно жить круглый год, а "норвежская" эстетика остается без упрощений. Брус NATURI гарантирует тепло и надежность, а благодаря габаритам "Норвежский 2" станет идеальным вариантом, даже если участок не велик, а бюджет ограничен.

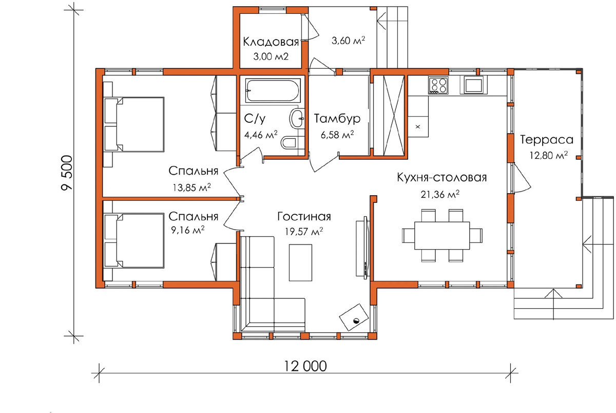
Проект «Норвежский 3»: бестселлер и лидер рынка

Но когда речь заходит о балансе стиля, уюта, функциональности и площади — безусловным фаворитом становится «Норвежский 3».

Этот проект не просто значится бестселлером NATURI: его продуманная архитектура позволила компании реализовать более десяти домов по России, каждый раз адаптируя планировку под индивидуальные пожелания заказчика. Дом площадью 98 м² вмещает три спальни, две ванные комнаты, просторную гостиную и светлую кухню с выходом на панорамную террасу (25 м²). Высота потолков — до 3,5 метров в коньке, максимум естественного освещения, ощущение свободы даже в компактном доме. В доме легко разместится семья с детьми, а терраса станет центром летней и весенней жизни.

Почему «Норвежский 3» — это больше, чем стандарт?

  • Максимум функциональности и атмосферы: три спальни, две ванных комнаты, большая терраса для всей семьи.
  • Универсальность: дом успешно реализован в различных регионах: от Алтая до Московской области, и всегда индивидуализируется под клиента.
  • Эргономика пространства: каждый метр распределён с умом, объединяя зоны общения и уединения, что важно для современной семьи.
  • Скорость строительства: отсутствует усадка, строится быстро, уже спустя пару месяцев можно начинать отделку и жить в доме.
  • Отзывы владельцев: каждый реализованный объект NATURI индивидуален, но все подчеркивают уют, тепло, легкость отделки и экологичность вертикального бруса.

Вывод: стандарт или лучший вариант?

Все три проекта серии «Норвежский» от NATURI заслуживают внимания: каждый из них качественно выполнен и адаптирован под индивидуальные потребности. Однако именно «Норвежский 3» стал бестселлером: он предлагает современный дизайн, гибкость планировки, экологичность, максимум уюта и готов к семейной жизни — без компромиссов.

Выбор всегда остается за будущими хозяевами. Но если нужен универсальный, стильный, энергоэффективный дом с оптимальным соотношением цены, площади и возможностей, бестселлер NATURI — «Норвежский 3» — действительно лучший вариант!

Для нас очень важен ваш комфорт, поэтому мы подходим к каждому проекту индивидуально, что позволяет редактировать проект дома под ваши запросы! Выбирайте заинтересовавший вас проект и оставляйте заявку на сайте NATURI и мы поможем реализовать ваши мечты!

Наша цель – чтобы Вы и Ваша семья жила в здоровом доме!

Компания NATURI ведет строительство по всей России и предлагает всем ощутить радость от ПМЖ при въезде в авторские дома из уникального материала!Специалисты компании NATURI помогут вам реализовать свои самые смелые мечты и построить дом своей мечты в кратчайшие сроки!

Подписывайтесь на наш канал и получайте больше полезной информации о строительстве и ремонте, смотрите наши проекты и вдохновляйтесь деревянным строительством!

Для ознакомления с проектами NATURI переходите по ссылке - https://naturi.su/katalog/

Следите за нами в других социальных сетях:

Telegram: https://t.me/naturi_su

Insta: https://www.instagram.com/naturi.su

ОК: https://ok.ru/group/52207693004881

VK: https://vk.com/naturi

RUTUBE: https://rutube.ru/channel/30778075/

#NATURI #норвежскийдом #загородныйдом #экодом #бестселлер #выборсемьи