Добавить в корзинуПозвонить
Найти в Дзене
ПО ПензЕ

🚗 Парковку у вокзала Пенза-1 реорганизуют для безопасности и удобства

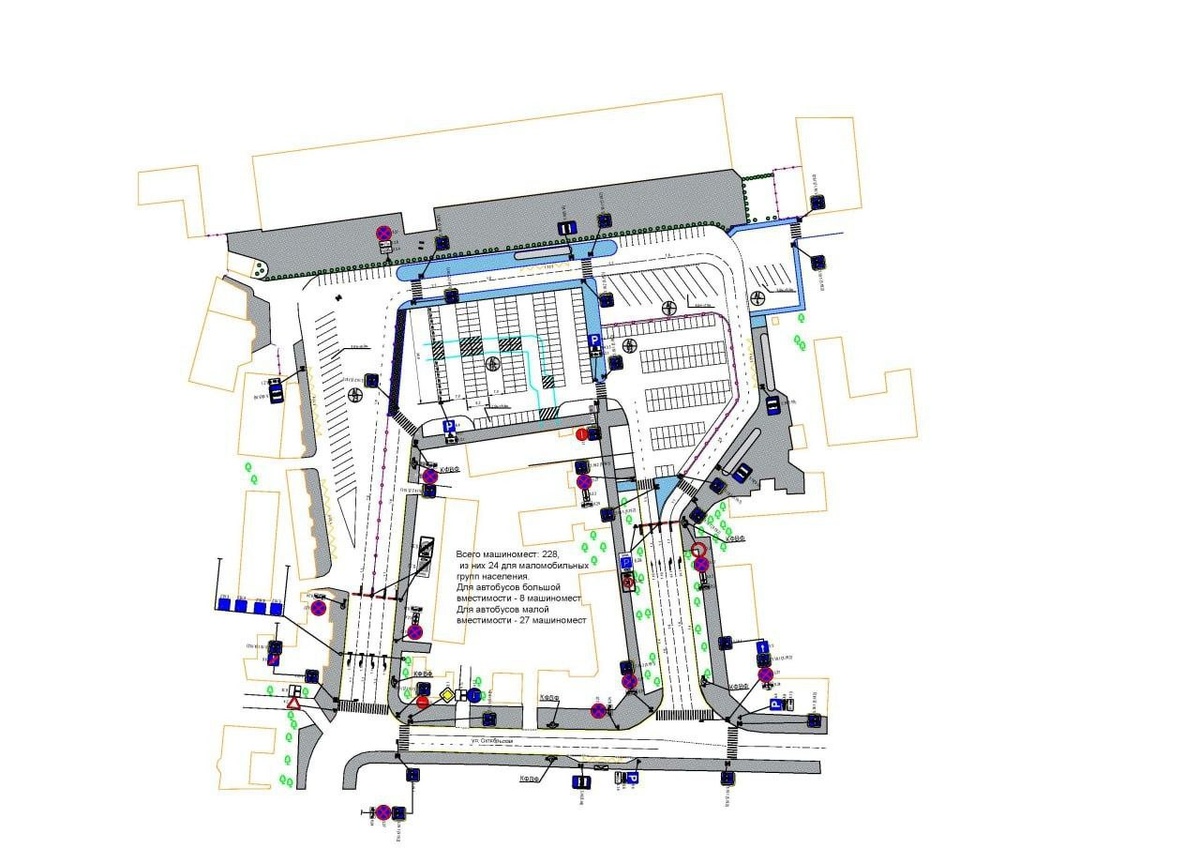
🚗 Парковку у вокзала Пенза-1 реорганизуют для безопасности и удобства Для упорядочивания движения и повышения безопасности разработана новая схема организации дорожного движения. Территория будет разделена на две зоны: для общественного транспорта и для легковых автомобилей. Общественный транспорт получит 4 остановочных пункта с 35 местами для стоянки. Для легковых автомобилей предусмотрено 228 машиномест, включая специальные места для такси и маломобильных граждан. Бесплатный период парковки составит 1 час. Для пешеходов будет оборудован тротуар. Вся территория будет находиться под круглосуточным видеонаблюдением. ✏️ Поделиться с нами новостью ✔️ Подписаться

🚗 Парковку у вокзала Пенза-1 реорганизуют для безопасности и удобства

Для упорядочивания движения и повышения безопасности разработана новая схема организации дорожного движения. Территория будет разделена на две зоны: для общественного транспорта и для легковых автомобилей.

Общественный транспорт получит 4 остановочных пункта с 35 местами для стоянки. Для легковых автомобилей предусмотрено 228 машиномест, включая специальные места для такси и маломобильных граждан. Бесплатный период парковки составит 1 час.

Для пешеходов будет оборудован тротуар. Вся территория будет находиться под круглосуточным видеонаблюдением.

✏️ Поделиться с нами новостью

✔️ Подписаться