Найти в Дзене
Mind Mesh

Копирование и мониторинг в Revit. Основы

Инструмент Revit Копирование/мониторинг позволяет как скопировать элемент из связанного файла, так и отслеживать его различные изменения. Например, изменения положения, параметра наименование (например, наименование уровня, осей) , а в отдельных случаях, добавление новых экземпляров или удаление.
В данной статье используется связка между архитектурой и базовым файлом. Рассмотрим подробно как пользоваться инструментом Копирование/мониторинг на примере осей. Последовательность действий с другими элементами аналогична, даже если работа с проектом начинается с концептуальной версии. Прежде чем воспользоваться инструментом Копирование/Мониторинг, необходимо добавить файл, из которого необходимо скопировать элементы при помощи Revit связи, в файл, куда их необходимо скопировать.
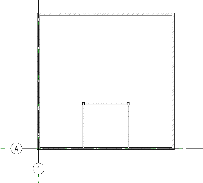
Вот так выглядят файлы в нашем примере:
1. Файл АР с осями «1», «А» и уровнем «0,000», в который добавляем связь. 2. Базовый файл с сеткой осей «1-4», «А-Г», уровнями «0,000, +4,000, +8,000», который является связ
Оглавление

Инструмент Revit Копирование/мониторинг позволяет как скопировать элемент из связанного файла, так и отслеживать его различные изменения. Например, изменения положения, параметра наименование (например, наименование уровня, осей) , а в отдельных случаях, добавление новых экземпляров или удаление.

В данной статье используется связка между архитектурой и базовым файлом. Рассмотрим подробно как пользоваться инструментом
Копирование/мониторинг на примере осей. Последовательность действий с другими элементами аналогична, даже если работа с проектом начинается с концептуальной версии.

Подготовительный этап

Прежде чем воспользоваться инструментом Копирование/Мониторинг, необходимо добавить файл, из которого необходимо скопировать элементы при помощи Revit связи, в файл, куда их необходимо скопировать.

Вот так выглядят файлы в нашем примере:

1. Файл АР с осями «1», «А» и уровнем «0,000», в который добавляем связь.

                                                            Отображение осей на плане этажа
Отображение осей на плане этажа
                                         Отображение уровней на разрезе и 3D виде соответственно
Отображение уровней на разрезе и 3D виде соответственно

2. Базовый файл с сеткой осей «1-4», «А-Г», уровнями «0,000, +4,000, +8,000», который является связью.

                                                                             План этажа
План этажа
                                  Отображение уровней на разрезе и на 3D виде соответственно
Отображение уровней на разрезе и на 3D виде соответственно

Чтобы добавить связь в файл АР, на вкладке Вставить выбираем Связь Revit, и открывается проводник, в котором нужно выбрать путь к файлу связи.

Обратите внимание, что тип размещения автоматически стоит
Авто - Совмещение внутренних начал. Как правило, он не является верным выбором, однако, в этой статье мы не акцентируем внимание на координатах, поэтому не забудьте выбрать тип размещения, подходящий для вашего проекта.

-5

-6

Также добавить связь можно, нажав в диспетчере проекта правой кнопкой мыши на Связанные файлы Revit и выбрав Создание связи.

Обратите внимание, что на начальном виде невозможно создать связь, для этого необходимо открыть любой вид (план этажа, 3D вид и т.д.)
Обратите внимание, что на начальном виде невозможно создать связь, для этого необходимо открыть любой вид (план этажа, 3D вид и т.д.)

Теперь в файле АР мы видим:

  • связь БФ в Диспетчере проекта (1);
  • оси из файла БФ (2);
  • синюю рамочку (3), которая появляется при наведении на оси и свидетельствует о том, что они находятся внутри связи.
-8

2. Копирование осей и уровней из базового файла

Чтобы скопировать оси из базового файла, находясь в файле АР, переходим во вкладку Совместная работа, далее Координация -> Копирование/мониторинг -> Выбрать связь. Наводим курсор в поле объекта и видим вновь синюю рамку, которая является маркером связи, кликаем внутри рамки ЛКМ.

-9

Видим, что в верхнем меню появилась специальная строка редактирования:

-10

Зайдем в Параметры (1), посмотрим, что предварительно возможно настроить. В верхней строке (2) видим доступные для копирования/мониторинга категории элементов: уровни, оси, стены, перекрытия. Кроме обозначенных категорий возможно копировать/мониторить категории колонн и инженерное оборудование. У каждой категории есть свои дополнительные параметры (3).

Также обращаем внимание, что в первую очередь для каждой из категорий есть сопоставление типов (4).

Исходный тип - тип элемента из файла связи, новый тип - из текущего проекта. Можно выбрать только из типов, которые уже загружены в проект, а в случае, если они отсутствуют, будет производиться копирование исходного типа.

-11

Скопируем Оси. Нажимаем на кнопку Копировать и ставим галочку в строке Несколько, чтобы выделить сразу все оси, далее зажимаем ctrl и выделяем оси «2-4», «Б-Г». Оси «1» и «А» нет необходимости дублировать, так как они уже есть в файле АР. Нажимаем Готово.

Обратите внимание, что есть две пары кнопок
Готово и Отмена. Нижняя - завершает или отменяет операцию над конкретными элементами, а пара, которая находится под значками “галочка” и “крестик”, завершает/отменяет саму операцию Копирование/Мониторинг.

-12

Скопируем уровни. Для удобства переходим на 3D вид. Повторяем действия: нажимаем на кнопку Копировать -> ставим галочку в строке Несколько -> зажимаем Ctrl и кликаем по уровням -> выбираем Готово.

Также можно копировать уровни на разрезах и фасадах.

-13

Чтобы действия инструмента Копирование/мониторинг вступили в силу, необходимо обязательно нажать на зеленую галочку Готово.

-14

Как понять, что копирование/мониторинг случилось?

  1. Заметим, что ось/уровень стал элементом модели АР – их возможно выбрать и редактировать.
  2. Обратим внимание на появившийся значок мониторинга при клике на ось/уровень.
  3. Увидим в верхней строке кнопку «Остановить мониторинг»
                                                                             План этажа
План этажа
                                                                                    3D вид
3D вид

3. Когда нужен только мониторинг?

  1. Если в модели уже существуют элементы, которые повторяются в базовом файле. Так как у нас уже есть оси “А” и “1” в файле АР, для них нужен только мониторинг.

Находясь в файле АР, снова переходим во вкладку Совместная работа -> Координация -> Копирование/мониторинг -> Выбрать связь -> нажимаем ЛКМ в область связи на плане этажа -> Мониторинг -> выбираем ось «А» в проекте АР, а затем ось «А» связанного файла БФ. Видим, что появилась соответствующая иконка. Далее выбираем ось «1» файла АР, а затем ось «1» связанного файла -> нажимаем Готово. Теперь все оси файла АР находятся под мониторингом.

-17

2. В случае, когда связанный файл (у нас БФ) по каким-либо причинам не выгружается (1), а удаляется (2).

Тогда весь настроенный мониторинг слетает, и его необходимо проделать снова
(уже без функции копирования, только мониторинг: попарный прокликивание нужного элемента в файле АР и в связанном файле БФ после его повторного добавления в виде связи).

-18

3. В случае, когда в модели раздела уже были созданы элементы, привязанные к уровням.

Тогда целесообразно применить мониторинг уровней из базового файла, с настройкой нужных отступов и/или наименований, поскольку удаление уровня может повлечь за собой удаление привязанных к нему элементов.

4. Контроль изменений

Сохраняем изменения в базовом файле.Внесем некоторые изменения в базовом файле, чтобы увидеть, как отобразятся изменения в файле АР.

Переходим в базовый файл и вносим следующие изменения:

  1. Удаляем ось «В»
  2. Смещаем ось «3»
  3. Переименовываем ось «4» в ось «4/1»
  4. Создаем еще одну ось «4/2»

Сохраняем изменения в базовом файле.

-19

Переходим в файл АР. Чтобы увидеть изменения в Диспетчере проекта нажимаем правой кнопкой мыши на связанный файл и выбираем Обновить

-20

Revit нам сразу показывает предупреждение:

-21

Подобные предупреждения будут появляться каждый раз, когда будут вноситься изменения в файл, откуда производится мониторинг.

Обратим внимание на появившиеся изменения в модели.

                                                        Так отображаются оси на данном этапе
Так отображаются оси на данном этапе

Чтобы конкретно отследить произошедшие изменения, переходим во вкладку Совместная работа -> Координация -> Просмотр координаций -> Выбрать связь -> нажимаем в поле связи на плане этажа

-23

Появляется следующее окно: обратим внимание на перечисление изменений: нажимаем на «+», чтобы увидеть подробнее.

-24

При нажатии на ячейку Отложить, появляются варианты, которые мы можем предпринять.

Для перемещённого элемента видим следующие варианты:

-25
  • Отложить – не принимать сейчас никаких решений. При этом предупреждение о нестыковке файлов будет появляться каждый раз при загрузке и обновлении связи.
  • Отказаться – не принимать изменения, оставить все в модели так, как было.
  • Принять разницу – зафиксировать разницу «дельту» в положении. Далее будет мониториться эта «дельта» и изменения относительно нее.
  • Изменить сетку «3» - применить свойства/положение соответственно скорректированному файлу БФ.

Для примера посмотрим, как работает действие «Принять разницу».

Переходим к действию для удалённого элемента:

-26

Видим, что появляется дополнительный вариант «удаление элемента», выберем его.

Для элемента, у которого было изменено имя, видим следующие действия:

-27

Выбираем вариант Переименование элемента «4», нажимаем сначала Применить, а затем ОК и смотрим итог:

  • Ось «В» удалилась также, как и в базовом файле (1)
  • Ось «3» осталась существовать в исходном положении и не вызывает уведомлений об ошибке (2)
  • Ось «4» переименовалась в ось «4/1» (3)

То, на что следует обратить внимание: добавление новых элементов в базовом файле не вызывало предупреждений в основной модели (4)!
Такие моменты необходимо отслеживать самостоятельно и при необходимости назначать
Копирование/Мониторинг вновь, как было рассмотрено выше с другими осями.

-28

Удостоверимся, что все ошибки/предупреждения устранены: переходим во вкладку Совместная работа -> Координация -> Просмотр координаций -> Выбрать связь -> кликаем в поле связи на плане этажа и наблюдаем «чистое» окно

-29

Автор статьи - Кира Сосновская

-30