Найти в Дзене
СтройДизайн

Проект перепланировки и дизайн-проект квартиры 71,27 м

Проект перепланировки и дизайн-проект квартиры 71,27 м² Изначально квартира имела стандартную планировку, но заказчики хотели больше функционала и удобства. Мы выполнили перепланировку и полностью переработали пространство. Что изменилось: 📌 Добавили гардеробную и хозяйственный блок для хранения. 📌 Выделили полноценный кабинет и детскую — у каждого члена семьи есть своё личное пространство. 📌 Объединили кухню и гостиную в комфортную общую зону. 📌 Продумали расстановку мебели и эргономику, чтобы каждый метр работал на комфорт. В итоге — квартира с продуманной логикой, где нет «потерянных» квадратных метров, а жизнь становится проще и удобнее. 📍 СтройДизайн | Хабаровск Больше работ на сайте www.stdkhv.com 8 (914) 158-55-30

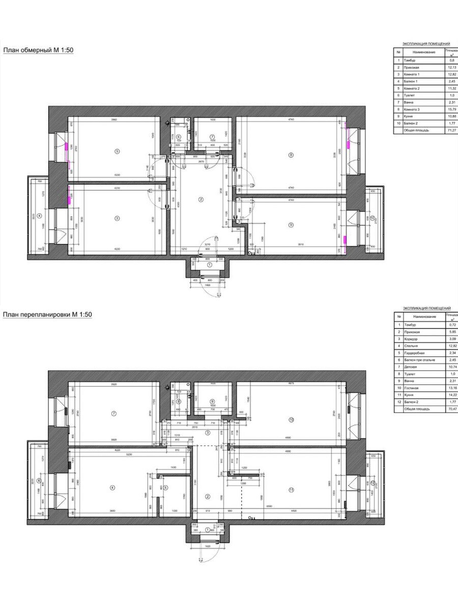
Проект перепланировки и дизайн-проект квартиры 71,27 м²

Изначально квартира имела стандартную планировку, но заказчики хотели больше функционала и удобства. Мы выполнили перепланировку и полностью переработали пространство.

Что изменилось:

📌 Добавили гардеробную и хозяйственный блок для хранения.

📌 Выделили полноценный кабинет и детскую — у каждого члена семьи есть своё личное пространство.

📌 Объединили кухню и гостиную в комфортную общую зону.

📌 Продумали расстановку мебели и эргономику, чтобы каждый метр работал на комфорт.

В итоге — квартира с продуманной логикой, где нет «потерянных» квадратных метров, а жизнь становится проще и удобнее.

📍 СтройДизайн | Хабаровск

Больше работ на сайте www.stdkhv.com

8 (914) 158-55-30

-2
-3
-4
-5
-6
-7
-8
-9
-10