Добавить в корзинуПозвонить
Найти в Дзене
Onlíner

Скошенные стены и всего 45 «квадратов». Как минчане спасли непростую планировку в новостройке?

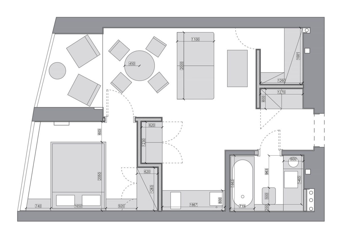
Эта квартира в минской новостройке стала примером того, как даже небольшое пространство можно сделать функциональным и уютным. Жилье занимает всего 45 «квадратов», но стены в нем не давят, а интерьер обладает легкостью и воздушностью. Евродвушка имеет необычную планировку в форме трапеции. Сразу у входа — продуманная прихожая с большим зеркалом, встроенным шкафом и местом для мелочей. Санузел получился просторным: сюда уместили ванну, тумбу с раковиной и стиральную машину. Главная зона квартиры — кухня-гостиная. Рабочая часть кухни вынесена в нишу, чтобы не мешать мягкой зоне с диваном и ТВ. За телевизионной стеной предусмотрели отдельную кладовую-гардеробную — редкая, но крайне полезная опция для хранения чемоданов и бытовых мелочей. В спальне — большая кровать, встроенный шкаф и панорамный вид на город. Все это поместилось в небольшой комнате со скошенной стеной. Такую же форму имеет и балкон, но он еще меньше — здесь появилась зона отдыха. — Интерьер сочетает современную основу и эл

Эта квартира в минской новостройке стала примером того, как даже небольшое пространство можно сделать функциональным и уютным. Жилье занимает всего 45 «квадратов», но стены в нем не давят, а интерьер обладает легкостью и воздушностью.

Евродвушка имеет необычную планировку в форме трапеции. Сразу у входа — продуманная прихожая с большим зеркалом, встроенным шкафом и местом для мелочей. Санузел получился просторным: сюда уместили ванну, тумбу с раковиной и стиральную машину.

Главная зона квартиры — кухня-гостиная. Рабочая часть кухни вынесена в нишу, чтобы не мешать мягкой зоне с диваном и ТВ. За телевизионной стеной предусмотрели отдельную кладовую-гардеробную — редкая, но крайне полезная опция для хранения чемоданов и бытовых мелочей.

В спальне — большая кровать, встроенный шкаф и панорамный вид на город. Все это поместилось в небольшой комнате со скошенной стеной. Такую же форму имеет и балкон, но он еще меньше — здесь появилась зона отдыха.

— Интерьер сочетает современную основу и элементы классики. Здесь мягкая пастельная палитра, натуральные текстуры дерева и камня, высокие плинтусы и дверные обрамления. Акценты заданы латунными деталями: их можно найти в сантехнике, светильниках и фурнитуре, — отметил автор проекта, дизайнер Александр Жмакин.

Отделка тоже подобрана тщательно: паркет «елочкой» белорусского производства, декоративная штукатурка на стенах, фасады из крашенного МДФ и столешницы из кварцевого агломерата.

Квартира сдавалась в состоянии «черновой коробки», поэтому ремонт прошел полный цикл — от возведения перегородок до установки встроенной мебели. Все работы заняли 5 месяцев.

Есть о чем рассказать? Пишите в наш телеграм-бот. Это анонимно и быстро