Найти в Дзене

Проект КБ-11. Одноэтажный дом 73 м2 + терраса 23 м2

Дом, в который хочется возвращаться. ПРОЕКТ КБ-11 мы создали для тех, кто ценит уют и продуманность каждого метра. Это одноэтажный дом площадью 100 м², который идеально подойдёт для семьи из 3 - 4 человек. Компактные габариты позволяют разместить его даже на небольшом участке, но внутри вас ждёт простор и гармония: каждый метр здесь продуман так, чтобы дарить комфорт и удобство. С первого взгляда КБ-11 притягивает внимание: чистые линии, натуральные материалы и большие панорамные окна, наполняющие дом светом и создающие атмосферу лёгкости. ПЛАНИРОВКА создана для комфортной жизни: Главная изюминка проекта - это сочетание уюта деревянного дома с минимализмом и лёгкостью скандинавской архитектуры. Прямые линии и большие окна визуально расширяют пространство, а атмосфера внутри остаётся тёплой и домашней. Такой дом мы готовы построить за 5 месяцев, включая изготовление домокомплекта. Понравился дом? Заполните форму по ссылке, мы свяжемся с Вами и вышлем презентацию проекта.

Дом, в который хочется возвращаться.

ПРОЕКТ КБ-11 мы создали для тех, кто ценит уют и продуманность каждого метра. Это одноэтажный дом площадью 100 м², который идеально подойдёт для семьи из 3 - 4 человек.

Компактные габариты позволяют разместить его даже на небольшом участке, но внутри вас ждёт простор и гармония: каждый метр здесь продуман так, чтобы дарить комфорт и удобство.

С первого взгляда КБ-11 притягивает внимание: чистые линии, натуральные материалы и большие панорамные окна, наполняющие дом светом и создающие атмосферу лёгкости.

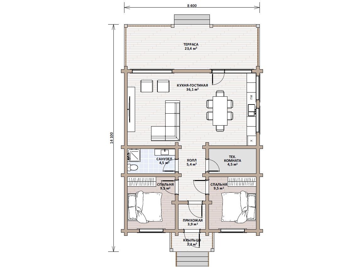
ПЛАНИРОВКА создана для комфортной жизни:

-2
  • две уютные спальни - удобно как для семьи с детьми, так и для пары,
  • сердце дома - просторная кухня-гостиная площадью 36 м²,
  • функциональная терраса - место для утреннего кофе, работы на свежем воздухе и тихих вечеров в кругу близких,
  • техкомната и отдельный санузел для практичности и порядка.

Главная изюминка проекта - это сочетание уюта деревянного дома с минимализмом и лёгкостью скандинавской архитектуры. Прямые линии и большие окна визуально расширяют пространство, а атмосфера внутри остаётся тёплой и домашней.

Такой дом мы готовы построить за 5 месяцев, включая изготовление домокомплекта.

Понравился дом? Заполните форму по ссылке, мы свяжемся с Вами и вышлем презентацию проекта.