Добавить в корзинуПозвонить
Найти в Дзене
DIVAN.RU

Одноэтажный загородный дом 98 кв.м: спокойный бежевый интерьер для семьи

Вход в спальню через встроенную в шкаф дверь, биокамин с порталом из керамогранита, полотенцесушитель на входе — проект дома площадью 98 кв.м. стал настоящим полем для экспериментов. Пожелания заказчиков звучали лаконично: интерьер должен быть светлым и легким, внутри — достаточно мест для хранения всякой всячины и уголок, где можно собрать семейную коллекцию сувениров. В остальном хозяева загородного дома доверились профессионалам. Посмотрим, что получилось. Дом, о котором пойдет речь, одноэтажный. Площадь поделена на прихожую, гостиную, кухню-столовую, детскую, санузел для гостей, прачечную, коридор и мастер-спальню с отдельной ванной комнатой и гардеробной. Первоначальная задумка предполагала, что дверь из гостиной в спальню будет располагаться в центре комнаты. Из-за этого пространство неравномерно дробилось и выглядело негармонично, так что решено было перенести дверь ближе к окну. За диваном транзитную зону оставили, чтобы не создавать неудобство для передвижения. Потолки в гости
Оглавление

Вход в спальню через встроенную в шкаф дверь, биокамин с порталом из керамогранита, полотенцесушитель на входе — проект дома площадью 98 кв.м. стал настоящим полем для экспериментов. Пожелания заказчиков звучали лаконично: интерьер должен быть светлым и легким, внутри — достаточно мест для хранения всякой всячины и уголок, где можно собрать семейную коллекцию сувениров. В остальном хозяева загородного дома доверились профессионалам. Посмотрим, что получилось.

  • Объект: загородный дом 98 кв.м в г. Саратов
  • Авторы проекта: ARH STUDIO, фотограф: Роман Спиридонов

Планировочное решение

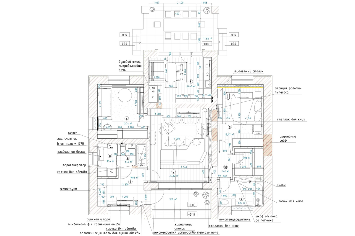
Дом, о котором пойдет речь, одноэтажный. Площадь поделена на прихожую, гостиную, кухню-столовую, детскую, санузел для гостей, прачечную, коридор и мастер-спальню с отдельной ванной комнатой и гардеробной.

Первоначальная задумка предполагала, что дверь из гостиной в спальню будет располагаться в центре комнаты. Из-за этого пространство неравномерно дробилось и выглядело негармонично, так что решено было перенести дверь ближе к окну. За диваном транзитную зону оставили, чтобы не создавать неудобство для передвижения.

Планировка дома и расстановка мебели
Планировка дома и расстановка мебели

Гостиная

Потолки в гостиной увеличенной высоты — 4,8 м. Для этой комнаты была выбрана комбинация из монохромной бежево-серой гаммы и ярких оранжево-голубых акцентов. На одной из стен смонтировали фреску и 3D-панели, за которыми установили подсветку.

Прием: двери выбрали шпонированные. Полотна скрытого монтажа часто используют, чтобы они не выделялись в интерьере. Однако для этого проекта двери, наоборот, стали акцентами.

Центральным элементом гостиной стал большой угловой диван. Напротив него установили электрокамин, а телевизор встроили в фальшстенку, спрятав тем самым неэстетичную проводку. Для камина соорудили имитацию шахты.

-4

Хозяева дома часто бывают в путешествиях, откуда привозят оригинальные сувениры и статуэтки — для этой коллекции было возведено несколько стеллажей вдоль одной из стен в гостиной.

Кстати: проход в спальню встроен в ту же группу стеллажей.

-5

Проблема и решение: центральным архитектурным элементом гостиной является большое арочное окно. Для помещений с такими окнами трудно подобрать систему обогрева, поскольку при неправильном выборе окно будет постоянно покрываться конденсатом. В этой гостиной установили вертикальный подвесной радиатор и спрятали его за текстилем.

Кухня-столовая

Кухонный гарнитур выбрали угловой. Верхний ярус шкафов смонтировали только на одной стене, а колонну со встроенной техникой перенесли на смежную стену, чтобы грамотно распорядиться полезной площадью.

Обратите внимание: стандартного верхнего яруса над раковиной нет, но есть его имитация. Формально такая конструкция является открытой витриной для фужеров, бокалов и одновременно нишей для телевизора.

Столешница гарнитура выполнена из искусственного камня. Из такого же материала изготовлен фартук на стене под витриной. На стене с навесными шкафами фартук выполнен из керамогранита под мрамор.

В обеденной зоне стоит мягкий диван Роттердам от бренда divan.ru. Обивку подобрали под оттенок стен — в «Конструкторе» на сайте сделать это можно за пару минут.

➡️Товары бренда divan.ru

Мастер-спальня

Для спальни также выбрали приглушенную гамму, а в качестве акцентных элементов здесь — графичные черные линии. Стену за изголовьем кровати оформили асимметрично: одну часть обоями и молдингами, другую — 3D-панелями.

Центральным элементом спальни стала, конечно, кровать. Напротив нее — подвесной туалетный столик, который является продолжением ТВ-тумбы. На входе в спальню поставили шкаф, который визуально разделили на две части при помощи цветовых акцентов.

Прикроватную тумбу Квелен тоже заказали на divan.ru — ассортимент этого бренда не ограничивается диванами.

➡️Товары бренда divan.ru

Мастер-санузел

Главная фишка санузла — большое окно. Стекла затонировали при помощи пленки, а затем задрапировали римской шторой. В подоконник встроили «теплый пол».

Система хранения в ванной располагается над инсталляцией. Также дополнительно скрытыми полками-нишами снабдили зону ванны, чтобы можно было хранить косметические принадлежности под рукой. В будущем в санузле появится стеклянная шторка и небольшое кресло, на которое можно будет положить полотенце или халат.

Детская

Функциональность детской на максимуме: вдоль стены расположили систему хранения, которая плавно перетекает в рабочий стол. А еще одну миниатюрную полку установили над спинкой дивана и встроили зарядку для телефона и компактный светильник.

Прихожая

Во входной зоне на пол уложили керамогранит и смонтировали «теплый пол». У двери повесили вертикальный полотенцесушитель, на котором удобно сушить мокрые вещи, не занося их в комнату. Стену напротив двери полностью закрыли массивным шкафом со встроенным зеркалом и множеством отсеков для хранения вещей и обуви.

Гостевой санузел

Попасть в гостевой санузел можно из прихожей. Душевую оформили плиткой крупного формата «под металл». Слева при входе установили раздвижные двери с тонировкой, за которыми расположили прачечную и котельную.

🎉 Нам 10 лет! Празднуем вместе и дарим подарки каждому. Крутите «Колесо фортуны»: вас ждут бонусы, скидки и даже мебель за 1₽. Ловите удачу на divan.ru

-15

==========

Оцените интерьер в комментариях, а если материал понравился — не забудьте поставить лайк👍

🖤divan.ru — не только блог про интерьеры, но и производитель доступной дизайнерской мебели. Ищите новые идеи и переходите на сайт, чтобы воплотить их в жизнь.