Найти в Дзене
ДОМ с умом

Проект "Аркадий"

Это уютный и эстетичный дом с продуманной планировкой, учитывающей разные сценарии жизни семьи с двумя детьми. Общая площадь - 233,2 кв.м
Жилая площадь - 209,2 кв.м
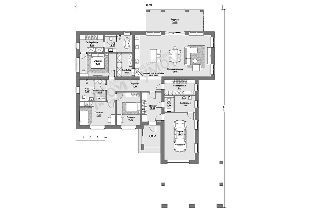
Габариты - 20,2 х 27,2 м
Фундамент: монолитная железобетонная плита
Стены: керамзитобетонный блок 390 мм, утеплитель - 100 мм.
Отделка фасада: штукатурка
Крыша - плоская неэксплуатируемая по железобетонным плитам перекрытия Красивый и вместительный дом, рассчитанный на семью из 4-х человек. Центральным помещением дома является кухня-гостиная с большими окнами. Из неё открывается панорамный вид на задний двор и выход на террасу. Спальная зона включает три комфортабельные спальни, одна из которых оснащена личным гардеробом и ванной. Также в доме есть все необходимые хозяйственные помещения: котельная, гардеробная-постирочная, кладовая и гараж на 1 авто. 📌Жилая площадь – 209,2 кв.м
📌Кухня-гостиная - 59,8 кв.м
📌Спальни – 3 шт.
📌Гараж - на 1 авто
📌Терраса - 24 кв.м
Оглавление

Это уютный и эстетичный дом с продуманной планировкой, учитывающей разные сценарии жизни семьи с двумя детьми.

Характеристики:

Общая площадь - 233,2 кв.м
Жилая площадь - 209,2 кв.м
Габариты - 20,2 х 27,2 м
Фундамент: монолитная железобетонная плита
Стены: керамзитобетонный блок 390 мм, утеплитель - 100 мм.
Отделка фасада: штукатурка
Крыша - плоская неэксплуатируемая по железобетонным плитам перекрытия

Планировка:

Красивый и вместительный дом, рассчитанный на семью из 4-х человек. Центральным помещением дома является кухня-гостиная с большими окнами. Из неё открывается панорамный вид на задний двор и выход на террасу. Спальная зона включает три комфортабельные спальни, одна из которых оснащена личным гардеробом и ванной. Также в доме есть все необходимые хозяйственные помещения: котельная, гардеробная-постирочная, кладовая и гараж на 1 авто.

-2

📌Жилая площадь – 209,2 кв.м
📌Кухня-гостиная - 59,8 кв.м
📌Спальни – 3 шт.
📌Гараж - на 1 авто
📌Терраса - 24 кв.м