Найти в Дзене

Проект мужской и женской сауны для фитнес-клуба Encore Fitness

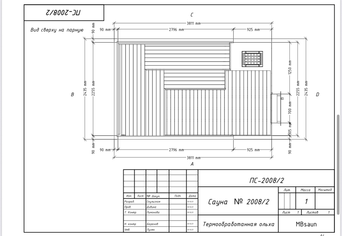
Компания MBSAUN специализируется на проектировании и строительстве премиальных бань и саун по всей России. В рамках проекта для Encore Fitness мы реализовали пять помещений, включая ключевые — мужскую и женскую сауны. Задача стояла амбициозная: дизайн парных должен быть логическим продолжением интерьера фитнес-клуба, при этом сауна обязана работать без перебоев в режиме 24/7, выдерживая ежедневную эксплуатацию. Мы уверены: сауна в фитнес-клубе не может быть отдельным объектом — она должна органично вписываться в общий стиль пространства. Для Encore Fitness мы использовали термообработанную ольху и светлый керамогранит в зоне печи. Такая комбинация делает интерьер тёплым, премиальным и безопасным. Чёткая геометрия, ровные линии и мягкая подсветка поддерживают атмосферу минимализма и гармонии, соответствующую уровню клуба. Одна из главных особенностей проекта — круглосуточная эксплуатация. Мы подобрали мощные печи нового поколения, которые обеспечивают стабильный микроклимат и способ
Оглавление

Компания MBSAUN специализируется на проектировании и строительстве премиальных бань и саун по всей России. В рамках проекта для Encore Fitness мы реализовали пять помещений, включая ключевые — мужскую и женскую сауны.

Задача стояла амбициозная: дизайн парных должен быть логическим продолжением интерьера фитнес-клуба, при этом сауна обязана работать без перебоев в режиме 24/7, выдерживая ежедневную эксплуатацию.

Дизайн сауны как часть общей архитектуры

Мы уверены: сауна в фитнес-клубе не может быть отдельным объектом — она должна органично вписываться в общий стиль пространства. Для Encore Fitness мы использовали термообработанную ольху и светлый керамогранит в зоне печи.

Такая комбинация делает интерьер тёплым, премиальным и безопасным. Чёткая геометрия, ровные линии и мягкая подсветка поддерживают атмосферу минимализма и гармонии, соответствующую уровню клуба.

-2

Сауна, которая работает без перебоев

Одна из главных особенностей проекта — круглосуточная эксплуатация. Мы подобрали мощные печи нового поколения, которые обеспечивают стабильный микроклимат и способны выдерживать высокую посещаемость.

Системы вентиляции, электрики и противопожарных зазоров были продуманы ещё на этапе дизайн-альбомов, что гарантирует безопасность и долговечность парной.

-3

Столярное производство MBSAUN

Особая гордость — наша собственная столярная мастерская. Именно здесь создавались уникальные элементы интерьера: профили для скрытой подсветки, эргономичные спинки и ручки, детали отделки из ольхи.

Столярная работа в MBSAUN — это не просто мебель, а архитектурные акценты, которые превращают сауну в цельное произведение.

Дизайн и безопасность

Мы придерживаемся принципа: красивая сауна невозможна без инженерной точности. В Encore Fitness:

-4

  • все деревянные элементы установлены с учётом пожарных норм,
  • подсветка выполнена сертифицированными термолентами,
  • материалы подобраны под высокую влажность и интенсивное использование.

Такой подход гарантирует, что сауна будет не только красивой, но и надёжной.

Итоги проекта

Мужская и женская сауны в Encore Fitness — это пример того, как премиальный дизайн сауны сочетается с инженерией и безопасностью. Эти парные продолжают эстетику клуба, работают в режиме 24/7 и создают особый опыт восстановления для посетителей.

-5

MBSAUN — лидер в строительстве и отделке бань и саун премиум-класса. Мы создаём пространства, где красота всегда равна безопасности.