Найти в Дзене

Согласование перепланировки. Документация | ч.3

Сегодня разберем документы, которые потребуются для получения разрешения.
Помним, что запрос на согласование может направить только собственник помещения или ответственный квартиросъемщик (для соцнайма), на крайняк — представитель по доверенности. Для подачи нам потребуется: Подать запрос о согласовании можно онлайн на mos.ru, все документы обязательно прикрепить в виде качественного скана. Если вы обратились к проектной организации, то все разработанные эскизы и техзаключение должны быть подписаны электронной подписью товарища, имеющего право действовать от лица организации. После регистрации запроса Мосжилинспекция согласует дату и время для проведения обследования. ПОМНИМ! что решение готовится 20 рабочих дней (для культурного наследия — 30). Срок разрешения действует всего 18 месяцев Телеграм-канал: Творческий.PSD
Согласование перепланировки | ч.1
Согласование перепланировки. Запреты | ч.2
Согласование перепланировки. Документация | ч.3
Согласование. Последствия | ч.4

Сегодня разберем документы, которые потребуются для получения разрешения.
Помним, что запрос на согласование может направить только собственник помещения или ответственный квартиросъемщик (для соцнайма), на крайняк — представитель по доверенности.

Для подачи нам потребуется:

  • Запрос о согласовании перепланировки;
  • Доверенность, в случае если действия проводит представитель;
  • Документы на помещение, в котором будем проводить перепланировку (договор на участие в долевом строительстве с согласием застройщика; договор об уступке права на участие в долевом строительстве; акт приема-передачи недвижки, договор найма, договор передачи недвижки в собственность, договор купли-продажи, свидетельство о праве на наследство, договор ренты);
  • Письменное согласие всех членов семьи нанимателя или собственника;
  • Подготовленный проект перепланировки помещения с размерными указателями.

Подать запрос о согласовании можно онлайн на mos.ru, все документы обязательно прикрепить в виде качественного скана. Если вы обратились к проектной организации, то все разработанные эскизы и техзаключение должны быть подписаны электронной подписью товарища, имеющего право действовать от лица организации.

После регистрации запроса Мосжилинспекция согласует дату и время для проведения обследования.

ПОМНИМ! что решение готовится 20 рабочих дней (для культурного наследия — 30).

Срок разрешения действует всего 18 месяцев

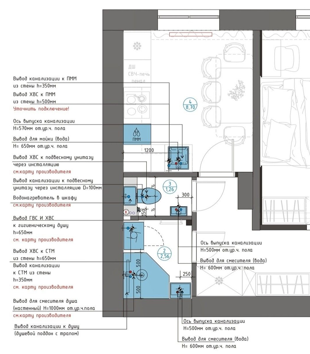
План расстановки сантехнического оборудования
План расстановки сантехнического оборудования

Полезные ссылки

Телеграм-канал: Творческий.PSD

Согласование перепланировки | ч.1
Согласование перепланировки. Запреты | ч.2
Согласование перепланировки. Документация | ч.3
Согласование. Последствия | ч.4