Найти в Дзене
ЭТО ВАШ ИНТЕРЬЕР

Семейная пара, уставшая от города, решает приобрести старую квартиру в тихом переулке. Но после демонтажа старых перекрытий их ждет сюрприз

Оглавление

Представьте: шумный исторический центр Санкт-Петербурга, где каждый камень дышит историей. Семейная пара, уставшая от городской суеты, решает приобрести уютную квартиру в тихом переулке. Но после демонтажа старых перекрытий их ждет сюрприз — высота спальни увеличивается на целый метр, открывая новые возможности для творчества.

Это не просто ремонт, а настоящая трансформация пространства, где неоклассическая элегантность сплетается с загадочными этническими мотивами. Профессиональный дизайнер берется за дело, и вот, из руин рождается интерьер, который заставляет сердце биться чаще. Давайте разберем этот проект шаг за шагом — от неожиданных открытий до финальных штрихов.

Ключевые детали проекта: от идеи до воплощения

  • Локация: Санкт-Петербург, уютная улица в историческом центре, где каждый уголок напоминает о временах Пушкина и Достоевского. Дом, построенный в XIX веке, несет в себе отпечаток эпохи, но теперь он готов к новой жизни.
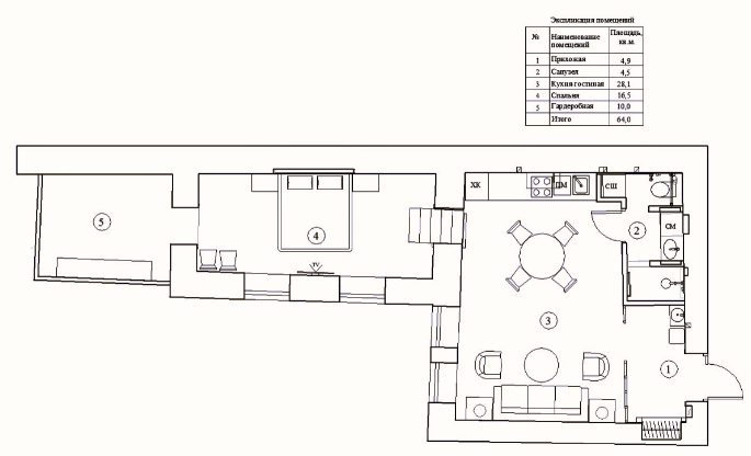
  • Площадь: 64 квадратных метра — компактное пространство, которое дизайнеру удалось расширить не только физически, но и визуально.
  • Владельцы: Молодая семейная пара, которая планирует использовать квартиру как "второй дом" — для редких визитов в город, полных романтики и отдыха. Они мечтали о месте, где можно укрыться от мира, но при этом чувствовать пульс культурной столицы.
-2

Архитектурные ограничения — почти все стены несущие — не позволили радикальную перепланировку, но это только подстегнуло креативность. Вместо сноса стен дизайнеры использовали хитрые приемы: стеклянные перегородки, зеркальные поверхности и контрастные акценты.

Результат? Квартира, где каждый сантиметр работает на комфорт и красоту. Неоклассика здесь — это не холодная симметрия, а теплая, живая эстетика с элементами восточного колорита, вдохновленного древними традициями.

Прихожая: порог в мир элегантности и уюта

Вход в квартиру — это как первая страница захватывающего романа. После десятилетий забвения старые покрытия демонтировали, и пространство преобразилось. Контраст стал ключевым мотивом: черная входная дверь выделяется на фоне светлых стен, создавая ощущение таинственности.

-3

Слева — шкаф для хранения, с белыми фасадами, сделанными на заказ. Но настоящая изюминка — стена, полностью покрытая зеркалами с геометрическими узорами. Эти мотивы, напоминающие мозаику древних мечетей, повторяются по всему интерьеру, связывая комнаты в единое целое.

Перегородка из дерева со стеклянными вставками отделяет прихожую от гостиной, доходя до потолка. Она не только зонирует пространство, но и пропускает свет, делая квартиру воздушной.

-4

А раковина у зеркального панно? Это гениальное решение: после прогулки по дождливым улицам СПб можно быстро помыть руки или даже лапы питомцу, не заходя вглубь. Представьте, как это практично для пары, которая ценит каждую минуту в городе контрастов — от каналов до дворов-колодцев.

Гостиная: свет, контраст и укрытие от глаз

Гостиная — сердце квартиры, где светлые тона стен и потолка создают ощущение простора. Но чтобы избежать скуки, дизайнеры добавили смелые акценты: большой темный диван, как якорь в море света, и два ярко-красных кресла, которые мгновенно оживляют атмосферу.

-5

Окна выходят во двор-колодец — типичный для старого Питера элемент, где свет едва проникает. Владельцы хотели приватности, и вот решение: витражи в стиле Тиффани между стеклами, с мягкой подсветкой по периметру. Эти цветные стекла не просто украшают, а преломляют солнечные лучи, создавая игру света, напоминающую закат над Невой.

-6

Зеркальные откосы увеличивают естественный свет, делая комнату еще ярче. Это не случайность — каждый элемент продуман, чтобы подчеркнуть неоклассический стиль: симметрия, элегантность, но с ноткой современности. Здесь можно представить, как пара проводит вечера за чаем, обсуждая новые путешествия, а красные кресла добавляют энергии, словно вспышки фейерверка над Петропавловкой.

Кухня: контраст и функциональность в сердце дома

Кухня без окон — вызов для любого дизайнера. Раньше здесь была газовая плита, но владельцы выбрали индукционную — шаг к современности и безопасности.

-7

Объединение с гостиной сделало пространство открытым, но без "острова" с раковиной, так как уклон труб не позволил реализовать идею. Вместо этого — линейный гарнитур, адаптированный под дверные проемы с двух сторон. Черный цвет кухни контрастирует с белыми стенами и потолком, создавая драматический эффект, как в сцене из фильма о старом городе.

-8

Обеденная зона с круглым черным столом — фокус комнаты. Фартук, выполненный в той же мастерской, что и перегородка, добавляет текстуры. А откатная дверь в спальню? Это антикварный шедевр: дверь из мечети, украшенная ручной чеканкой и инкрустацией из верблюжьей кости. Она древняя, тяжелая, но современный механизм позволяет открывать ее одним пальцем.

-9

Это не просто деталь — это история, связанная с культурой Востока, которая органично вписывается в неоклассику. Представьте, как эта дверь скрипит, открывая путь в спальню, и вы чувствуете себя путешественником во времени.

-10

Спальня: секреты истории и комфорт

Ремонт принес неожиданность: под старым полом обнаружилось перекрытие на метр ниже — след слияния нескольких домов в советские времена. Вместо выравнивания решили оставить "нижний ярус", опустив подоконник.

-11

Кровать поместили в нише с акцентными обоями, создав уютный кокон. Светлые тона комнаты разбавлены насыщенным синим изголовьем кровати и золотистыми шторами — цвета, которые символизируют спокойствие Невы и блеск императорских дворцов.

-12

Здесь неоклассика проявляется в изящных линиях мебели, а этнические детали — в узорах, намекающих на восточные ковры. Это пространство для отдыха, где пара может забыть о городской суете, погружаясь в атмосферу, полную исторических отголосков.

Ванная: игра света и тени

Ванная — апофеоз контрастов: светлая отделка стен, черная сантехника, раковина, унитаз и стиральная машина. Над унитазом — витражные дверцы, скрывающие техническую нишу, добавляя шарма. Это место, где функциональность встречается с искусством, как в галерее современного дизайна.

-13

В итоге, этот ремонт — не просто обновление, а история любви к Санкт-Петербургу, где прошлое и настоящее сливаются в гармонии. Квартира стала местом, где каждый элемент рассказывает свою сказку, от древней двери до зеркальных стен.

-14

Если вы ищете вдохновение для своего дома, этот проект — идеальный пример, как из ограничений родить шедевр.