Недопустимые вещи при перепланировке: Телеграм-канал: Творческий.PSD
Согласование перепланировки | ч.1
Согласование перепланировки. Запреты | ч.2
Согласование перепланировки. Документация | ч.3
Согласование. Последствия | ч.4
Недопустимые вещи при перепланировке: Телеграм-канал: Творческий.PSD
Согласование перепланировки | ч.1
Согласование перепланировки. Запреты | ч.2
Согласование перепланировки. Документация | ч.3
Согласование. Последствия | ч.4
...Читать далее
Недопустимые вещи при перепланировке:
- Ухудшение условий эксплуатации многоквартирных домов и проживания граждан, затруднение доступа к инженерке и иные работы, вызывающие ухудшение условий эксплуатации.
- Переустройство или перепланировка помещений, при которых смежные помещения будут считаться непригодными для проживания.
- Нарушение прочности, устойчивости несущих конструкций, при котором может произойти обрушение.
- Установка отключающих или регулирующих конструкций на общедомовых сетях, если использование ими будет давить на потребление ресурсов в соседних помещениях.
- Ликвидация, изменение сечения системы вентиляции и демонтаж тех- и вент. коробов.
- Увеличение нагрузки на несущие стены сверх нормы или ослабление несущих конструкций.
- Устройство или перенос радиаторов отопления, подключение к общедомовым системам горячего водоснабжения на лоджии, балконе, веранде.
- Устройство теплого пола от общедомовой системы отопления и водоснабжения.
- Нарушение требований строительных, санитарно-гигиенических, эксплуатационных норм и правил пожарной безопасности.
- Устройство проемов, вырубка ниш, пробивка отверстий в стенах, а также местах расположения связей между сборными элементами.
- Устройство штроб в горизонтальных швах и под внутренними стеновыми панелями, а также в плитах перекрытий под размещение проводки, разводки трубопровода.
- Устройство или увеличение площади существующего балкона, лоджии, веранды на вторых и выше этажах.
- Переустройство или перепланировка чердака, тех. этажа, относящегося к общедомовому имуществу.
- Работы по переустройству или перепланировке в домах, признанных аварийными.
- Объединение газифицированного помещения с жилой комнатой.
- Объединение лоджии, балкона, террасы с внутренним помещением.
- Устройство на главном фасаде многоквартирного дома вентиляционного короба и дымохода.
- Размещение газифицированной кухни над жилыми комнатами или под ними.
- Устройство наружного тамбура за пределами стен помещения.
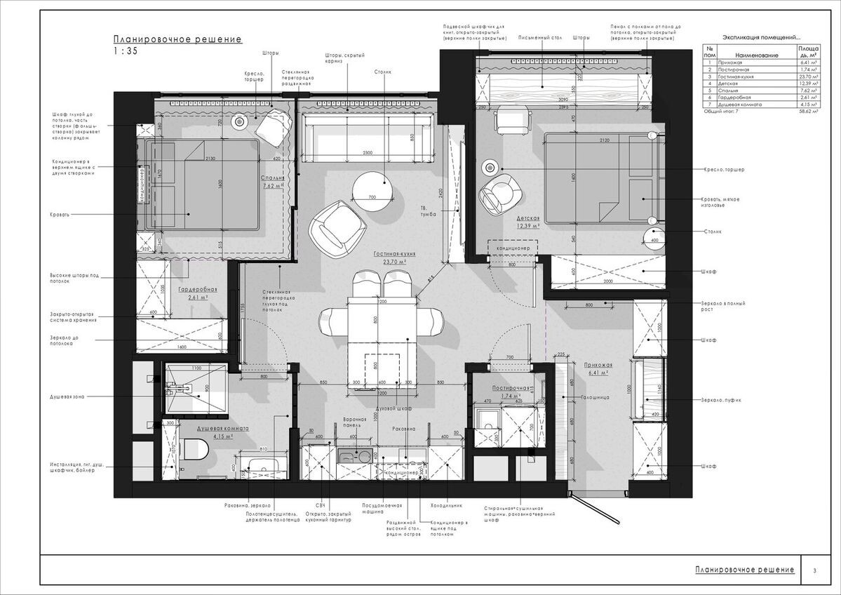
Планировочное решение квартиры
Полезные ссылки
Телеграм-канал: Творческий.PSD
Согласование перепланировки | ч.1
Согласование перепланировки. Запреты | ч.2
Согласование перепланировки. Документация | ч.3
Согласование. Последствия | ч.4