Найти в Дзене
Ксюша в дизайне

Согласование перепланировки | ч.1

Процесс узаконивания перепланировки — это штука серьезная, и игнорировать её я не рекомендую. Процедура зависит от того, как именно вы собираетесь менять пространство. Есть несколько видов работ, которые требуют согласования: переустройство, перепланировка и иные работы, которые затрагивают общее имущество дома. Установка в нежилом помещении доп. оборудования (инженерия, технологическое оборудование и т. п.) или перенос существующего оборудования с прокладкой дополнительных сетей. Работы по переустройству помещения, расположенного в многоквартирном доме, который является объектом культурного наследия. Первое, что нам нужно — четко определиться с проектом перепланировки. Для этого нужно подготовить грамотно разработанный эскиз, лучше всего заниматься этим с профессионалом, важна точность и логика пространства. После разработки необходимо обратиться в Мосжилинспекцию и получить разрешение на проведение перепланировки. Остается самое трудное — провести работы и, главное, помнить про учет
Оглавление

Процесс узаконивания перепланировки — это штука серьезная, и игнорировать её я не рекомендую. Процедура зависит от того, как именно вы собираетесь менять пространство.

Есть несколько видов работ, которые требуют согласования: переустройство, перепланировка и иные работы, которые затрагивают общее имущество дома.

Перепланировка

  • Перенос, изменение зон, совмещение с/у, уборной и ванной
  • Устройство несущих стен
  • Устройство доп. проемов в перекрытиях несущих стен
  • Изменение границ помещения в целях объединения или разделения (например, спальня + лоджия)
  • Заделка проемов в несущих стенах
  • Изменение конструкции полов в доме с деревянным перекрытием (устройство полов)
  • Устройство или разбор лестниц, подиумов, ступеней, пандусов
  • Устройство новых перегородок, создающих излишнюю нагрузку на перекрытия (более 150 кг/кв.м)
  • Устройство/перенос кухни или кухни-ниши
  • Устройство антресоли площадью более 40% от площади выделенного помещения
  • Работы по перепланировке помещения, расположенного в многоквартирном доме, который является объектом культурного наследия
  • Создание и ликвидация, изменение формы оконных и дверных проемов лоджии и балкона без затрагивания архитектурного облика.

Переустройство

Установка в нежилом помещении доп. оборудования (инженерия, технологическое оборудование и т. п.) или перенос существующего оборудования с прокладкой дополнительных сетей.

Работы по переустройству помещения, расположенного в многоквартирном доме, который является объектом культурного наследия.

С чего мы начинаем?

Первое, что нам нужно — четко определиться с проектом перепланировки. Для этого нужно подготовить грамотно разработанный эскиз, лучше всего заниматься этим с профессионалом, важна точность и логика пространства.

После разработки необходимо обратиться в Мосжилинспекцию и получить разрешение на проведение перепланировки.

Остается самое трудное — провести работы и, главное, помнить про учет скрытых работ.

Лучше всего по такому вопросу обращаться в фирмы, которые профильно ведут процесс согласования планировок. Они профессионально окажут необходимую помощь.

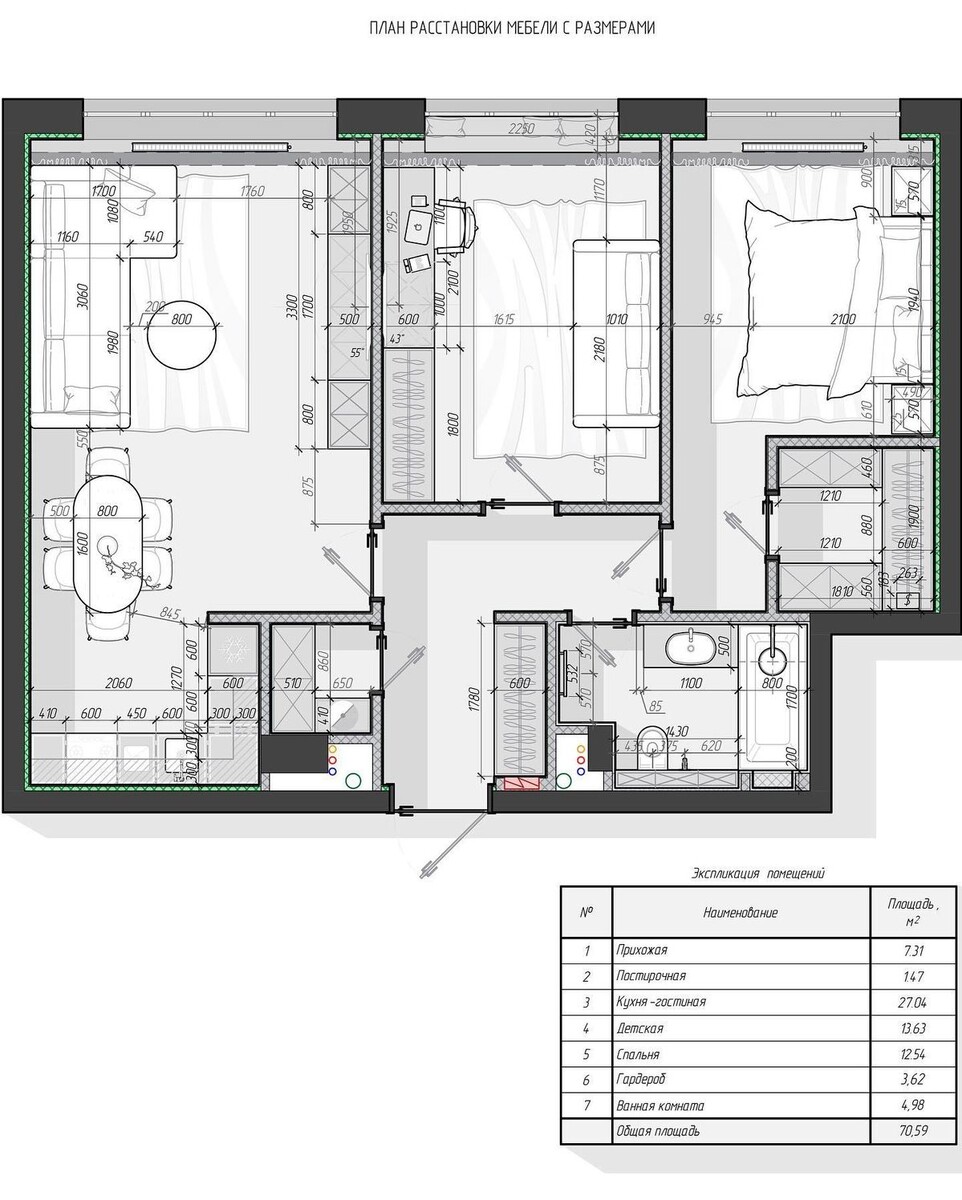
План расстановки мебели
План расстановки мебели

Полезные ссылки

Телеграм-канал: Творческий.PSD

Согласование перепланировки | ч.1
Согласование перепланировки. Запреты | ч.2
Согласование перепланировки. Документация | ч.3
Согласование. Последствия | ч.4