Найти в Дзене
DIVAN.RU

ДО/ПОСЛЕ: настроение ретро в однокомнатной «брежневке» 31 кв.м

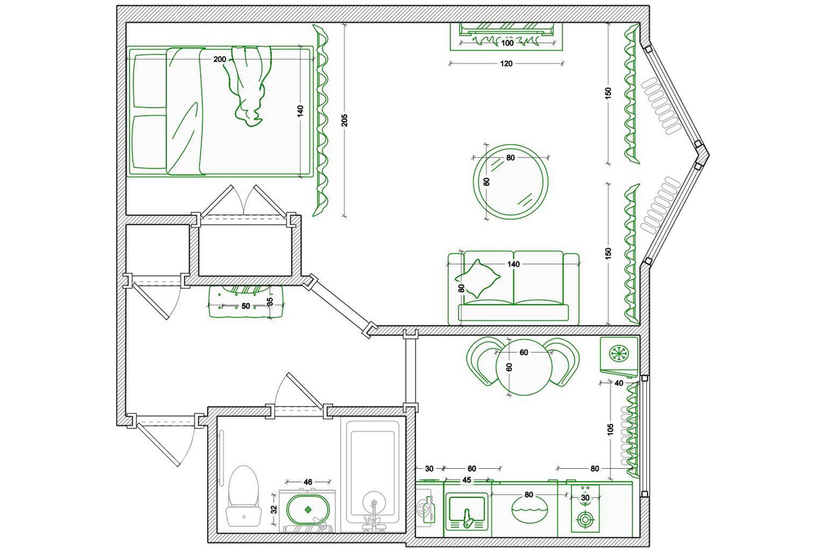
Сохранили максимум от «родного» ремонта: планировку, эркер и окна, двери встроенных шкафов, ведущие в кладовку. Заглянем в гости. Объект: однокомнатная квартира 31 кв.м в г. Санкт-Петербург Автор проекта: дизайнер Елена Вертий; автор фото: Александр Макен До переделки в квартире был устаревший ремонт. А вот атмосфера —особенной, отражающей историю бывших владельцев. Сохранились предметы, которые хозяева делали своими руками, и «родные» встроенные шкафы с необычными дверцами. Эти шкафы, сохраненные и отреставрированные, и задали настроение остальному интерьеру. Перепланировку не делали в целях экономии бюджета. Квартира однокомнатная, есть изолированная кухня, прихожая, совмещенный санузел. Единственную комнату разделили на зоны спальни и гостиной. Деревянные окна в эркере не меняли, очистили от слоев старой краски и выкрасили в белый цвет. Стены и фальш-камин покрыли светло-серой краской. Компактный двухместный диван Сите в коралловой обивке заказали в divan.ru. Обстановка в гостиной л
Оглавление

Сохранили максимум от «родного» ремонта: планировку, эркер и окна, двери встроенных шкафов, ведущие в кладовку. Заглянем в гости.

Объект: однокомнатная квартира 31 кв.м в г. Санкт-Петербург
Автор проекта: дизайнер Елена Вертий; автор фото: Александр Макен

До переделки в квартире был устаревший ремонт. А вот атмосфера особенной, отражающей историю бывших владельцев. Сохранились предметы, которые хозяева делали своими руками, и «родные» встроенные шкафы с необычными дверцами. Эти шкафы, сохраненные и отреставрированные, и задали настроение остальному интерьеру.

Планировочное решение

Перепланировку не делали в целях экономии бюджета. Квартира однокомнатная, есть изолированная кухня, прихожая, совмещенный санузел.

-2

Комната

Состояние квартиры ДО ремонта
Состояние квартиры ДО ремонта

Единственную комнату разделили на зоны спальни и гостиной. Деревянные окна в эркере не меняли, очистили от слоев старой краски и выкрасили в белый цвет. Стены и фальш-камин покрыли светло-серой краской.

-4
Компактный двухместный диван Сите в коралловой обивке заказали в divan.ru. Обстановка в гостиной лаконичная — оставили место для декора и личных вещей будущих жильцов.

➡️Товары бренда divan.ru

Спальню разместили в имеющейся нише и закрыли шторой. Для дополнительного зонирования стены в нише оклеили принтованными обоями.

-6

Имеющийся в зоне сна встроенный шкаф сохранили. Дверцы отреставрировали и выкрасили в голубой цвет. Такие шкафы — особенность планировки дома, построенного в 60-х годах прошлого века.

Кухня

Состояние квартиры ДО ремонта
Состояние квартиры ДО ремонта

В кухне использовали прием колор-блок. Верхнюю часть стен и потолок выкрасили в насыщенный терракотовый оттенок. В том же цвете выполнены фасады кухонного гарнитура. Его разместили вдоль одной стены. От верхних шкафов отказались — внизу достаточно места для всего необходимого, включая стиральную машину. Необычный акцент — фартук, облицованный искусственным камнем.

Прихожая

Стены в прихожей оклеили яркими обоями, которые создают солнечное настроение прямо с порога. Для верхней одежды есть встроенный шкаф.

Обратите внимание: Электрощиток на стене не стали прятать, наоборот, сделали акцентом, выкрасив той же голубой краской, что и двери. Стену украсили круглым зеркалом в голубой раме. Для удобства предусмотрели пуф у входной двери.

Санузел

В санузле — комбинированная отделка. Мокрые зоны облицевали изумрудной плиткой, остальные стены оклеили обоями с цветочным принтом на темно-зеленом фоне. Чтобы обои не пострадали от влаги, их защитили прозрачным лаком. Чугунная ванна осталась от прежних владельцев. Смесители в винтажном стиле поддерживают общую стилистику.

Состояние санузла ДО и ПОСЛЕ ремонта
Состояние санузла ДО и ПОСЛЕ ремонта

==========

🔥 Игра началась: 17 черных пятниц! Поймайте скидки до 50% в карточках товаров и закажите мебель и аксессуары с максимальной выгодой на divan.ru >>

-12

==========

Оцените интерьер в комментариях, а если материал понравился — не забудьте поставить лайк👍

🖤divan.ru — не только блог про интерьеры, но и производитель доступной дизайнерской мебели. Ищите новые идеи и переходите на сайт, чтобы воплотить их в жизнь.