Добавить в корзинуПозвонить
Найти в Дзене
ПСК "Градиент"

Проект дома для нестандартного участка

Купили участок, а он оказался узким и с причудливой формой? Знакомая ситуация? Именно так началось наше сотрудничество с заказчиками, которые мечтали о собственном доме, но столкнулись с особенностями рельефа. Архитектурные особенности проекта порадуют тех, кто ценит практичность: Функциональные зоны распределены максимально эффективно: Практичные решения в планировке: Надёжная конструкция дома обеспечивается: Если вас заинтересовал такой подход к строительству или у вас есть свой участок со сложными особенностями - переходите на наш сайт ПСК Градиент, где вы найдёте множество готовых проектов и сможете получить консультацию наших специалистов. Подписывайтесь на наш канал в Дзене, чтобы не пропустить новые интересные проекты и полезные советы по строительству! Ставьте лайк, если статья была полезной, и делитесь в комментариях своим опытом строительства на нестандартных участках.
Оглавление

Проблема, с которой сталкиваются многие

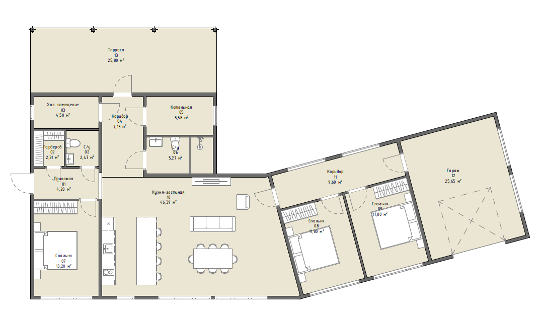
Купили участок, а он оказался узким и с причудливой формой? Знакомая ситуация? Именно так началось наше сотрудничество с заказчиками, которые мечтали о собственном доме, но столкнулись с особенностями рельефа.

Решение нестандартной задачи

Архитектурные особенности проекта порадуют тех, кто ценит практичность:

  • Одноэтажная конструкция - никаких лестниц и потерянных площадей
  • Высокие потолки 3 метра создают ощущение простора
  • Современный фасад сочетает штукатурку светлых тонов с серыми акцентами и элегантными вставками планкена

Планировка

Функциональные зоны распределены максимально эффективно:

  • Просторная кухня-гостиная 46 м² место для семейных посиделок
  • Три уютные спальни для комфортного размещения
  • Практичный гараж 25,65 м² автомобиль всегда под защитой
  • Терраса 25,80 м² отличное место для отдыха

-2

Практичные решения в планировке:

  • Отдельная гардеробная для хранения вещей
  • Хозяйственное помещение для бытовых нужд
  • Два санузла для удобства всей семьи

Технические особенности

Надёжная конструкция дома обеспечивается:

  • Монолитной плитой в качестве фундамента
  • Каркасной технологией строительства
  • Качественной изоляцией стен

Если вас заинтересовал такой подход к строительству или у вас есть свой участок со сложными особенностями - переходите на наш сайт ПСК Градиент, где вы найдёте множество готовых проектов и сможете получить консультацию наших специалистов.

-4

Подписывайтесь на наш канал в Дзене, чтобы не пропустить новые интересные проекты и полезные советы по строительству! Ставьте лайк, если статья была полезной, и делитесь в комментариях своим опытом строительства на нестандартных участках.