Добавить в корзинуПозвонить
Найти в Дзене
Априори B2B

В одном из предыдущих постов мы писали про самый маленький жилой домик

В одном из предыдущих постов мы писали про самый маленький жилой домик. У нас есть версия дуплекс. Все тоже самое, но под одной крышей два идентичных номера. Логичнее всего будет предложить его двум дружащим семьям. Кухня у каждого своя, как и санузел, чтобы избежать атмосферы общежития. Знакомые соседи добавят радости гостям. Можно и просто использовать такой вариант домика для уменьшения затрат на строительство и обслуживание. Звоните, пишите на телефон +74957981414 #отельныйбизнес #отель

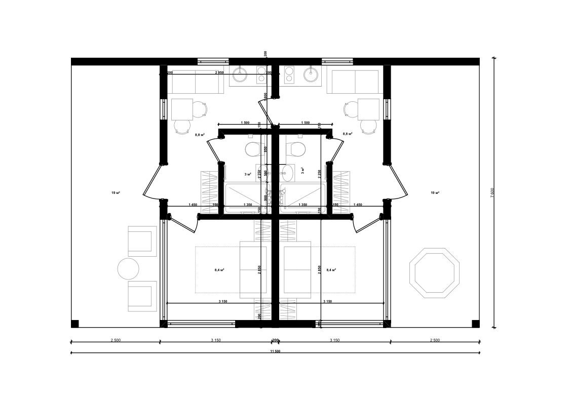
В одном из предыдущих постов мы писали про самый маленький жилой домик.

У нас есть версия дуплекс. Все тоже самое, но под одной крышей два идентичных номера.

Логичнее всего будет предложить его двум дружащим семьям.

Кухня у каждого своя, как и санузел, чтобы избежать атмосферы общежития. Знакомые соседи добавят радости гостям.

Можно и просто использовать такой вариант домика для уменьшения затрат на строительство и обслуживание.

Звоните, пишите на телефон +74957981414

#отельныйбизнес #отель

-2
-3
-4