Добавить в корзинуПозвонить
Найти в Дзене
Владислав Сарамуд

✨получаем план дома по одной фотке для смет

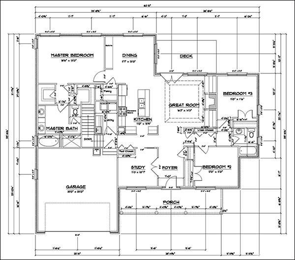
✨получаем план дома по одной фотке для смет. Nano-banana из reddita и Твиттера показала как можно сотворить план дома и получить приблизительную визуализацию, как он будет выглядеть вживую 😚 Это полезно, если вы: — Строите домики и заказчик просит быстро что-то показать, а вам лень; — Вам строят дом, вы просите что-то показать, а исполнителю лень; — Или просто мечтаете когда-нибудь купить себе домик, уже все распланировали, но цены космические, дайте хоть помечтать. Вот промт: Give me a realistic top-view of this Blueprint. make sure you follow what the blueprint exactly wants and how it would look in a real home Ссылка на nano-banana (подрубаем со сменой локации) — ТЫК. P.S. галлюцинации у нейросетей возможны , тут можно это победить промптом и дорисовкой 🤷‍♂️ 🤖Saramudvlad | забустить 🤖

✨получаем план дома по одной фотке для смет.

Nano-banana из reddita и Твиттера показала как можно сотворить план дома и получить приблизительную визуализацию, как он будет выглядеть вживую 😚

Это полезно, если вы:

— Строите домики и заказчик просит быстро что-то показать, а вам лень;

— Вам строят дом, вы просите что-то показать, а исполнителю лень;

— Или просто мечтаете когда-нибудь купить себе домик, уже все распланировали, но цены космические, дайте хоть помечтать.

Вот промт:

Give me a realistic top-view of this Blueprint. make sure you follow what the blueprint exactly wants and how it would look in a real home

Ссылка на nano-banana (подрубаем со сменой локации) — ТЫК.

P.S. галлюцинации у нейросетей возможны , тут можно это победить промптом и дорисовкой 🤷‍♂️

🤖Saramudvlad | забустить 🤖

-2