Добавить в корзинуПозвонить
Найти в Дзене

Бюджетный декор для дома, который выглядит на миллион, с реальными примерами из интерьера

Сегодня расскажу вам про квартиру, которую мы делали под сдачу. Она расположена в ЖК HIDE Park, получилась в современном стиле немного с классическим флёром. Сегодня я покажу вам, элементы декора, которые мы использовали в интерьере, и дам конкретные ссылки, где их можно найти. И у нас получится с вами такой небольшой гайд по декору дома. И моя идея - показать, как недорого сделать красивый и элегантный интерьер, который в реальной жизни будет действительно дорого смотреться. Показываю вам план самой квартиры, чтобы вам просто была понятна сама концепция. И сразу же покажу вам план мебели, чтобы было наглядно более понятно. Квартира выполнена в светлых тонах с интересными и весьма нетривиальными акцентами. Покажу вам то, что выбрала для спальни и как это выглядит в интерьере: А вот поближе немного, чтобы вы могли детально все рассмотреть! Например, премиальное постельное белье очень хорошего качества, выполненное в современном дизайне, экологичное и гипоаллергенное. Нашли на Wildber

Сегодня расскажу вам про квартиру, которую мы делали под сдачу. Она расположена в ЖК HIDE Park, получилась в современном стиле немного с классическим флёром. Сегодня я покажу вам, элементы декора, которые мы использовали в интерьере, и дам конкретные ссылки, где их можно найти. И у нас получится с вами такой небольшой гайд по декору дома.

И моя идея - показать, как недорого сделать красивый и элегантный интерьер, который в реальной жизни будет действительно дорого смотреться.

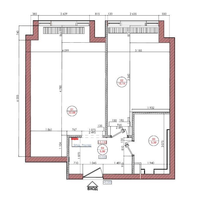
Показываю вам план самой квартиры, чтобы вам просто была понятна сама концепция.

фото автора
фото автора

И сразу же покажу вам план мебели, чтобы было наглядно более понятно.

фото автора
фото автора
фото автора
фото автора

Квартира выполнена в светлых тонах с интересными и весьма нетривиальными акцентами.

Покажу вам то, что выбрала для спальни и как это выглядит в интерьере:

коллаж автора
коллаж автора

А вот поближе немного, чтобы вы могли детально все рассмотреть!

фото и проект автора
фото и проект автора

Например, премиальное постельное белье очень хорошего качества, выполненное в современном дизайне, экологичное и гипоаллергенное. Нашли на Wildberries (#436654085)

Декоративные подушки из качественных материалов с интересными принтами я нашла на Озоне (#815547829). Смотрите, какая красота!

фото с Озон
фото с Озон

А если вам нравится такое покрывало, то вот и оно! Обязательно, как и ко всему оставляю артикул, чтобы вам было удобно всё найти. (#1770374548)

фото и проект автора
фото и проект автора

Смотрите, какой стильный светильник в черно-белом решении. Его я подобрала на Яндекс Маркете (#4334529566)

фото и проект автора
фото и проект автора

Еще мне очень понравились часы из металла с кварцевым механизмом, смотрятся очень стильно и стоят недорого. Мы разместили их в зоне кухни-столовой. Тоже на Яндекс. Маркете (#103773889772)

А как вам этот стильный ковер? Думаете, он стоит очень дорого? Отнюдь! Мы нашли его также на Яндекс.Маркете. Все артикулы вам оставляю в скобочках, чтобы вам было проще найти понравившийся декор (#102131667531)

фото и проект автора
фото и проект автора

Кстати, показываю визуализации тех самых элементов в интерьере. Мне нравится, а вам?

фото и коллаж автора
фото и коллаж автора

В дизайне квартиры всё должно быть идеально: от вешалки и аксессуаров до мебели. Поэтому собрала для вас еще кое-какие детали. Например, вот такие милейшие полотенца из хлопка я нашла на Яндекс.Маркете (#103190953787).

фото с Яндекс Маркет
фото с Яндекс Маркет

Смотрите, какая милая статуэтка из смолы компактных размеров. Идеально, на мой взгляд, вписалась в интерьер. Нашла ее в Лемана Про (#89409972). Вот она на столике, а ниже покажу вам ее поближе.

фото и проект автора
фото и проект автора

Ловите!

фото с сайта Лемана Про
фото с сайта Лемана Про

И еще одна милейшая статуэтка, лошадка. Мне понравилась! Она изготовлена из МДФ, поэтому прочная и долговечная. Здесь, на мой взгляд, смотрится очень гармонично. Тоже нашла в Лемана Про (#89409990)

фото и проект автора
фото и проект автора

Специально для вас я сделала ее фото поближе:

фото автора
фото автора

Зону столовой тоже можно весьма элегантно разнообразить разного рода аксессуарами, которые будут стоить недорого, а смотреться ну просто на миллион. Видите на столе шикарную вазу? Это Dantonehome, случайно попалась мне на их сайте. (#DH-2330628)

фото и проект автора
фото и проект автора

Еще мне очень понравился этот сет терракотового оттенка. Нашла его на Озоне, очень эффектно на нем играют солнечные лучи! (#2425943999)

фото автора
фото автора

Еще нашла специально для вас яркие бокалы также в оранжевых, жизнерадостных тонах! (#1973133389)

фото с Озон
фото с Озон

Я всегда считаю, что стены нельзя оставлять без внимания. Это еще один важный этап в работе над помещением. И сюда я выбрала вот эту картину, олицетворяющую спокойствие и медитативное ощущение жизни. Нашла ее на Озоне (#966030091)

фото и проект автора
фото и проект автора

Конечно, нельзя оставить без внимания ванную комнату. Здесь немного деталей, но все подобраны со вкусом и особой любовью.

коллаж и проект автора
коллаж и проект автора

Не могу не отметить чудесный подносик, который вы видите выше. Он очень милый и смотрится красиво. (#89399423). Его я нашла в Лемана Про.

фото с сайта Лемана Про
фото с сайта Лемана Про

Лаконичный дозатор в черном цвете для жидкого мыла тоже очень хорошо вписался в общую концепцию ванной комнаты. Покажу вам его поближе:

фото с Озон
фото с Озон

Он попался мне на Озоне. (#552922304)

Смотрите, какой эффектный вид открывается из квартиры! Кому-то очень повезет!

фото и проект автора
фото и проект автора

Видите на столике стеклянные бокалы? Они тоже попались мне на Озоне, вблизи смотрятся очень даже неплохо! Никогда не догадаетесь, сколько они стоят? Итак!! 557 рублей! Да-да, и такое возможно!

фото с Озон
фото с Озон

Скажу вам честно, для того, чтобы получить красивый и элегантный интерьер, не обязательно тратить огромные деньги. Можно найти интересные и концептуальные вещи на маркетплейсах, что я вам сейчас и продемонстрировала.

А где вы обычно покупаете декор для дома? Пишите в комментариях!

Благодарю вас за то, что читаете мой канал, это очень важно и ценно для меня!

======================================================

Поддержать автора донатами можно по ссылке.

А получить мою консультацию и расчет вашего дизайн-проекта можно, написав мне по электронной почте: info@ac-interiors.ru