Добавить в корзинуПозвонить
Найти в Дзене
ЭТО ВАШ ИНТЕРЬЕР

Я в наследство от бабушки получила старенькую хрущевку, в которой решила сохранить дух советской эпохи! Бабушкину мебель решила оставить

Привет, друзья! В этой статье я бы хотела поделиться с вами удивительной историей преображения моей двухкомнатной квартиры в старинной хрущевке Санкт-Петербурга. Эта квартира — не просто жилье, это кусочек моей души и семейной истории. Она досталась мне по наследству, и здесь прошло мое детство. Когда я вернулась сюда после долгих лет, квартиру окружали предметы, которые перенеслись со мной через время: отцовские книги на полках, бабушкины скатерки и фотографии, на которых семья улыбается в черно-белом формате. Но, признаюсь, жить по-старому уже не хотелось — мне надо было обновления. Я решила бережно преобразовать пространство, добавив комфорта, но без потери того волшебства прошлого. Вспоминая детство, я вижу эту квартиру сквозь призму чувств. Родители работали не покладая рук, бабушка готовила ужин на старой газовой плите с откидывающимися конфорками, а дедушка ремонтировал что-то по дому. В гостиной стоял массивный буфет из темного дерева, где хранились семейные альбомы — страницы
Оглавление

Привет, друзья! В этой статье я бы хотела поделиться с вами удивительной историей преображения моей двухкомнатной квартиры в старинной хрущевке Санкт-Петербурга. Эта квартира — не просто жилье, это кусочек моей души и семейной истории. Она досталась мне по наследству, и здесь прошло мое детство.

Когда я вернулась сюда после долгих лет, квартиру окружали предметы, которые перенеслись со мной через время: отцовские книги на полках, бабушкины скатерки и фотографии, на которых семья улыбается в черно-белом формате. Но, признаюсь, жить по-старому уже не хотелось — мне надо было обновления. Я решила бережно преобразовать пространство, добавив комфорта, но без потери того волшебства прошлого.

Мои корни и воспоминания: почему ретро было так важно

Вспоминая детство, я вижу эту квартиру сквозь призму чувств. Родители работали не покладая рук, бабушка готовила ужин на старой газовой плите с откидывающимися конфорками, а дедушка ремонтировал что-то по дому. В гостиной стоял массивный буфет из темного дерева, где хранились семейные альбомы — страницы с цветами можно было перелистывать часами. Скатерть на столе всегда была белоснежной, а мебель казалась вечной, с ее неповторимым скрипом и запахом дерева.

-2

Эти вещи — не случайные, а символы ушедшей эпохи. Когда родители ушли из жизни, а бабушка и дедушка стали принадлежностью прошлого, квартира осталась хранителем этих воспоминаний. Я не могла просто выбросить все и начать с нуля; это было бы предательством. Вместо этого я решила интегрировать ретро в современность, чтобы квартира стала местом, где прошлое оживает.

Ремонт как путешествие: синергия дизайнера и моих мечтаний

Я не дизайнер, поэтому обратилась к профессионалу — Эльжбете Чегаровой. Она победительница премии ADD AWARDS 2020 и лауреат в номинации «35 лучших дизайнеров Санкт-Петербурга». Ее проект даже попал в шорт-лист той же премии в категории «Городские квартиры до 100 м²». С ней мы работали вместе, обсуждая каждую деталь: что сохранить, что обновить.

-3

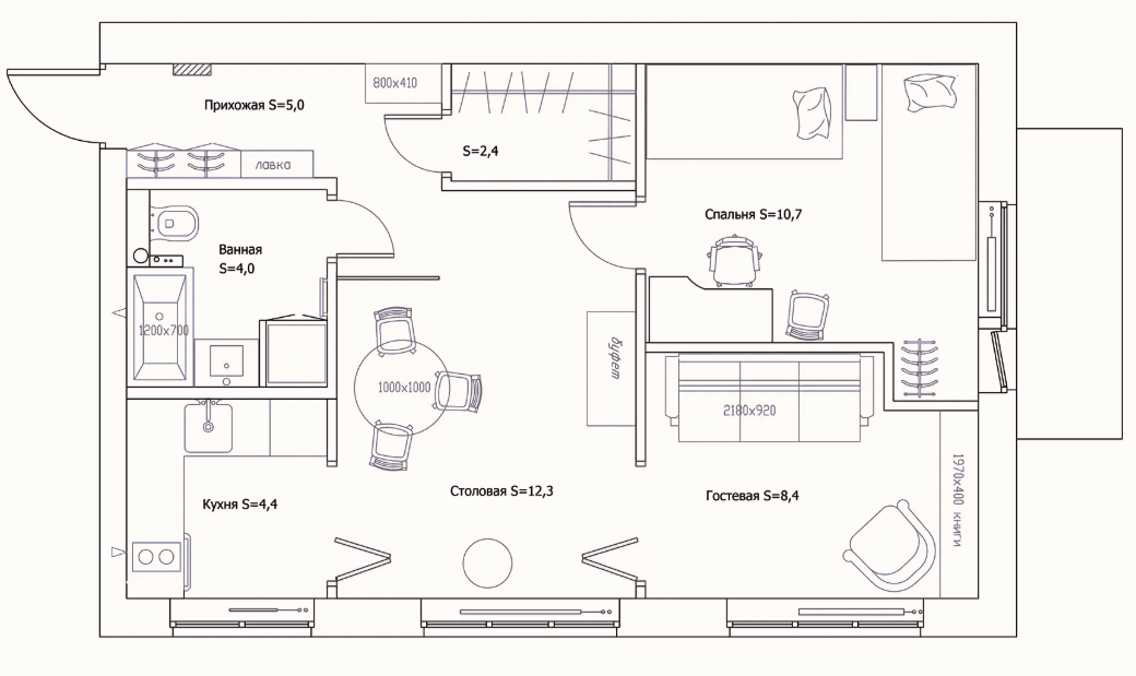
Квартира площадью 47 квадратных метров — типичная хрущевская двушка с проходной комнатой, отдельной спальней и маленькой кладовкой. Когда я была ребенком, кухня была тесной, с газовой плитой, которую требовалось зажигать осторожно. Теперь, после перепланировки, обеденная зона вышла в отдельную комнату, создав пространственную гармонию. Я помню, как в детстве мы ели на кухне, тесно прижавшись друг к другу, — сейчас можно собрать всю семью в гостиной и наслаждаться разговором.

-4

Сохранение мебели: нить поколений

Вся мебель здесь — аутентичная, семейная реликвия. Буфет в гостиной, где я теперь ставлю цветы и свечи; кресла с вытертой обивкой, на которых дедушка любил сидеть с газетой; даже односпальные кровати в спальне — они те самые, на которых я спала в детстве, слушая истории на ночь.

-5

Каждый предмет рассказывает историю: вот этот столик — из гостиной бабушки, он помнит сотни завтраков с пирожками. Я добавила полочки для книг, которые привезла из путешествий, чтобы смешать поколения — мои ноутбук на винтажном столе выглядит как мост между эпохами.

-6

Белоснежные стены когда-то были редкостью в квартирах, и я решила сохранить этот минимализм, избежав тяжелых обоев. Вместо них — светлые, дышащие поверхности, которые отражают свет осенних дней в Петербурге.

-7

Кухня: место семейных традиций

Кухня стала сердцем дома. Мы оформили ее в простом северном стиле: светло-серые шкафы с аккуратными ручками, занавески до середины окна, пропускающие солнце.

-8

Высокий фартук из белой квадратной плитки напомнил мне узоры на бабушкиных тарелках — скромные, но уютные. Радиаторы отопления спрятали за экраном, чтобы воздух обогревался равномерно, без лишнего шума.

Я добавила стеллажи для специй и кухонных книг, которые вдохновляют на эксперименты с рецептами. Утром я готовлю кофе и смотрю в окно на петербургские крыши — это момент, когда прошлое и настоящее сливаются в одно теплое ощущение.

-9

Гостиная: зона воспоминаний и общения

В гостиной — проходная комната, с маленькой перегородкой, которая делит пространство. Это вроде бы мелочь, но она добавляет музыкальности помещению, как нотка в мелодии.

-10

Представьте: вечером сижу на диване, листаю альбомы с черно-белыми фотографиями, а рядом — современная подсветка, которая освещает картину над обеденным столом. Она оживляет стены и подчеркивает зону еды как место важных разговоров. Рядом с дверью — бабушкин комод с маленькими сувенирами из поездок, включая ракушку с моря, которая пахнет солью и приключениями.

-11

Спальня и кладовка: мой личный оазис

В спальне сохранил односпальные кровати — они напоминают о детских ночах, когда мы будили друг друга шепотом. Я добавила пушистые коврики и мягкие подушки, чтобы создать ощущение уюта. Винтажный письменный стол, за которым бабушка писала письма, теперь мой рабочий уголок для ноутбука и заметок.

Кладовка с низким проемом превратилась в удобное место для хранения: полки с одеялами, коробками с семейными письмами. Я вешала там плотную занавеску, чтобы изолировать звук улицы, и теперь там тихо, как в кабинете старины.

-13

Ванная: современный комфорт в ретро-рамке

Ванная комната — мой любимый сюрприз. Мы объединили санузел, выбросив старую запутанную планировку, и уложили модную испанскую плитку с мелкими квадратами. Она блестит, как солнце на Неве, и создает ощущение свежести.

-14

Сантехнику выбрали удобную: душевая кабина без веревочек и ручек, зеркало с подсветкой для макияжа. Я добавила полочки для ароматических свечей и масел — помимо практичности, это место для релакса. После душа я слушаю, как вода стекает по плитке, и вспоминаю бабушкины поверья о воде как источнике энергии.

-15

Эмоции и итоги: квартира как живой организм

Эльжбета описала проект так: «Хозяева выросли, разлетелись по миру, а старая добрая квартира осталась на прежнем месте одна, принимая любимых постояльцев во время их коротких визитов». Это грустно, но истинно — я приезжаю сюда на дни, чтобы наполнить мешком воспоминаниями. Но каждый раз я чувствую, как квартира оживает вокруг меня: скрип паркета, запах дерева, тепло солнечных лучей.

-16

Этот ремонт изменил не только стены, но и мою душу. Я не потеряла прошлое, а интегрировала его в современность. Здесь можно жить полноценно, наслаждаясь комфортом, и одновременно путешествовать во времени. Интересный факт: кухонные занавески я сшила из ткани, которую нашла в бабушкином сундуке — она до сих пор пахнет лавандой. Спасибо Эльжбете за то, что помогла воплотить мечту о гармонии!

Если у вас есть подобный опыт или вопросы, поделитесь в комментариях — обсудим, как сохранить воспоминания в интерьере! 📸😊