Добавить в корзинуПозвонить
Найти в Дзене
ГосземляРФ

Название: Аукцион на право заключения договора аренды земельного участка, вид разрешённого использования: Для индивидуального жилищного

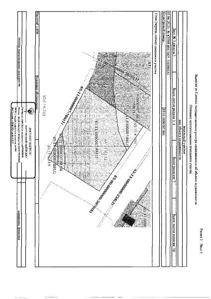
Название: Аукцион на право заключения договора аренды земельного участка, вид разрешённого использования: Для индивидуального жилищного строительства по адресу: Российская Федерация, Сахалинская область, Долинский р-н, г. Долинск Канал: Госземля Сахалинская область Область: обл Сахалинская Российская Федерация Район: Сахалинская область Населенный пункт: Долинский р-н, г. Долинск, ул. Кирова Локация: Смотреть на карте ВРИ: Для индивидуального жилищного строительства Кадастровый номер: 65:11:0000007:881 Кадастровая стоимость: 802420.00 Вид сделки: Аренда Площадь: 2000 м² Начальная цена: 80242.00 руб. Дата завершения: 10.09.2025 Подробнее: ГИС ТОРГИ #госземля #земляотгосударства #земля #земельныйучасток #земельныеторги #торги #аукцион #арендаземли #аренда #сахалинскаяобласть

Название: Аукцион на право заключения договора аренды земельного участка, вид разрешённого использования: Для индивидуального жилищного строительства по адресу: Российская Федерация, Сахалинская область, Долинский р-н, г. Долинск

Канал: Госземля Сахалинская область

Область: обл Сахалинская Российская Федерация

Район: Сахалинская область

Населенный пункт: Долинский р-н, г. Долинск, ул. Кирова

Локация: Смотреть на карте

ВРИ: Для индивидуального жилищного строительства

Кадастровый номер: 65:11:0000007:881

Кадастровая стоимость: 802420.00

Вид сделки: Аренда

Площадь: 2000 м²

Начальная цена: 80242.00 руб.

Дата завершения: 10.09.2025

Подробнее: ГИС ТОРГИ

#госземля #земляотгосударства #земля #земельныйучасток #земельныеторги #торги #аукцион #арендаземли #аренда #сахалинскаяобласть