Найти в Дзене

Неожиданно крутая штука из Твиттера — проект nano-banana — превращает простой набросок плана дома в реалистичную 3D-визуализацию за пару

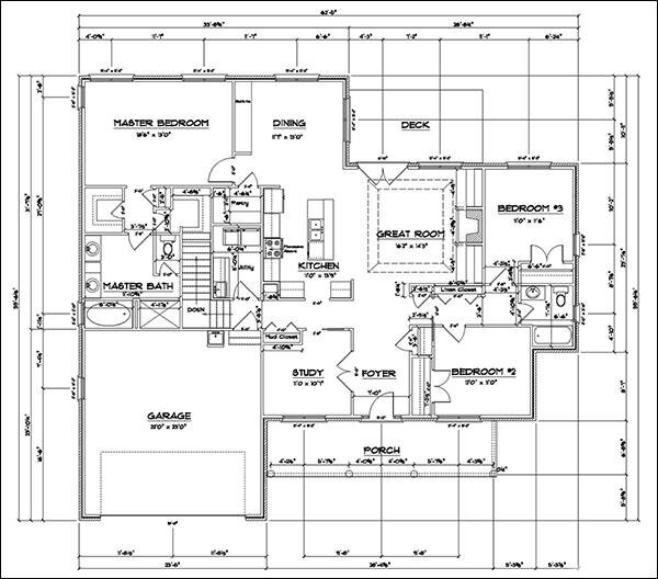
Неожиданно крутая штука из Твиттера — проект nano-banana — превращает простой набросок плана дома в реалистичную 3D-визуализацию за пару кликов ⚡️🤩 Загрузил скетч — получил готовую визуализацию, как будто архитектор трудился неделю. И это работает удивительно неплохо. Пригодится, если: ✅ Вы проектируете дом, а клиент в панике: «Срочно покажи, как это будет выглядеть!», а у вас нет времени на рендеры и SketchUp; ✅ Вам строят дом, вы просите пример — а подрядчик отвечает: «Ну, примерно так, как на бумаге», и машет рукой; ✅ Или вы просто мечтаете о своём уголке: уже мысленно расставили мебель, придумали цвет стен, но бюджет пока не тянет даже на участок — ну хотя бы пусть мечта выглядит по-настоящему. Теперь можно не рисовать в блокноте, а сразу увидеть, как ваш «дачный абстракционизм» превратится в уютный скандинавский коттедж или минималистичный лофт. Мечтать бесплатно. Визуализировать — тоже. Пока что. 🤔 Вот промт 👇: Give me a realistic top-view of this Blueprint. make sure y

Неожиданно крутая штука из Твиттера — проект nano-banana — превращает простой набросок плана дома в реалистичную 3D-визуализацию за пару кликов ⚡️🤩

Загрузил скетч — получил готовую визуализацию, как будто архитектор трудился неделю. И это работает удивительно неплохо.

Пригодится, если:

✅ Вы проектируете дом, а клиент в панике: «Срочно покажи, как это будет выглядеть!», а у вас нет времени на рендеры и SketchUp;

✅ Вам строят дом, вы просите пример — а подрядчик отвечает: «Ну, примерно так, как на бумаге», и машет рукой;

✅ Или вы просто мечтаете о своём уголке: уже мысленно расставили мебель, придумали цвет стен, но бюджет пока не тянет даже на участок — ну хотя бы пусть мечта выглядит по-настоящему.

Теперь можно не рисовать в блокноте, а сразу увидеть, как ваш «дачный абстракционизм» превратится в уютный скандинавский коттедж или минималистичный лофт.

Мечтать бесплатно. Визуализировать — тоже. Пока что. 🤔

Вот промт 👇:

Give me a realistic top-view of this Blueprint. make sure you follow what the blueprint exactly wants and how it would look in a real home

Ссылка на nano-banana (с VPN) — здесь.

🤖 Ботоферма в деле!

-2