Добавить в корзинуПозвонить
Найти в Дзене
Инженерка

Проект Инженерки_08/25. Барнхаус и электрокотел.

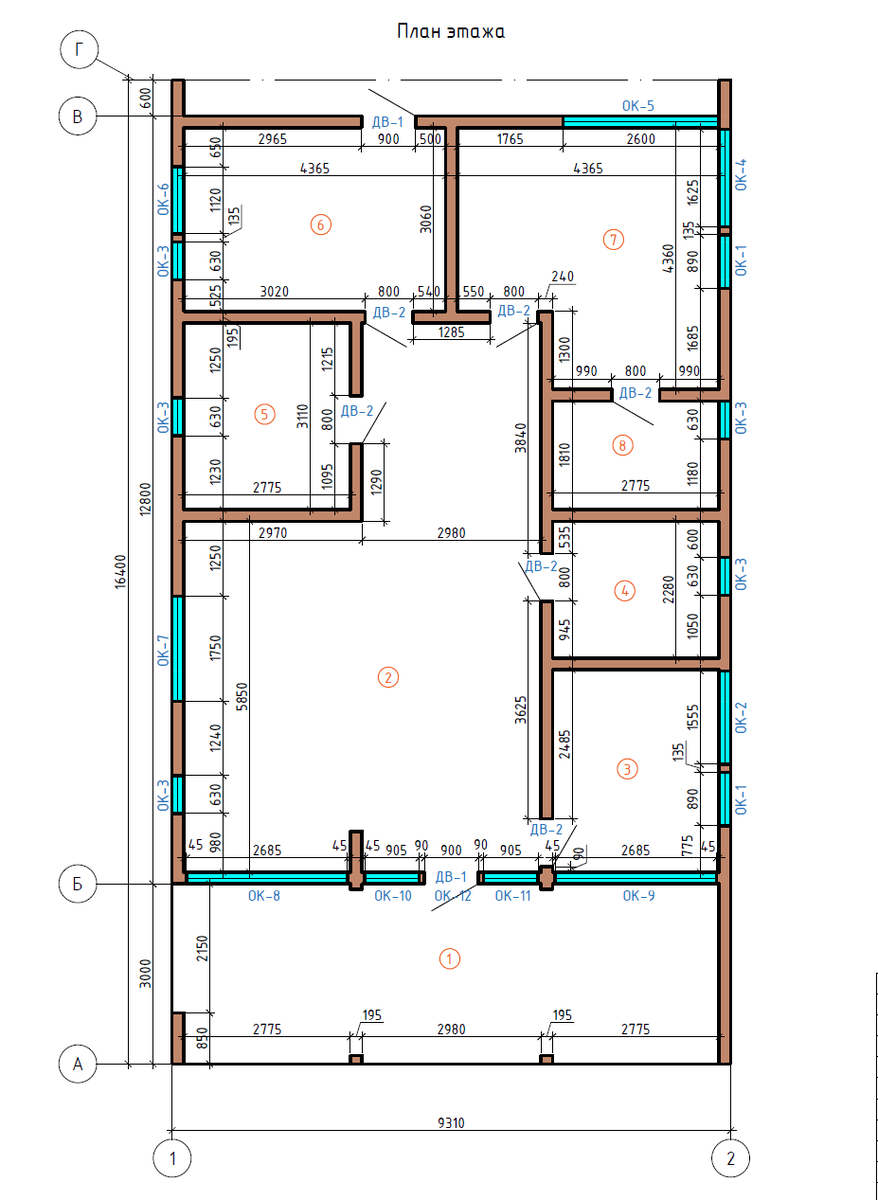
Быстровозводимые модульные дома в стиле "барнхаус" сейчас очень популярны. Предоставилась возможность делать проект в таком доме. Причем потребовалось уместить всё оборудование на одной стене, точнее еще захватить простенок до окна. Однако разместить потребовалось: Получили архитектурный проект (АР) и обсудили с заказчиком техзадание (ТЗ). Очень понравилась продуманность архитектуры (мастер-ванная, общая ванная, техпомещение). Последнее позволяет в своем объёме разместить: Были удивлены отсутствием газового котла в ТЗ, помещение позволяет его разместить. Но заказчик не пожелал. Итак, имеет одноэтажный барн с окнами в пол. Посчитали теплопотери получили 9,4кВт, посчитали теплоотдачу теплого пола под керамикой, получили ... укладываемся в "только теплый пол". Чтобы понять куда придут трубы теплого пола и водоснабжения, занялись размещением оборудования в котельной На электрокотел устанавливаем комплект 3-х ходового клапана и получаем приоритет ГВС. В самой высокой точке стены можно по
Оглавление
Теплогенераторная в барнхаусе. Электрокотел, бойлер напольный, ввод воды, реле и гидробак, водоподготовка
Теплогенераторная в барнхаусе. Электрокотел, бойлер напольный, ввод воды, реле и гидробак, водоподготовка

Быстровозводимые модульные дома в стиле "барнхаус" сейчас очень популярны. Предоставилась возможность делать проект в таком доме.

Причем потребовалось уместить всё оборудование на одной стене, точнее еще захватить простенок до окна. Однако разместить потребовалось:

  • электрокотел и бойлер косвенного нагрева,
  • коллектор теплого пола и коллекторы водоснабжения,
  • группы безопасности отопления и водоснабжения,
  • гидробак и реле давления для скважины,
  • станцию водоподготовки,

Исходники (архитектура) и вводные.

Получили архитектурный проект (АР) и обсудили с заказчиком техзадание (ТЗ). Очень понравилась продуманность архитектуры (мастер-ванная, общая ванная, техпомещение). Последнее позволяет в своем объёме разместить:

  • на одной стене всё оборудование инженерки,
  • а на противоположной кладовую для вещей.

Были удивлены отсутствием газового котла в ТЗ, помещение позволяет его разместить. Но заказчик не пожелал.

Итак, имеет одноэтажный барн с окнами в пол. Посчитали теплопотери получили 9,4кВт, посчитали теплоотдачу теплого пола под керамикой, получили

... укладываемся в "только теплый пол". Чтобы понять куда придут трубы теплого пола и водоснабжения, занялись размещением оборудования в котельной

Теплогенераторная с электрокотлом.

На электрокотел устанавливаем комплект 3-х ходового клапана и получаем приоритет ГВС. В самой высокой точке стены можно повесить газовый котел, но только дымоход в кровлю. Это на случай, если через несколько лет заказчик проведет газ.

Теплые полы без радиаторов.

Если греемся только теплым полом, то весь пол - теплый. Это электрический теплый пол нельзя укладывать под мебель (наверное), чтобы не сгорел. Веским доводом к переходу на водяной теплый пол является его надежность. Это труба из сшитого полиэтилена или металлопластика, с ней (если не делать это намеренно) ничего не случится.

Шаг везде 150мм, получилось 719м с ветками длиной от 54 до 87м. Учитывая высокую вероятность регулировки "на каждой ветке" уравнивать длины дальше не стали.

У Вас может возникнуть вопрос:
Почему нет узла автономной циркуляции, ведь в теплый пол должна поступать воды с меньшей температурой, чем например в радиаторы или бойлер?

Тут 2 ответа:

1. в "Мозги" котла выставляется температура отопления и температура нагрева бойлера, и они разные.

2. 200л бойлер можно греть 45-50 градусами. На небольшую семью такой скорости нагрева хватит. Хватает же электрического водонагревателя с ТЭНом 2,5Квт?! Так мы постепенно подошли к водоснабжению.

Водоснабжение и канализация.

Схема разводки водоснабжения "по количеству мокрых помещений", то есть в доме 3 таких помещения: кухня, ванная и мастер-ванная. Одновременно пользоваться водой в одном помещении будут вряд ли, а во всех одновременно , но по одному источнику - скорее всего.

Отсюда конфигурация коллекторов водоснабжения "по мокрым помещениям", чтобы не делать большие коллекторы, не закладывать много труб, в которых будет застаиваться вода, кстати.

Другие проекты Инженерки:

Подробнее о котельной (теплогенераторной) в частном доме -

Котельная в доме - это не только котельная!

Спасибо, что дочитали! Удачи!

Если Вам интересно, мы занимаемся проектированием отопления и водоснабжения с канализацией в загородных домах. Приходите на канал в Телеграмме или МАКСе.