Найти в Дзене

Тренды в планировке загородных домов 2025 года: что выбирают семьи

В 2025 году в архитектуре и строительстве частных домов всё больше проявляется тенденция к практичности и комфорту. Если раньше за основу брали классические двухэтажные решения, то сегодня всё чаще предпочтение отдают одноэтажным домам с продуманной планировкой. 🏡 Одноэтажные дома
Жить на одном уровне стало не только удобно, но и модно. Отсутствие лестниц облегчает повседневную жизнь и делает дом безопасным для детей и пожилых людей. 🍽️ Кухня-гостиная как центр дома
Большие объединённые пространства заменили тесные кухни. Теперь кухня-гостиная — это место, где собирается вся семья и проходят вечерние встречи с друзьями. 🛏️ Мастер-спальня
Популярность набирает отдельная спальня с собственной ванной комнатой и гардеробной. Это создаёт ощущение личного пространства и повышает уровень комфорта. Мы предлагаем 4 вида типовых проектов.
Самый компактный — от 68-107, идеально подходит для семьи с одним ребёнком. Несмотря на скромные размеры, в нём есть всё необходимое: просторная кухня-г
Оглавление

В 2025 году в архитектуре и строительстве частных домов всё больше проявляется тенденция к практичности и комфорту. Если раньше за основу брали классические двухэтажные решения, то сегодня всё чаще предпочтение отдают одноэтажным домам с продуманной планировкой.

Основные тренды 2025 года

🏡 Одноэтажные дома

Жить на одном уровне стало не только удобно, но и модно. Отсутствие лестниц облегчает повседневную жизнь и делает дом безопасным для детей и пожилых людей.

🍽️ Кухня-гостиная как центр дома

Большие объединённые пространства заменили тесные кухни. Теперь кухня-гостиная — это место, где собирается вся семья и проходят вечерние встречи с друзьями.

🛏️ Мастер-спальня

Популярность набирает отдельная спальня с собственной ванной комнатой и гардеробной. Это создаёт ощущение личного пространства и повышает уровень комфорта.

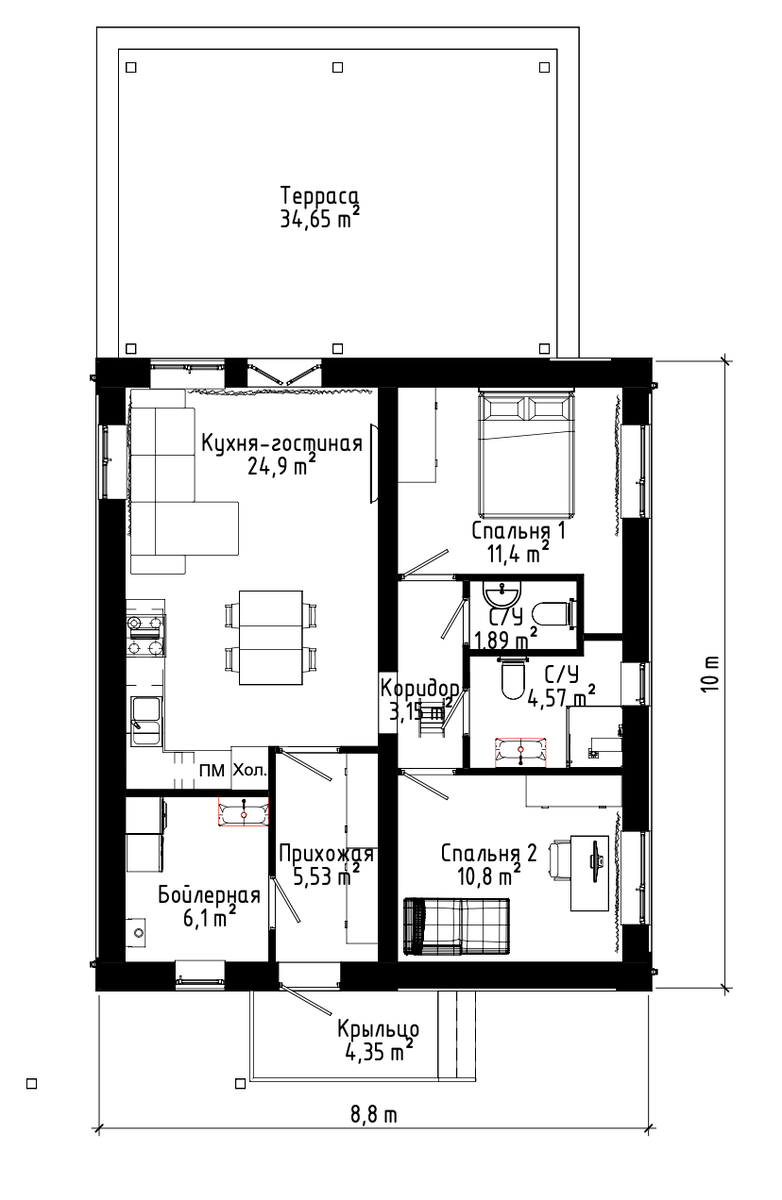
Как это реализовано в коттеджном посёлке «Победа»?

Мы предлагаем 4 вида типовых проектов.

Самый компактный — от
68-107, идеально подходит для семьи с одним ребёнком. Несмотря на скромные размеры, в нём есть всё необходимое: просторная кухня-гостиная, уютные спальни и продуманные хозяйственные зоны.

Более крупные проекты рассчитаны на семьи с двумя и более детьми, с дополнительными спальнями, кабинетами и просторными мастер-спальнями.

-2

Почему это удобно?

✔️ Один этаж — меньше затрат на строительство и отопление.
✔️ Единое пространство для общения семьи.
✔️ Современные планировки, соответствующие образу жизни в 2025 году.

Хотите увидеть планировки и выбрать проект для своей семьи? Приезжайте в коттеджный посёлок «Победа» — здесь комфорт и современный дизайн встречаются с практичностью.

г. Сургут, СНТСН "Победа", +7 (3462) 27-14-22