Добавить в корзинуПозвонить
Найти в Дзене
ДОМ ДЛЯ СЕМЬИ

🔥В ПРОДАЖЕ

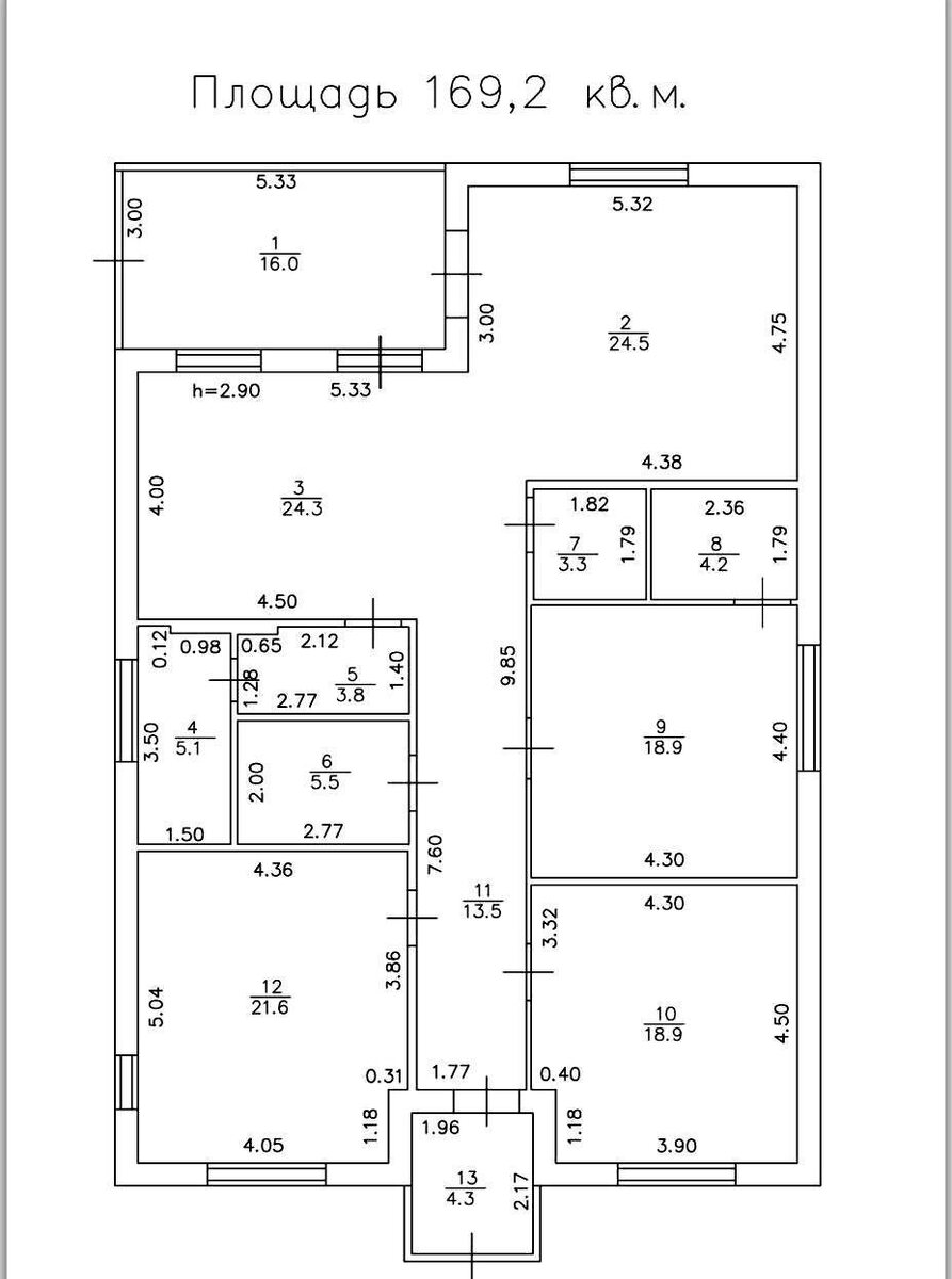
🔥В ПРОДАЖЕ! ❗️Новый кирпичный коттедж со всеми коммуникациями в поселке Северном, район улицы З-Трудовая. 🟤 Коттедж общей площадью 169 кв.м современной планировки: крыльцо, холл 13,5 кв.м, гардеробная, раздельный санузел, три изолированные комнаты котельная, котельная, гардеробная, кухня-столовая 24,3 кв.м с выходом на крытую террасу 16 кв.м, гостиная 24,5 кв.м. 🟤 Есть возможность обустроить мансардный этаж. ◾️Дом — в базовой отделке. 💧Коммуникации: газ, вода — скважина 30 м, канализация — септик 18 м3, свет 15 кВт. 🌳Участок 6 соток, назначения ИЖС, огорожен по периметру забором, ворота, калитка. 📍Вся инфраструктура поселка Северный налицо: рядом — школа №65, магазины, супермаркет «Пятерочка» — на углу улицы, в шаговой доступности — остановка общественного транспорта. ❗️Льготная ипотека. 🖊Если остались вопросы, пишите в комментарии Либо позвоните ☎️ +7 (960) 498-47-95 #Льготнаяипотека #домЕА #куплюдомвкраснодаре #новыекоттеджи #переездвкраснодар #поселоксеверный #домнаюге

🔥В ПРОДАЖЕ!

❗️Новый кирпичный коттедж со всеми коммуникациями в поселке Северном, район улицы З-Трудовая.

🟤 Коттедж общей площадью 169 кв.м современной планировки: крыльцо, холл 13,5 кв.м, гардеробная, раздельный санузел, три изолированные комнаты котельная, котельная, гардеробная, кухня-столовая 24,3 кв.м с выходом на крытую террасу 16 кв.м, гостиная 24,5 кв.м.

🟤 Есть возможность обустроить мансардный этаж.

◾️Дом — в базовой отделке.

💧Коммуникации: газ, вода — скважина 30 м, канализация — септик 18 м3, свет 15 кВт.

🌳Участок 6 соток, назначения ИЖС, огорожен по периметру забором, ворота, калитка.

📍Вся инфраструктура поселка Северный налицо: рядом — школа №65, магазины, супермаркет «Пятерочка» — на углу улицы, в шаговой доступности — остановка общественного транспорта.

❗️Льготная ипотека.

🖊Если остались вопросы, пишите в комментарии

Либо позвоните

☎️ +7 (960) 498-47-95

#Льготнаяипотека

#домЕА

#куплюдомвкраснодаре

#новыекоттеджи

#переездвкраснодар

#поселоксеверный

#домнаюге

#домсгазом

#трцкраснаяплощадь

#переездвсвойдом

-2
-3
-4
-5
-6