Добавить в корзинуПозвонить
Найти в Дзене

Как выбрать комфортную квартиру

На самом деле в своей работе я использую больше критериев для подбора квартиры, но эти самые основные. И порой даже эти базовые принципы не заложены в современных ЖК.  Зачастую приходится заниматься перепланировкой, но бывает и хуже, когда перепланировка физически невозможна из-за особенностей конструкции дома. И здесь клиенты стоят перед выбором: продавать квартиру и выбирать более удачный вариант, либо подстраиваться под текущие условия и мириться с неудобством…  ————————————————————————— Приступим:  ⠀⠀⠀1.Гардероб при прихожей. Возможно банально, но это крайне удобно, когда есть место не только для верхней одежды, но и есть возможность расположить какой-либо инвентарь, снаряжение и тд. Не во многих ЖК в изначальной планировке она есть. ⠀⠀⠀2.Прихожая изолированна и из неё не просматривается вся квартира. Хорошо, когда в прихожую попадает естественный свет, но, я считаю, не комфортным, когда приходят гости/ курьеры/обслуживание и видно общесемейную зону, где в этом момент могут обед

Мои универсальные критерии касающиеся планировки, которые подходят всем!

На самом деле в своей работе я использую больше критериев для подбора квартиры, но эти самые основные. И порой даже эти базовые принципы не заложены в современных ЖК. 

Зачастую приходится заниматься перепланировкой, но бывает и хуже, когда перепланировка физически невозможна из-за особенностей конструкции дома. И здесь клиенты стоят перед выбором: продавать квартиру и выбирать более удачный вариант, либо подстраиваться под текущие условия и мириться с неудобством… 

  • В самом конце расскажу как можно это предотвратить!

—————————————————————————

Приступим: 

⠀⠀⠀1.Гардероб при прихожей.

Возможно банально, но это крайне удобно, когда есть место не только для верхней одежды, но и есть возможность расположить какой-либо инвентарь, снаряжение и тд. Не во многих ЖК в изначальной планировке она есть.

⠀⠀⠀2.Прихожая изолированна и из неё не просматривается вся квартира.

Хорошо, когда в прихожую попадает естественный свет, но, я считаю, не комфортным, когда приходят гости/ курьеры/обслуживание и видно общесемейную зону, где в этом момент могут обедать, лежать на диване, спать люди.

⠀⠀⠀3.Близко к прихожей должна быть кухня-гостиная.

Это очень удобно: представьте, вы пришли домой после похода в супермаркет и теперь несете тяжелые пакеты с продуктами, я не приветствую, когда пакеты приходится нести через всю квартиру, чтобы добраться до кухни и холодильника.

⠀⠀⠀4.Кухня-гостиная минимум 20 квадратных метров и лучше прямоугольной формы.

Поясню, я считаю этот размер минимальным для комфортного нахождения в комнате, чтобы все происходящие действия не мешали друг другу, а вытянутая форма позволит комфортно расположить зоны «приготовление пищи-принятие пищи-отдых».

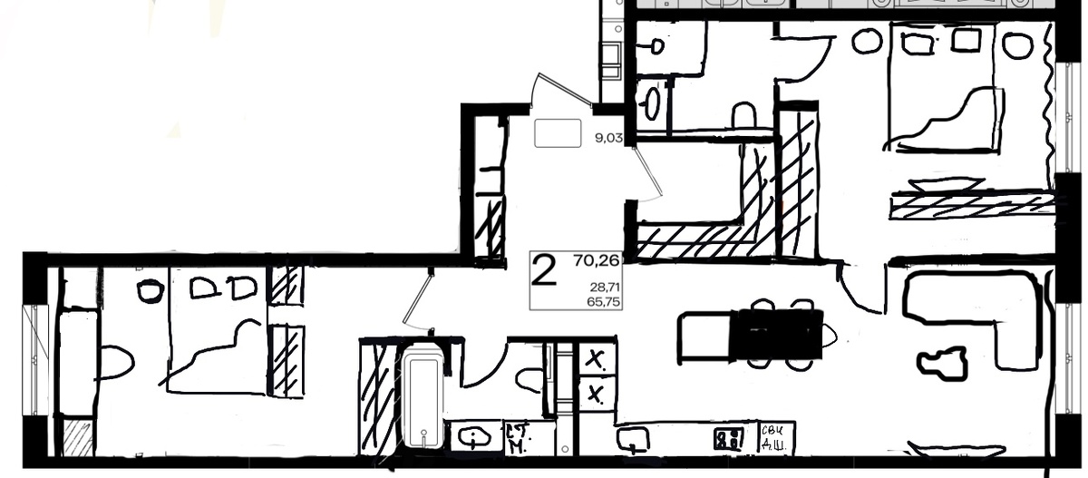
Планировка квартиры «до»
Планировка квартиры «до»

Эскизная планировка квартиры «после», теперь она отвечает всем базовым принципам. Сделана буквально за час.
Эскизная планировка квартиры «после», теперь она отвечает всем базовым принципам. Сделана буквально за час.

⠀⠀⠀5.Из кухни-гостиной не должен быть вход в детскую спальню

Это необходимо для шумоизоляции и комфорта ребенка. Представим: у вас гости, разгар вечера, ребенок захотел спать и пошел к себе, и разговоры/музыка/фильмы будут вероятнее всего мешать, ему приходится выходить, отдергивать всех и просить быть потише. Так себе ситуация, верно?

⠀⠀⠀6.Детская спальня и спальня родителей должны быть разнесены друг от друга и не иметь смежные стенки.

Это опять же относится к моменту шумоизоляции и приватности. Активность ребёнка и любовь родителей не должны мешать друг другу и доставлять дискомфорт.

⠀⠀⠀7.Родительская спальня должна быть мастер-спальней.

Это база современной жизни, когда родители имеют свою собственную гардеробную и ванную комнаты, в которые нет доступа детям.

⠀⠀⠀8.Ванных комнат должно быть минимум две, одна, из которых принадлежит мастер-спальне.

Будет нелогично, если например есть санузел для гостей, которые все же не живут в этой квартире, но не будет отдельного санузла для родителей.

⠀⠀⠀9.Стиральная машина должна находиться в общем санузле.

Если стиральная машина будет в мастер-ванной, то дети так или иначе с возрастом будут ходить туда, нарушая покой родителей. 

  • Обязательно возьмите это себе на вооружение эти базовые принципы и возможно вы спасете свое будущее жилье или жилье ваших родственников/друзей/коллег

Буду ждать вашей обратной связи!

Также я провожу консультации по подбору квартиры, когда мы заранее, для нескольких рассматриваемых вами квартир, составляем планировочные решения с расстановкой мебели и оборудования, и выясняем подходит ли та или иная квартира конкретно вам и насколько она способна обеспечить удобство вашего быта.  И что немаловажно, все решения законны для перепланировки в гос.органах.

Это позволяет уже на этапы подбора квартиры сделать правильный выбор в пользу комфортной жизни. 

Узнать подробнее ↓

Дизайнер уникальных интерьеров — NEAFLES.INTERIOR