Добавить в корзинуПозвонить
Найти в Дзене

Рубрика "Планировочное решение

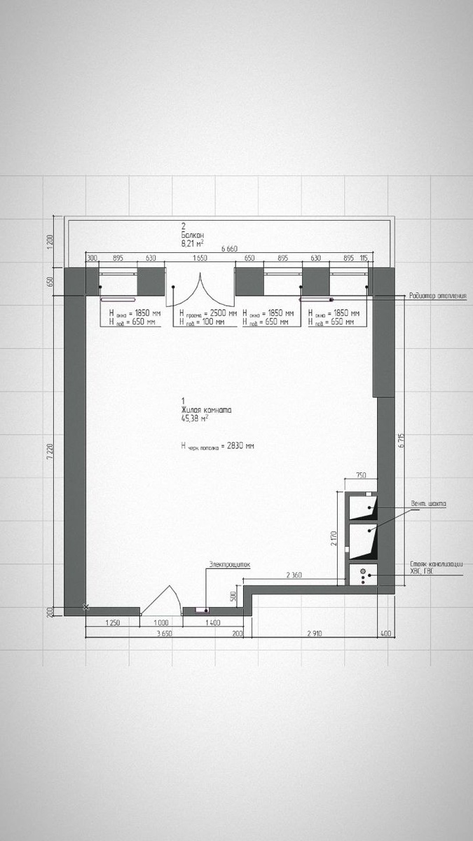
Рубрика "Планировочное решение" 🤔 ❗️ Вводные данные: г. Москва, квартира на первом этаже, площадь — 45 м2, кухня — электричество. В квартире будет проживать семья из 2-х человек: молодые муж и жена. Пожелания заказчиков: отдельная спальня с большой кроватью; рабочие места для обоих супругов; вместительный стеллаж для книг; диван и биокамин в зоне гостиной; по возможности, винный шкаф и полки для вина там же☝️☺️ на кухне предусмотреть место для встроенной кофемашины; нужна ванна в ванной комнате; хозяйственный шкаф для стиральной машины. Изначально, от застройщика, перегородок не было. Итак, в первом варианте я сделала полноценную спальню с большой кроватью и вместительным шкафом. Пространство перед балконом я отдала кабинету. А кухня оказалась за стеклянной раздвижной перегородкой. Диван в такую планировку, как мы видим, не уместился. Грязная зона получилась на пути следования из ванной комнаты. На мой взгляд, этот вариант не самый удачный 🤷🏻‍♀️ Во втором варианте, я переместил

Рубрика "Планировочное решение" 🤔

❗️ Вводные данные:

г. Москва, квартира на первом этаже, площадь — 45 м2, кухня — электричество.

В квартире будет проживать семья из 2-х человек: молодые муж и жена. Пожелания заказчиков: отдельная спальня с большой кроватью; рабочие места для обоих супругов; вместительный стеллаж для книг; диван и биокамин в зоне гостиной; по возможности, винный шкаф и полки для вина там же☝️☺️ на кухне предусмотреть место для встроенной кофемашины; нужна ванна в ванной комнате; хозяйственный шкаф для стиральной машины.

Изначально, от застройщика, перегородок не было.

Итак, в первом варианте я сделала полноценную спальню с большой кроватью и вместительным шкафом. Пространство перед балконом я отдала кабинету. А кухня оказалась за стеклянной раздвижной перегородкой. Диван в такую планировку, как мы видим, не уместился. Грязная зона получилась на пути следования из ванной комнаты. На мой взгляд, этот вариант не самый удачный 🤷🏻‍♀️

Во втором варианте, я переместила кровать от окон вглубь помещения, отделив её стеклянными раздвижными перегородками, чтобы в спальню проникал естественный свет. В спальне отлично расположилась двуспальная кровать и большой шкаф. Кухню я вернула на ее законное место ☺️ Возле окна получился уголок для отдыха: там расположился диван, а напротив ТВ и биокамин. За диваном я сделала небольшую барную стойку. В этом варианте, появился коридор и изолированная прихожая 👍

В третьем варианте, спальню, рабочую зону и прихожую я взяла из предыдущего варианта. Дополнила только кухню винным шкафом, полками и станцией для робота- пылесоса. А также сделала меньше ванную комнату, таким образом кухня-гостиная стала максимально просторной и функциональной 🥰

Во втором и третьем варианте при входе в квартиру я организовала удобную грязную зону, а также вместительный встроенный шкаф для хранения.

Заказчики уже определились с выбором ☺️ а какой вариант понравился Вам?

📌 Жмите 👉 @chesna_design - обсудим идеи для Вашего пространства.

#дизайнеринтерьера #советдизайнера #дизайнсоветы #уютныйдом #красивыйинтерьер

#интерьерквартиры #дизайнквартиры #дизайнпроект 

#планировка #расстановкамебели #визуализация #услугидизайнера

#интерьерныйблог #ремонтсоветы #интерьерныелайфхаки #дизайнерговорит #chesnadesign

-2
-3
-4