Добавить в корзинуПозвонить
Найти в Дзене

Ремонт двушки 44 м²: смотрим на примере реального проекта, сколько нужно потратить в 2025 и где можно сэкономить

Сегодня показываю для вас на примере реального проекта квартиры 44 м², во сколько обойдётся обновление жилья в 2025 году и раскрою все секреты разумной экономии без ущерба качеству! Присоединяйтесь к числу подписчиков лучшего канала по ремонту: ищите кнопку ПОДПИСАТЬСЯ в конце статьи, чтобы получить доступ к реальным проектам с грамотными планировками, стильным дизайном и советами по экономии! Когда я впервые увидела эту двушку, то сразу поняла – потенциал огромный, но нужно кардинально пересмотреть планировку. Самая большая проблема – встроенные ниши под шкафы, которые «съедали» драгоценные метры и делали комнаты визуально меньше. Смотрите сами:👇 Первым делом мы снесли все встроенные шкафы и заменили их современными системами хранения под потолок. Это решение дало сразу два плюса: увеличили полезную площадь и получили гораздо больше места для хранения. Второе важное решение – объединили санузел. В маленькой квартире каждый метр на счету, а раздельный санузел в 44 квадратах – непозвол
Оглавление

Сегодня показываю для вас на примере реального проекта квартиры 44 м², во сколько обойдётся обновление жилья в 2025 году и раскрою все секреты разумной экономии без ущерба качеству!

Текст помогла составить дизайнер компании Domeo
Текст помогла составить дизайнер компании Domeo
Присоединяйтесь к числу подписчиков лучшего канала по ремонту: ищите кнопку ПОДПИСАТЬСЯ в конце статьи, чтобы получить доступ к реальным проектам с грамотными планировками, стильным дизайном и советами по экономии!

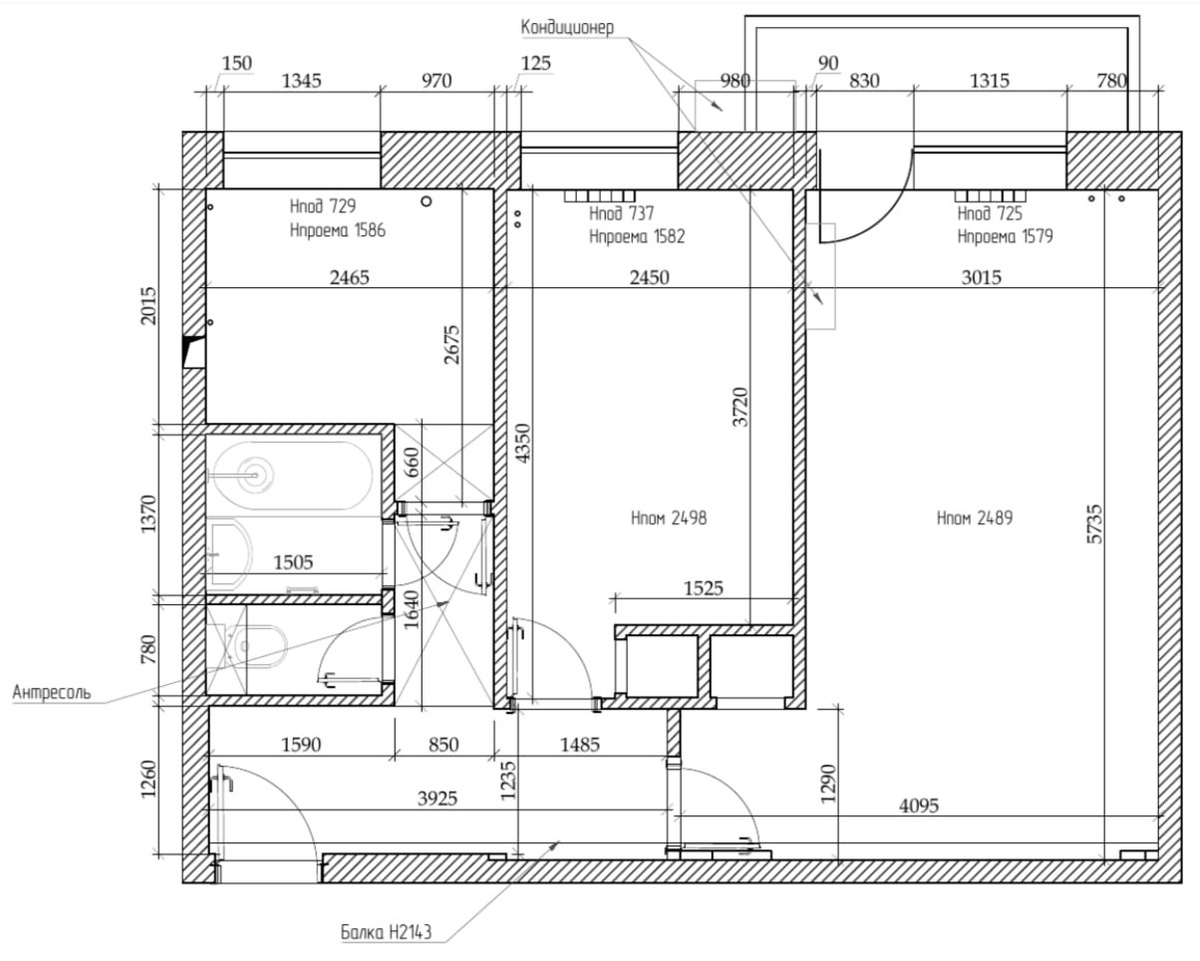
Когда я впервые увидела эту двушку, то сразу поняла – потенциал огромный, но нужно кардинально пересмотреть планировку. Самая большая проблема – встроенные ниши под шкафы, которые «съедали» драгоценные метры и делали комнаты визуально меньше. Смотрите сами:👇

Проект Domeo
Проект Domeo

Что изменили в планировке

Первым делом мы снесли все встроенные шкафы и заменили их современными системами хранения под потолок. Это решение дало сразу два плюса: увеличили полезную площадь и получили гораздо больше места для хранения.

Второе важное решение – объединили санузел. В маленькой квартире каждый метр на счету, а раздельный санузел в 44 квадратах – непозволительная роскошь. После объединения получилось комфортное помещение, где поместились и душевая, и стиральная машина, и достаточно места для хранения.

И вот, что у нас получилось:👇

Проект Domeo
Проект Domeo

Планируете ремонт квартиры?👇

-4

Точную стоимость всего ремонта, вы можете получить в этом калькуляторе Domeo -> https://domeo.ru/remont

КАЛЬКУЛЯТОР

Кухня: максимум функций на минимуме площади

В проекте кухня оформлена в молочно-мятных оттенках.

Фото проекта с ремонтом от DOMEO
Фото проекта с ремонтом от DOMEO

Фасады выбрали в молочном цвете, фартук сделали монолитным – такое решение визуально увеличивает пространство и упрощает уборку.

Обеденная зона организована вокруг компактного круглого стола на деревянных ножках. Круглый стол экономит место и обеспечивает комфортную посадку. Хранение организовали до самого потолка – верхние шкафы используем для редко используемых вещей, нижние – для повседневной посуды.

Фото проекта с ремонтом от DOMEO
Фото проекта с ремонтом от DOMEO

Особое внимание уделили освещению: основной свет, подсветка рабочей зоны и декоративная подсветка верхних шкафов. При потолках 2,5 метра правильный свет критически важен.

Фото проекта с ремонтом от DOMEO
Фото проекта с ремонтом от DOMEO

Гостиная: как разместить все необходимое

В проекте гостиная выполняет сразу несколько функций.

Основу составляет диванная группа. Рядом расположился винтажный столик – это переделанное подстолье от старой швейной машинки, которое получило новую жизнь.

Фото проекта с ремонтом от DOMEO
Фото проекта с ремонтом от DOMEO

Вдоль стены разместили лаконичную подвесную тумбу с рабочим местом.

Фото проекта с ремонтом от DOMEO
Фото проекта с ремонтом от DOMEO

Это решение позволило не загромождать пространство и сохранить ощущение воздушности. Открытые стеллажи обеспечивают место для хранения книг и декора.

Фото проекта с ремонтом от DOMEO
Фото проекта с ремонтом от DOMEO

Спальня: максимум уюта в компактном пространстве

Спальня оформлена в природной палитре с приглушенным зеленым цветом стен. Вместо традиционного подоконника создали удобный уголок для отдыха – мягкое сиденье с подушками, которое также выполняет функцию дополнительного хранения.

Фото проекта с ремонтом от DOMEO
Фото проекта с ремонтом от DOMEO

Рядом с кроватью установлен высокий открытый стеллаж с подсветкой. Он служит местом для хранения книг и декора, а благодаря теплому освещению создает эффектную акцентную зону.

Фото проекта с ремонтом от DOMEO
Фото проекта с ремонтом от DOMEO

Закажите ремонт в лучшей компании Москвы!👇

Точную стоимость всего ремонта, вы можете получить в этом калькуляторе Domeo -> https://domeo.ru/remont

КАЛЬКУЛЯТОР

Реальные цены на ремонт двушки 44 квадрата

Вариант простого обновления отделки – от 1,3-1,6 млн рублей.

Этот бюджет включает косметический ремонт с заменой отделки, но без кардинальной перепланировки. Новые полы, свежая краска на стенах, современная сантехника, обновление кухонного фартука. Окна и двери остаются прежними. Конечная стоимость зависит от выбранных материалов.

Вариант с частичной перепланировкой – от 2,5-2,7 млн рублей.

В эту сумму входит объединение санузла, полная замена коммуникаций, заказ мебели по индивидуальным размерам. Также включается замена окон, установка новых дверей, создание продуманных систем хранения и освещения.

Финальная сумма всегда зависит от выбранных материалов. Например, керамогранит под дерево может стоить как 800 рублей за квадрат, так и 3500 рублей – внешне почти не отличается, а разница в бюджете существенная.

Как сэкономить без потери качества

Используем мебель из прошлой квартиры

В нашем проекте хозяева сохранили качественный диван и превратили подстолье от старой швейной машинки в стильный журнальный столик. Получился уникальный предмет с историей, который добавил интерьеру индивидуальности.

Грамотно выбираем материалы

Не обязательно везде использовать премиум-материалы. В кухне можно выбрать качественные фасады из ЛДСП вместо массива, главное – правильно подобрать цвет и фурнитуру. А сэкономленные средства потратить на действительно важные вещи: качественную столешницу, хорошую технику, продуманное освещение.

Если сложно всё учесть самому, DOMEO советует начать с двух простых шагов:👇
-16
1. Заранее узнайте стоимость вашего ремонта в 3-х вариантах. Бесплатно рассчитайте тут: ✅ domeo.ru/remont
2. Выбрать подходящего дизайнера для визуализации своих идей! Бесплатно выберите своего дизайнера здесь: ✅ domeo.ru/design
-17

Главный урок этого проекта – даже в маленькой квартире можно создать комфорт, если грамотно подойти к планировке и не бояться сносить лишние перегородки. А правильный выбор материалов поможет уложиться в разумный бюджет.

Подписывайтесь на наш канал!

Впереди ещё больше реальных историй ремонта, обзоров материалов, лайфхаков по планированию и вдохновения для вашего будущего интерьера.

Вам понравятся эти статьи:👇

30 метров в хрущёвке или 28 в студии: где реально удобно жить, а где — просто красиво?
DOMEO | РЕМОНТ КВАРТИР | НЕДВИЖИМОСТЬ
10 мая 2025