Добавить в корзинуПозвонить
Найти в Дзене
ЭТО ВАШ ИНТЕРЬЕР

Соседи крутили у виска, когда я покупала эту ужасную "хрущевку". А я молча сделала ремонт... и теперь они ходят ко мне в гости с завистью

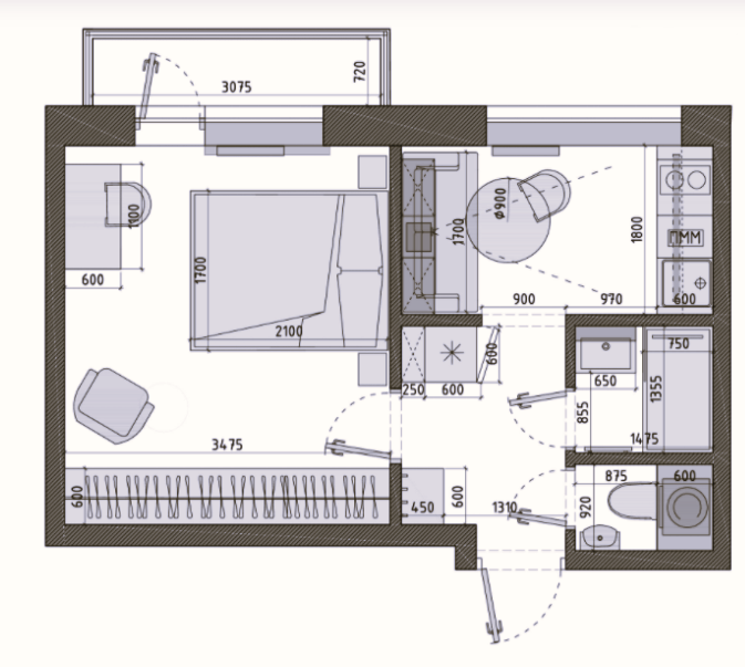
Вы когда-нибудь заходили в помещение, от которого пахнет историей — причём историей не самой радостной? Пожелтевшие от табака стены, скрипучие полы, низкие потолки… Именно такой была эта квартира на Мичуринском проспекте в Москве, когда молодожены впервые переступили её порог. Но они не увидели тут разрухи. Они увидели потенциал. Потенциал своего будущего дома. Им предстояло совершить почти чудо: на площади всего 28 квадратных метров разместить всё необходимое для комфортной жизни двух взрослых людей и двух пушистых питомцев, не прибегая к сложным и дорогим перепланировкам. И знаете что? У них получилось. Этот проект — гимн прагматизма, любви к деталям и умению видеть красоту в малом. Квартира находилась в нестандартной хрущёвке — тесной, с низкими потолками и газовой плитой, что серьёзно ограничивало возможности перепланировки. Герои нашего проекта твёрдо решили: ничего не ломать, не переносить «мокрые» зоны и не связываться с газовыми службами. Вместо этого — умно использовать каждый
Оглавление

Вы когда-нибудь заходили в помещение, от которого пахнет историей — причём историей не самой радостной? Пожелтевшие от табака стены, скрипучие полы, низкие потолки… Именно такой была эта квартира на Мичуринском проспекте в Москве, когда молодожены впервые переступили её порог. Но они не увидели тут разрухи. Они увидели потенциал. Потенциал своего будущего дома.

Им предстояло совершить почти чудо: на площади всего 28 квадратных метров разместить всё необходимое для комфортной жизни двух взрослых людей и двух пушистых питомцев, не прибегая к сложным и дорогим перепланировкам. И знаете что? У них получилось.

Этот проект — гимн прагматизма, любви к деталям и умению видеть красоту в малом.

📍Проект: Условия задачи

  • Локация: г. Москва, Мичуринский проспект. Типичный спальный район с узнаваемой архитектурой эпохи советского модернизма.
  • Площадь: 28 кв. метров — именно столько места было у пары для реализации всех своих идей.
  • Высота потолков: 2.6 метра — классический параметр для хрущёвок, накладывающий ограничения на вертикальное зонирование.
  • Жильцы: молодая пара и два кота — полноправные члены семьи, чьи потребности также учитывались при проектировании.
-2

Квартира находилась в нестандартной хрущёвке — тесной, с низкими потолками и газовой плитой, что серьёзно ограничивало возможности перепланировки. Герои нашего проекта твёрдо решили: ничего не ломать, не переносить «мокрые» зоны и не связываться с газовыми службами. Вместо этого — умно использовать каждый сантиметр.

Изначальное состояние было удручающим. Прежний хозяин много курил, и запах въевшегося дыма ощущался даже сквозь слои штукатурки. Но наши герои не отступили.

🚪 Прихожая: Первое впечатление

Прихожая — это лицо дома. Именно здесь начинается знакомство с пространством. Молодожены хотели, чтобы уже с порога чувствовался их характер — свежий, современный, с любовью к деталям.

Стены выкрашены в спокойный зелёный оттенок — цвет гармонии и умиротворения. Потолок сделан натяжным — не только для эстетики, но и на случай протечек сверху (практичность важна!). На пол уложен кварцвинил — прочный, влагостойкий, приятный на ощупь.

-3

Зеркало разместили на внутренней стороне входной двери — удобно поправить причёску перед выходом и визуально расширить пространство. Слева — открытая вешалка для верхней одежды и аккуратная тумбочка для мелочей. Основное хранение решено было вынести в спальню.

Остроумное решение — шкаф-пенал с фасадом, украшенным силуэтом кошки. Он маскирует холодильник и открывается со стороны кухни. Рядом — выкатная секция для мелких вещей. Ничего лишнего — только чистая функциональность.

-4

🍽️ Кухня-гостиная: Сердце дома

Всего 6 м², а вместилось невероятно много: полноценная кухня и уютная зона отдыха. Здесь готовят, ужинают, смотрят кино и принимают гостей.

-5

Над диваном установлен проектор, над гарнитуром — рулонный экран. Вечером кухня превращается в мини-кинотеатр. Окна заменили на современные стеклопакеты — светло, тихо, тепло.

Кухня собрана на заказ — в типовых решениях просто не было нужных размеров. Длина гарнитура — всего 180 см, но продумана каждая деталь. Верхние фасады доходят до потолка — дополнительное место для хранения. Столешница — массив дерева, тёплый и живой материал.

А вот кухонного фартука вы здесь не найдёт. Вместо него — стена, покрытая специальной влагостойкой краской. Она не боится пара, брызг масла и моющих средств. Прошёл уже год — а выглядит как новая!

-8

🛌 Спальня-кабинет: Личное пространство

Комната многофункциональна: здесь и спальное место, и система хранения, и рабочий уголок. Окна и балконная день заменены. Дверь на балкон открывается наружу — экономия пространства.

-9

Стены выкрашены в насыщенный голубой — цвет ясного неба и свежести. Он идеально сочетается с белым шкафом, который стал главным местом хранения. Чтобы вещи не залёживались, в шкафу смонтирована пассивная вентиляция.

Межкомнатные двери — скрытые, высотой 2,3 м. Они визуально растворяются в стенах, сохраняя целостность интерьера.

-10

Под потолком — розетки для электропривода шторы и новогодней гирлянды. Продумано до мелочей!

🚿 Ванная и туалет: Неожиданные решения

В ванной комнате, как и в большинстве хрущёвок, есть окно на кухню. Его решили сохранить — чтобы в санузел проникал естественный свет. Старую маленькую ванну заменили на душевой поддон шириной 1,3 м. Пространство разделено стеклянной перегородкой, а при необходимости можно закрыться шторкой.

-11

Туалет поражает изобретательностью. Здесь стоит подвесной унитаз и компактная раковина. Но главная фишка — стиральная машина со встроенной сушкой, спрятанная за фасадами ЛДСП. Чтобы избежать вибраций, машинка установлена на специальную сварную раму, закреплённую в стене. Шкаф сделан глубже — чтобы машинка могла проветривать с открытым люком. Настоящий инженерный ход!

-12

💫 Послесловие

Этот проект — доказательство: неважно, сколько метров вам досталось. Важно, сколько любви, ума и труда вы в них вложите. наша героиня позже призналась: «Иногда руки опускались. пахло гарью, ничего не получалось. Но мы знали — будет красиво».

И стало. Теперь это не просто квартира. Это дом, в котором хочется жить.

Если эта история вдохновила вас — поддержите нас лайком и подпиской! Впереди ещё много интересного.